屋主:阿阅
年龄:90后
职业:摄影师
阿阅和她的猫一起生活。
作为一个爱好有点多的旅拍摄影师,除去在外工作的时间,剩下的大部分时间,阿阅都是“宅”在家里做自己喜欢的事情,画画,做手工,看书,看电影,或是和朋友聚餐。


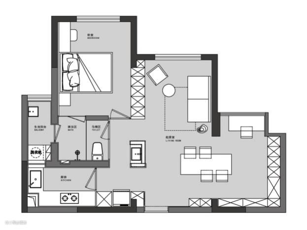
1. 屋主需求:各空间过于独立,格局呆板无趣,且次卧空置浪费;
解决方案:拆除原厨房,卫生间,主卧和次卧(书房)间的非承重墙体,对空间进行细微重组,形成以盥洗台为中心的洄游式动线。
2. 户型缺陷:原餐厅偏小,空间利用率低;
解决方案:模糊客餐厅和书房的界限,整合为复合型多功能空间,为避免阻碍活动行走的动线,收纳区域贴墙边缘组合。
3. 户型缺陷:卫生间偏小,使用不便利;
解决方案:三分离设计,沐浴区作为私密区改从卧室出入,相对公共的马桶区则保留对外进出的设计。
4. 户型缺陷:厨房采光需要通过二次过渡,昏暗逼仄;
解决方案:拆墙后的厨房,一方面保留了足够的中式烹饪操作空间,一方面将冰箱等电器释放出来,保证公共区域的采光。
5. 屋主需求:屋主外出时,希望猫能有一个自在安全的活动区,避免无人看管时在家中捣乱;
解决方案:为猫设计了一处封闭式的柜子,柜门为透气性设计,柜内则是猫活动和休息的空间。
6. 屋主需求:卧室需要足够的收纳空间,且不影响卧室的宽敞舒适;
解决方案:巧用偷空间的概念,以衣橱代替实体墙隔断,利用墙体厚度作为衣柜空间。


于是在这套案例中,设计师大量运用原木材质,以此为阿阅打造一个可以自在做自己喜欢的事情,静谧温柔的空间。

53㎡也可以实现“玄关自由”。
原本没有正式的玄关,设计师利用多层实木板的厚度+找平的厚度,在进门处“划分”出一处长方形的小区域,作为换鞋区。


玄关左侧,铺贴占满储物柜侧面的穿衣镜,完整玄关的功能性。

原始户型各空间划分独立,呆板无趣,也不符合阿阅的生活习惯。

老友记给我们种植了“爱人在身边,朋友在隔壁”的人生理想,而阿阅已经实现了一大半:她的几个好朋友兼合作伙伴都住在同小区,这张长桌足够三五好友围聚在一起,办公聚餐八卦下午茶。

为保证活动行走的动线流畅,收纳区域围绕墙体边缘组合。




阿阅出国旅拍的时候,就会把猫放在里面,木边框夹防盗网的设计,满足了透气性,安全性和美观性,让阿阅可以没有顾虑的出门。

靠窗的区域被布置成阿阅的工作区。

百叶窗将阳光过滤得极尽温柔。
阳光笼罩这一区域,通透明亮又不刺眼。宽敞的桌面满足了阿阅做手工,练书法,画油画等诸多爱好。

这处小天地里,所有看似琐碎,不相关的小物件,都是阿阅旅行中的收获,记录了旅行的意义。

阳光所及之处,生活向上生长。

阿阅的客厅里没有电视,也没有投影仪,她更愿意把时间花在看书和做自己喜欢的事情上,画画,练字,撸猫。

摒弃了电视等传统影音设备,客厅也实现空间自由:打破常规,只有居住者需要的,才是必须的。
阿阅喜欢阅读,那就在客厅开辟一个阅读角。

窗旁,最靠近阳光的位置,摆上单人沙发和小桌。再利用墙体的空间,设计内嵌式书柜,最近爱看的书都放在这里,随手即可拿取。




有家,有阳光,有猫,有热爱,就是最好的时光。


客厅与卧室相隔的墙体,被偷偷换成了收纳柜,面向卧室的一面打开是衣橱,从客厅里看,则是与隐形门串联成一体的木饰墙。

偷了墙体的厚度来设计衣橱,为卧室省下了不少空间。仅有12㎡的房间,也尽量保持通透与开阔。

床头背靠的墙面贴了一面护墙板,用的是设计师淘来的实木板,敦实温润,那些岁月,山风和细雨给树木留下的每一条纹理都清晰可见。


靠窗的书桌是阿阅的梳妆台也是办公桌,布置简单却也很温暖。

房间门和衣柜为同一材质,加上隐形门的设计,仿佛是衣柜的延伸,视觉温柔干净。
改造后的沐浴间从房间里出入,半透的玻璃推拉门隔断水雾。


阳光从窗户倾泻而至,照得房间暖暖的。

三分离的设计,拯救了原本狭小逼仄的卫生间。


盥洗台首先实现独立,被安置于公共区域,成为串联厨房,卫生间,客厅等多个空间的中心。
私密的沐浴间则改从卧室出入。

最后是使用率偏高的马桶区,为方便日常使用,保留了从客厅出入的设计。

改造后的厨房被一分为二,保留了足够的中式操作空间,满足烹饪的需求;而冰箱等电器则被释放出来,使公共空间更为开阔通透。

操作空间虽小却也五脏俱全,L型的橱柜布局紧凑,动线流畅,从备菜到烹调一气呵成。

橱柜为实木材质,涂刷木蜡油,保留了木质天然的肌理和色泽。
地柜的可抽拉板专为放置电饭煲等电器设计,使用时可拉出,便于使用和透气,满满的小心机。
原创编辑|猎舍
作品名称:阅宅
项目类型:平层
项目设计:何雨晴、吴晨