每个人独特的气质都会和他周边的事物产生奇妙的化学反应,屋主W小姐是一位服装设计师,喜欢水泥、木质这些近乎自然状态、不经雕琢的美,善于捕捉住蕴藏在审美对象深处的本质性的东西。
“不均衡、俭朴、枯高、幽玄、脱俗与静寂”摆脱风格框架,去掉不必要,设计师以简约率真的笔法,经过岁月洗炼古雅、俭朴的意象,来诠释屋主所追求的侘寂和禅意。
项目地址:东莞海逸豪庭
项目面积:230㎡
设计风格:工业风
设计团队:尺子室内设计
软装设计:由房到家软装
落地管控:尺子&设美家团队
原始结构↓

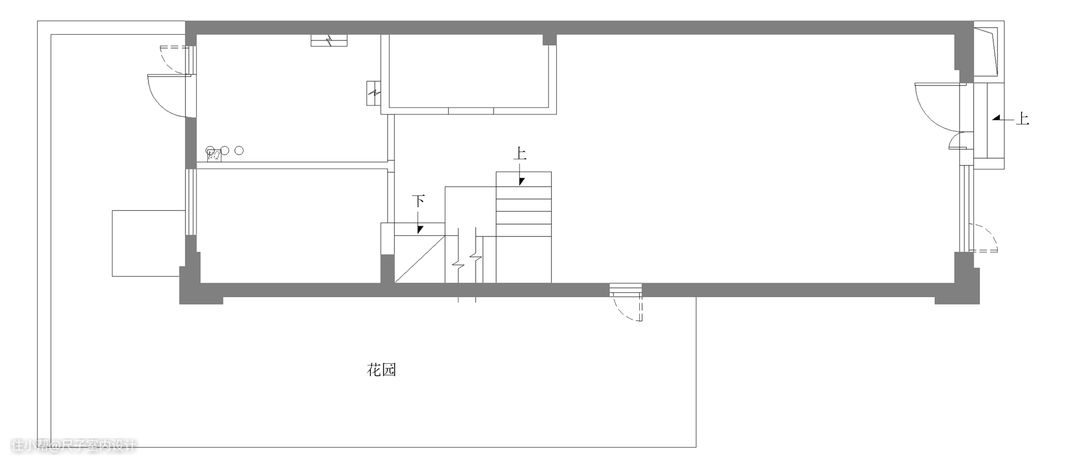
平面布局↓

1、我们在入户打造门厅般感觉,让业主回家能有一个更强的归属感;
2、楼梯位置以及造型变动,改造后楼梯占用更少的空间,也更有安全感;
改造前↓


改造后↓

室内采光依托于自然光线,光影相互映衬,留白的空间给快节奏的都市人以舒缓平静的心境。
有一扇窗,有几多美好:看青草带着露珠欢笑,听夏雨潺潺,秋虫呢喃细语,风远道而来带着片片雪花……

越朴素越高贵,树木年轮顺应时间自然演进,是一种强调本质的素朴之美。


各区域视觉结合功能隔离;餐厨一体化,柴米油盐,回归最本质的生活需求。

楼梯口摆放了一排拴马桩,取门庭兴旺之意。
精美的石雕艺术与木柱简约婉转的年轮,传统元素与自然元素交融,一同展现雅致、古朴的禅意美学。


灵动光影,水泥灰墙体,用最简单的材料,最少的雕琢,还原最本真的美感。


水泥灰朴实无华的自然韵味,与生俱来的清雅厚重,营造“素面朝天”安静惬意的休憩空间。
大量自然无修饰的天然材质,在尊重旧物的前提下与现代器物结合,粗糙与圆滑的肌理质感碰撞,让整个空间透出一种含蓄内敛的美。



日间温柔的自然光线透过窗框与窗棂,营造出充满戏剧性的光影空间。



用于观影的视听空间,通过对天花墙面进行处理,实现光线以及声场的层叠变化,从而提供更宜人的观影体验。



老物件经历了岁月的打磨,沉淀的是生活质感,带着旧时光的韵味,总能勾起我们对过往的回味。


采光井连接室内外光线,云淡风恬,繁星布施,将自然之景留存在居所内,才是真正的奢华。


叶儿在摇,花儿在笑,姹紫嫣红的景象又将我们从古朴沉寂的室内带入生机勃勃的大自然。

