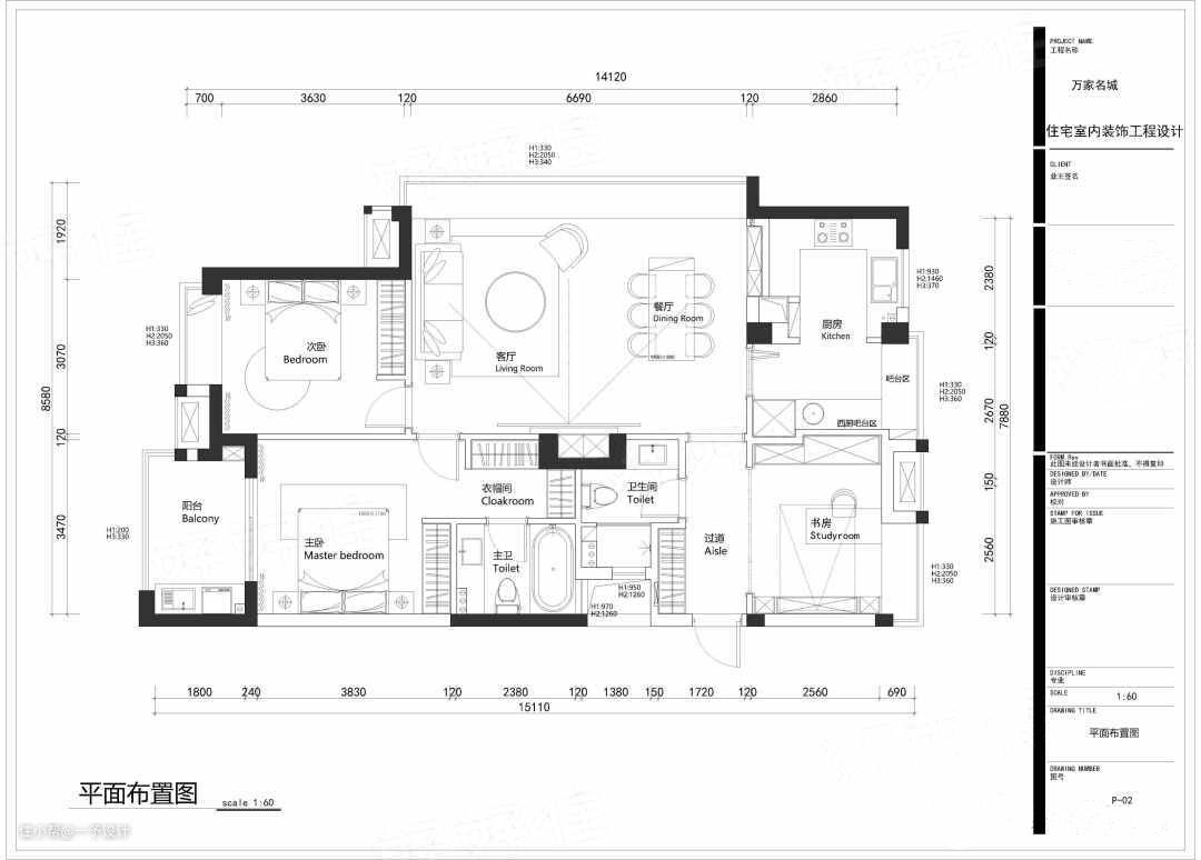
说在前面: 在杭州房市并不怎么疯狂的时候,一直在兜兜转转的看房,各个楼盘相间奔走,终于在2016年年初下定决心买下了当时周边配套设施并不怎么完善的房子,130方,户型还算不错。也算是完成了人生中的一件大事。 然后就是开始了对装修完后的各种想象,经过近1年的努力,看看 施工完后130方的房子 如何拥有5米面宽的客厅,大飘窗,中西厨,岛台,“伪”衣帽间,大露台,多功能室。一直没急着发帖,把入住后的感想一并和大家分享下,希望能给到大家一些意见。 小区丨万家名域 户型丨130方 3卧室+2厅+2卫 风格丨现代、轻奢 费用丨50万(全包) 设计施工丨一予设计 户型图


▲给到原始结构图和平面布置图作为参考,下面我会阐述下,和设计师沟通后,设计的一些理念和一些比较实用的方法。 设计阐述

▲这里把卫生间的墙体外玄关过道区域移动了 25-30公分,这样的好处,可以把原先鞋柜的深度从30增加到了55,增加储藏空间 并且冬天的一些的外套都可以放在进门的柜子里,还是非常实用的。很多鞋子都可放鞋盒里堆放起来储藏。而且这样的改动还有个好处是使卫生间台面也变大了。

▲厨房和多功能房间得放一起跟大家讲解我们的设计理念,其实这个区域从原始结构上是两个面积很小的房间,小到放个床都必须得靠着飘窗去放,从舒适度上体验是非常不好的。介于我们是三口之家住,又觉得厨房空间对于我们后期居住会是比较重要的一个区域,决定把半个房间改成我们西厨的空间。

▲多功能区域,我们做了蛮大的改动,后面照片中也能看到很多好玩的机关,图片中大家分享,我们如何去考虑的。

▲通常这样的户型有些设计师都会把次卧外面的那堵墙做成电视背景,这样就破坏了整一个客餐厅的空间感。 如下图:

▲对于这个户型来讲,能够改动的区域只有这一些,其他区域原本就比较合理,后期只要家具摆放进去就可以了,过多的改动,只会是为了设计而去设计,徒劳增加预算成本,当然不排除有特殊的需求。

▲不多说,来个对比,去体会下设计带来的空间感 你们更喜欢哪一种感觉。

▲深灰色鞋柜搭配金属开关,空间大且轻奢风满满

▲看到画两边为什么会有两根挂线了么?为什么要这么做呢?还有夏天冬天怎么办?整个屋子没有空调?带着这些问题我们继续。。。

▲客厅地面铺设灰色浅花纹复古砖,木门和门套居然没有用到同一种颜色,用粉色作为墙面色调,其实在调色的时候的一个失误造成的,对于空间美学的要求,一个空间内 冷暖色调不宜同时出现 后期入住后反而暖色墙面会更加温馨,更舒适,蓝黄色抱枕、黄铜茶几和装饰品、泼色画等等让整个空间活跃起来。

▲客厅的大飘窗,原本想拆了,或许会使空间更大,但后来测量了下飘窗的高度 也正好是一个沙发的高度,拆除飘窗增加预算及后期会增加出问题的风险,物业原本也不让拆除飘窗,权衡再三还是做了保留。

▲这个时候就到了 客厅的背景部分,卖几个关子?墙面背景的材质 有没人了解的?背景墙为什么会有轨道?电视柜 为什么是这样的?

▲原本酒柜的位置是厨房进门的区域,原进门区域会使餐厅区域显得很局促,把厨房门放在过道区域,对于生活动线上会方便很多。

▲大理石台面,表面经过抗污处理,不会出现油渍,茶渍渗入进去的问题, 一般天然大理石其实表面都有细的小孔,特别爵士白等白色大理石,不建议直接使用,切记。

▲看到画两边为什么会有两根挂线了么?为什么要这么做呢?还有夏天冬天怎么办?整个屋子没有空调?带着这些问题我们继续。。。

▲客厅地面铺设灰色浅花纹复古砖,木门和门套居然没有用到同一种颜色,用粉色作为墙面色调,其实在调色的时候的一个失误造成的,对于空间美学的要求,一个空间内 冷暖色调不宜同时出现 后期入住后反而暖色墙面会更加温馨,更舒适,蓝黄色抱枕、黄铜茶几和装饰品、泼色画等等让整个空间活跃起来。

▲客厅的大飘窗,原本想拆了,或许会使空间更大,但后来测量了下飘窗的高度 也正好是一个沙发的高度,拆除飘窗增加预算及后期会增加出问题的风险,物业原本也不让拆除飘窗,权衡再三还是做了保留。

▲和餐厅一致风格的分子灯、衣柜,主卧的装饰搭配一脉相承。但也露出不同,床头柜、装饰画、台灯表达了业主私密空间的个性化。

▲为什么标题一开始说到是“伪”衣帽间? 其实这个是原户型结构上面就有这么一个 转角柜子,在平时生活中,洗漱完后的穿戴都在这个空间,还是比较方便的,所以更多的把他作为衣帽间功能,也是极好的。

▲女孩子家的房间 还是以粉色墙面为基调,高低铺比较省空间,留出了很多空间作为活动空间。

▲原本房子主打的是四房的户型结构,朝北两个房间原本是很小的,可以说比较鸡肋,设计考虑的初期就把中间一个小房间一分为二,一半作为西厨,一半增加书房空间,增加储藏空间,这样书房的可变性就变得很强。


▲书房设计成了多功能的空间。折叠床、活动书桌、跑步机分别对应着居住、学习、健身的功能,极大化利用有限空间。这个状态是现阶段我们家呈现的最多的状态。



▲这个是慢慢变成书房的过程。



▲这个是慢慢变成客卧的过程。

▲这样的大露台,不利用起来,就只是用来洗洗衣服的话就太可惜啦,所以现在我已经彻底的沦为了一名阳台党,平时养养花,养养龟。后期准备把洗衣机换成洗衣,烘干一体的,这样可以纯粹的当做一个休闲阳台,也是极好的。


▲卫生间区域墙面砖选的比较便宜的通体砖,本来采光不是特别好,没有去考虑特别暗的瓷砖,这个可以作为控制预算的一个方面。有需要了解的可以私信我,给你们意见。对于化妆品东西比较多,还是很有必要做一个镜柜的。
走廊

▲因为电视背景后面是一个柜子,所以这个电视墙是可以移动的,背后藏了很多零食,哈哈 表面涂刷的是投影漆,效果也还不错,对于没有太多画面追求的人来说,激光投影的效果已满足大部分人的要求了。

设备篇

▲我们家没有任何空调出风口,因为装了毛细管空调,至于空调的特点,有兴趣的亲 可以私聊探讨下 主要特性: · 恒温:一年四季室内恒温20℃-26℃,温暖如春 · 恒湿:全年室内相对湿度保持40%RH-65%RH,告别冬季采暖干燥和夏季黄梅天 · 新风:五级过滤加TVOC等离子催化技术过滤净化新风,空气更洁净清新 · 静音:室内无电子设备,机器运转声音小于28dB · 节能:比传统空调系统节能50%以上 · 美观:不占用室内面积,隐形安装更美观,适应各种装修风格 没有出风口还有个好处就是没有二次污染,其实风口空间本身就是藏污纳垢的地方。
