
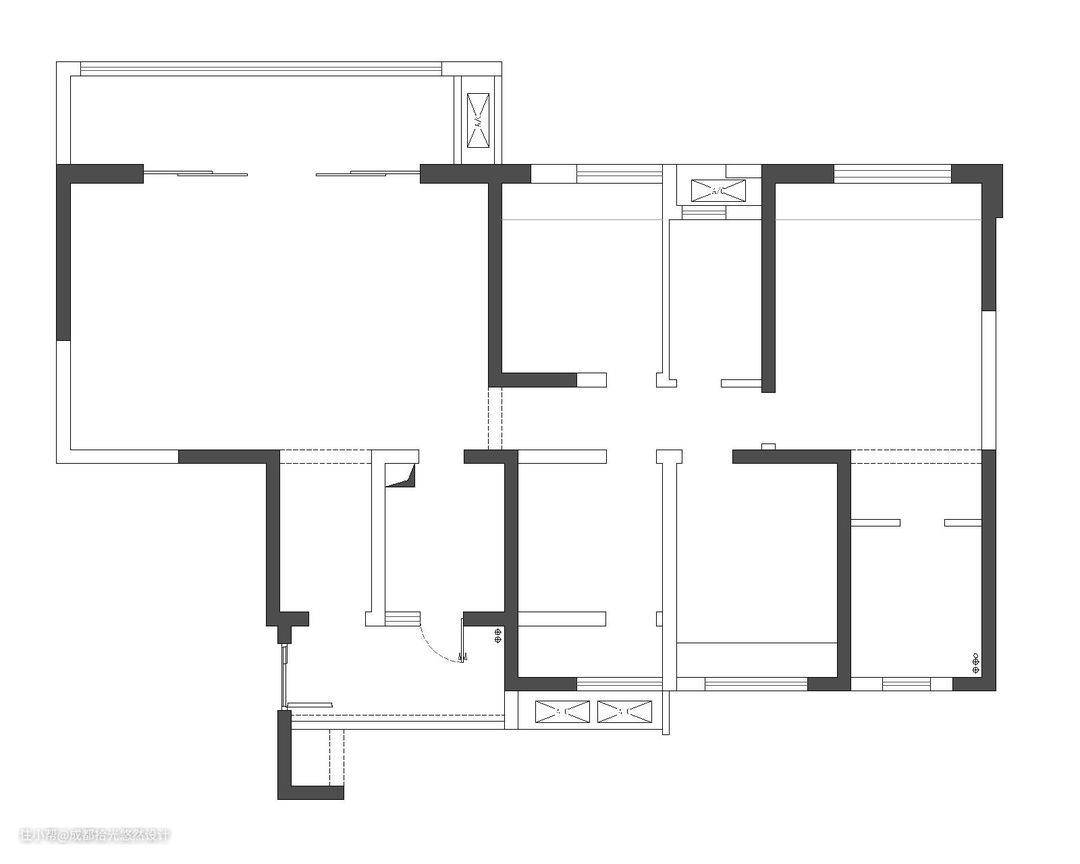
● Demand 1. 厨房面积小,进门正对生活阳台,视觉不舒适。 ● Demand 2. 主卧衣帽间小,收纳不足 ,而屋主衣服比较多希望有更大的衣帽间收纳。 ● Demand 3. 门厅和客餐厅之间过道狭长,空间面积浪费。 ● Demand 4. 风格杂乱,希望风格统一。

● Solution 1. 从入户和生活阳台之间砌一堵墙,把原来的生活阳台和厨房结合,增大了厨房的空间,而且避免了进门看到生活阳台的尴尬。 ● Solution 2. 把衣帽间和主卫生间之间的那堵墙拆掉,衣帽间压缩主卫生间,增加收纳面积,主卫取消淋浴,使用也不会局促。 ● Solution 3. 入户、客厅、餐厅、卧室、阳台都考虑了足够的收纳,以至于业主感叹,收纳太多也有烦恼,不知道放什么才能填满柜子。 ● Solution 4. 整体风格没有完全统一,部分空间加了客户喜欢的东西,比如书房的粉色的搭配以及主卧室深蓝色的背景墙。

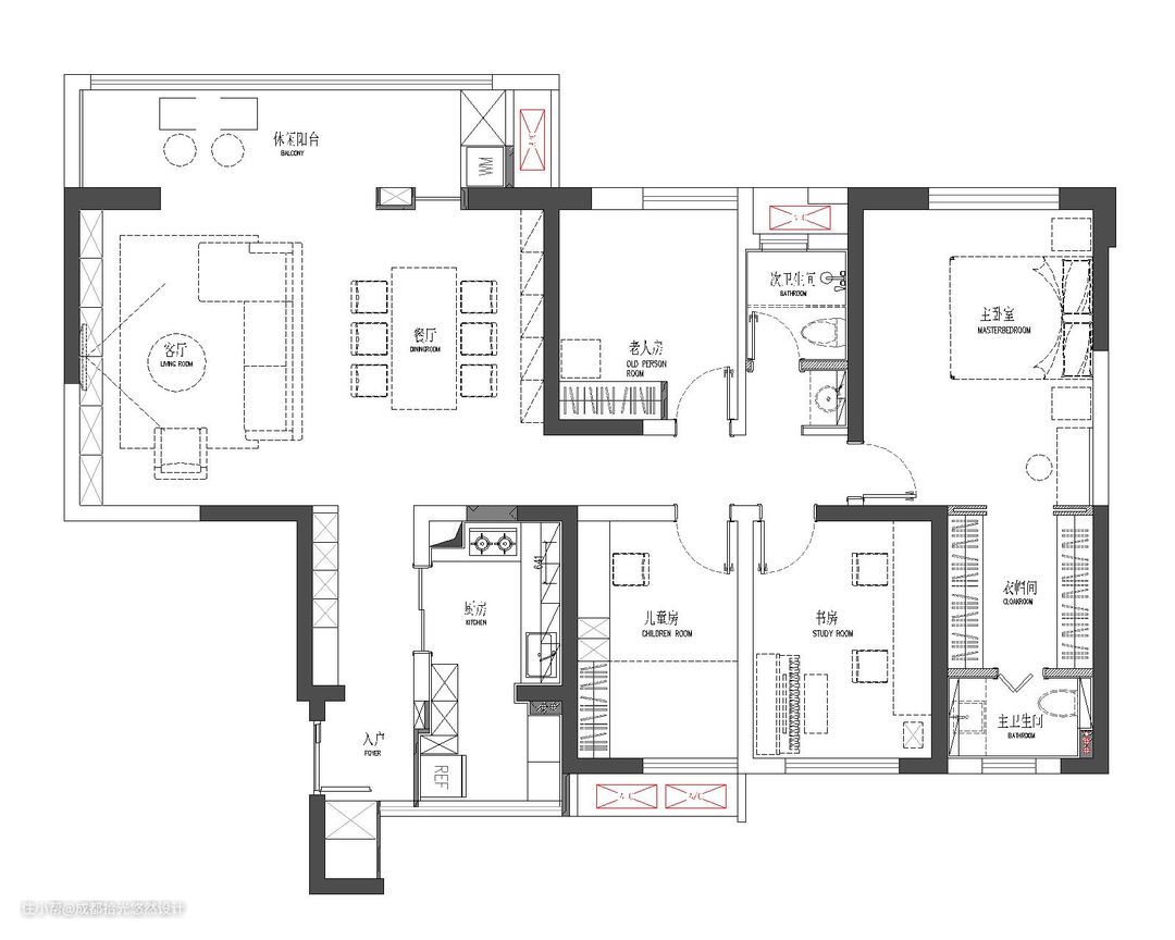
因为扩充了厨房,所以玄关相对变小了,通往客厅的过道考虑了鞋柜位置,避免了过道的浪费,增强了鞋柜的收纳。 业主喜欢坐着换鞋,而且喜欢不用打开柜门就能拿到鞋。 所以考虑鞋柜下面的部分考虑镂空的形式,方便放当季的鞋子,柜子左边的换鞋区的位置考虑和鞋柜一体,增强整体性。


厨房位置改了门洞的方向,避免了厨房门对着餐厅导致空间立面不完整,而且改过后的厨房门空间不会局促视觉通透性更强,而且也会增加过道的采光。

拆除阳台和客餐厅的推拉门,形式上让视觉更通透。 阳台会考虑烘干机的位置,所以使用了隔断来遮挡,以储物柜和长虹玻璃的组合来处理,既保证了采光还增加了阳台的储物。


客厅因为有大量的书籍,零食,以及其他杂物的储物需求,所以客厅的整面墙考虑了储物柜的设计。 柜子局部考虑了开放格形式处理,既可以作为书籍装饰品的展示,也让整个空间不会觉得压抑。








餐厅考虑了1.8米的餐桌,除了平时家里人吃饭,也可以容纳更多人聚餐。





主卧的背景墙面刷了深蓝色乳胶漆,烘托整个空间宁静,深邃,让人完全可以放松下来。 主卧的床考虑了复古的牛皮层床靠,床头柜采用了宜家黑色铁艺柜子,在整个静谧的空间增加了复古元素,让空间充斥的静动的活力。

主卧的整个空间是比较大的,不过原户型留给衣帽间的位置较小,而屋主需要更多的衣物收纳,所以考虑压缩卫生间,以此增大衣帽间。

主卫仅考虑了马桶和浴室柜,让次卫代替淋浴功能,虽然卫生间被压缩了,但真正使用整个空间还是很宽敞。 进入主卫的门考虑了日本的折叠,性价比颜值都很高,而且耐水耐用,因为不设置淋浴对防水的要求不高,所以主卫考虑了面包砖半墙的形式,空间显得更精致。


书房书桌采用了宜家的经典搭配,满足两个人的办公需求。 右边角落的位置放置了懒人沙发,工作完以后,可以躺着看看书,弹弹吉他,工作一天后可以得到深度的放松。 书房的乳胶漆颜色采用了黑色半墙,挨着书桌的那面墙运用了业主喜欢的脏粉色处理,增加了整个空间的层次感。
屋主希望他的家简洁舒适,储物功能强大,并且希望增加一些形式感。我们围绕着他的核心诉求,在收纳功能和增加一些形式化作为本案的重点。 房子整体挺方正的,但是局部空间存在比例划分不合理。所以我们对空间进行了重新划分,让空间配比更加合理,运用一些隔板,和柜体开放格的形式,增加了一定的装饰性。 阳台隔断的运用,既划分了区域,还增加了储藏功能,根据屋主的生活方式和居住动线将收纳功能合理的分配到每个空间,让每一个物件都能达到触手可及,整个空间色系考虑以沉稳为基调,既耐看又体现质感,空间运用了一些跳色,点亮了整个空间,不乏活力。

