流动性、复式结构、开放性是loft公寓设计的三大特征。虽然空间不大,但通过巧妙的设计,不仅能打造出简约、有层次感的室内空间,还同时具有舒适性和时尚感。 项目位于成都市乐活公社,本次设计是为一位设计师妹子打造一间舒适自由的独居空间,所以设计重点更多的放在利用好每1㎡设计一种轻松自在的生活方式。

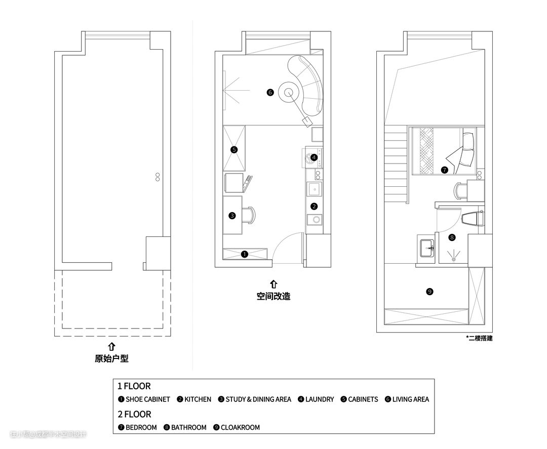
该公寓单层使用面积仅23㎡,为一室一厅的框架结构loft户型,层高4.7m,整体房型还算周正。考虑到层高及业主的生活状态,我们将它划分为上下两层(建筑下层包含了集客厅、厨房、餐厅和书房于一身,上层为卧室、卫生间以及衣帽间),功能区也因此得到拓展。

我们在靠窗的客厅区域保留原始的挑高空间,增加了客厅的日照体验,带来了良好的采光,整体设计以浅色为基底,干净通透,搭配精致小巧的家具,让小空间在满足功能性需求的同时,拥有时髦的设计品位。

装修前后对比如图,考虑到成都地区的采光本就不是太好,所以“半搭”的方式能够尽可能的保有LOFT户型双层采光优势。同时配合北欧简约风的软装搭配,最终案例的完成效果时髦感十足。

打开门,铺面而来的明亮与清新是这套简约loft给人的第一印象。一眼便可望到头的格局十分的小巧,整体采用了开放式布局,将客厅、厨房、餐厅整合在一起,整体布局紧凑却一点不显拥挤。

入户的左手边是玄关柜、鞋柜,顶天立地的设计合理利用立面空间,包括搭建楼梯下方的面积空间都相应做了储物功能,家里80%的生活用品都被收纳在柜体内,保证整体视觉上的清爽,让居住体验在紧凑的空间内尽可能提升。

靠墙的桌子可随意切换书桌和餐桌功能,折叠凳放置于储物柜中,解放了客餐厅空间。平时这里就作为一人居的书桌使用——铺上清爽简约的桌布,摆上喜欢的挂画和收纳摆件,成为令人心绪安静沉淀的家中居心地。

考虑到屋主平时会自己下厨的习惯,在有限的空间内满足日常下厨的基本功能需求,电磁炉、水槽与楼梯间下方的冰箱则组成三角形的厨房动线区域,使用起来流畅便利。

大显身手的精致小厨房。灰色哑光砖,搭配白色橱柜+吊柜,清新整洁,足够的收纳空间才能保证空间的整洁,避免杂乱感。

对于包管导致的异形厨房空间,很多人家中应该都有类似的情况。由于异形导致橱柜台面变窄、难以使用,其实可以将墙立面的空间有效利用起来,例如我们这里采用的一款壁挂式的置物架,用于收纳厨房刀具、锅铲等物品,非常方便好用。

半搭设计保留了空间的挑高,光线可以毫无保留的进入其中,也增加了公寓的整体空间感。

暖白色为主体的设计,使室内环境更加明亮、通透。对于家具和装饰物品的要求会更加考究,颜色的呼应与舒适度相辅相成。飘窗柜的定制,合理利用空间并解决了储物的需求,飘窗柜加上软垫可以坐人,满足会客需求。

小空间楼梯部分可以适当做做减法不用扶手(当然需要结合业主本身属性,有小孩的家庭不推荐)。因为屋主相比于电视效果更倾向于投影的大屏视觉感受,所以适当的减少了楼梯步数退出空间,让投影尺寸得以实现。

开放式布局不仅让室内更加通透、具有流动性,同时也在一定程度上让原本较小的loft显得开阔宽敞。

由于LOFT户型空间较小,所以尽量采用开放、通透的布置,不再增加墙体或隔断来分割空间。转而通过软装搭配上的沙发、地毯等材质,我们将客厅休闲区与厨房、玄关区域实现了“冷调-暖调、硬朗-柔软”的对比,从内在感觉上来实现空间分区。

二楼栏杆采用了全玻璃形式,让卧室和整个空间完美结合,使得整个空间更显开敞明亮。

因为搭建后的层高比较矮,考虑到安全等原因,干脆就省略了床体,直接用地毯+床垫来降低床高。

床边的梳妆台其实是用壁龛+定制柜组合出来的,有效利用空间,再配上一把幽灵椅简约而时尚。

本身的下水管道位置尴尬,做了包管处理后,索性改造成了现在看到的床头矮墙以及梳妆台,使得包管位置不显突兀,加上灯带后氛围感十足,同时兼具展示和置物功能。

摆上喜爱的手办和书,温馨又治愈。

卫生间基本上算是极限尺寸了,采用了洗手台外置的方式来提升利用率。白色的立柱盆与空间协调,白色1.6高细长柜体满足收纳。

卫生间内采用壁挂式马桶,不留卫生死角同时利用马桶预埋水件做一个半墙,增加储物功能。淋浴区以浴帘分隔,通过壁龛来收纳储物,有效利用空间。

考虑到地台高度和粱的位置,衣帽间并没有做门而是定制了门帘,电热水器也移至衣帽间解放卫生间空间。

开发商赠送了一个半高的楼梯夹层,把它利用起来做成了衣帽间。L布局的组合式衣架经济实用,再配上一组灰色拉帘干净整洁。

本案装修花费如图所示。初期装修预算为10W,实际花费11.8W,虽然略有超支但是控制得也很不错了!因为本案户型属于LOFT公寓,户型改造涉及搭建,这部分的花费是比较多的;另外就是改消防、办理装修手续等必须的额外杂费的支出,所以基装花费占比较高。不过后期也采取了很多省钱的办法,例如使用网购的组合式衣帽架来代替全屋定制的衣柜,节约了不少的预算呢😉

本案的软装好物分享如图,如果想要获取完整的软装清单,欢迎关注我们主页的分享笔记或私信获取噢
Q:装修过程花了多长时间? A:3个月 Q:原始户型存在哪些问题? A:户型本身面积偏小,套内使用面积单层只有23个平方左右,半搭的设计更使得二楼空间减小,赠送的楼梯间就更需要利用起来 Q:对平面布局做了哪些优化改动,为什么?解决了哪些问题? A:4.7的层高做了钢结构半搭,保留了挑高增加了整个空间的采光性。靠窗位置,楼梯下方还有赠送的楼梯间都相应做了储物功能,楼梯间改做衣帽间,L型开放式衣架满足一切衣物收纳,进门靠墙位置做一整面鞋柜。足够的收纳空间才能保证空间的干净避免杂乱感。 Q:说说是什么给了你灵感,打造出现在这个作品的? A:因为本身对loft空间的喜爱,与客户本身观念的契合 Q: 整个作品中最满意的是哪里? A:半搭设计保留了空间的挑高,玻璃扶手让卧室和整个空间结合的通透干净,各个空间小而实用。弧形沙发椭圆形玻璃茶几以及圆形倒角地毯也相互呼应,使得氛围温馨感十足。 Q:在整个装修设计期间遇到最大的挑战是什么? A:本身空间的狭小,还要做半搭设计,相应就会压缩每一个功能空间的使用面积,例如卧室区域卫生间还有楼梯。 Q:回头再看这套房子,设计当中有什么遗憾的地方吗? A:搭建时由于搭建方理解问题,没有在工字钢中间做混泥土现浇,而是为了稳固性在工字钢以上做混泥土,使得二楼层高压缩了10公分左右。 Q:你在设计过程中做了哪些个性化改造? A:楼梯没有做扶手,楼梯简做十一步退出了投影空间。二楼栏杆也采用了全玻璃形式使得整个空间更显开敞明亮。本身的下水管道位置做了包管处理后做了床头以及梳妆台,使得包管位置不显突兀,加上灯带后氛围感十足同时兼具展示和置物功能。卫生间小而精致,墙排马桶解决下水管道问题,利用空间做了壁龛方便放置洗漱用品,洗手盆外置白色的立柱盆与空间协调,白色1.6高细长柜体满足收纳,电热水器移至衣帽间解放卫生间空间。衣帽间因为地台高度和粱没有做门而是定制了门帘,同时没有做传统柜体而选择了成品衣架。复古冰箱旁一米长书桌满足办公需求。因为都是开敞的空间也就没有用传统的空调柜机或挂机,直接做了3p风管机,满足了制冷制热的需求。 Q:在案例中有哪些装修经验可以分享,或好物推荐? A:在开间比较小的空间做搭建可以直接在工字钢中间做混泥土浇制一样能满足稳定性。小空间楼梯部分可以适当做做减法不用扶手(当然需要结合业主本身属性,有小孩的家庭不推荐)。地板考虑成本没有选用多层实木,摒弃了传统土气的地板收口条,网购了截面更小的地砖收口条,安装师傅很给力,完成后楼梯地板阳角收口完美精致。
