户型解析
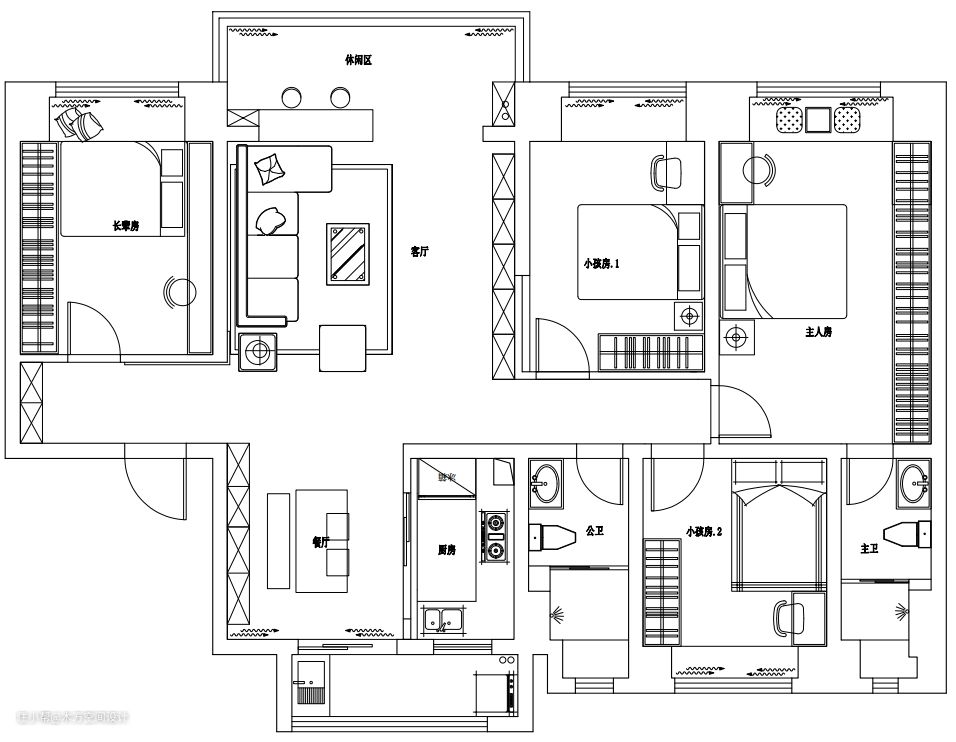
设计公司:云端空间设计 / 设计师:卢工 施工单位:江西云之端装饰工程有限公司 房屋格局:4房2厅2卫 / 项目面积:132平方米 【平面功能定位】 1.本案同样是碧桂园精装房,套内132平方,功能布局及拆改倒不大,地面及卫生间不动 2.业主要求现代偏商务型,收纳要求高,全屋将近60平的柜体,地面碧桂园特色大黄砖不更换。 3.将南阳台打通并入客厅,增加小吧台,弧形吊顶使天面空间更有层次感,也为了使空间更加对称
前后对比
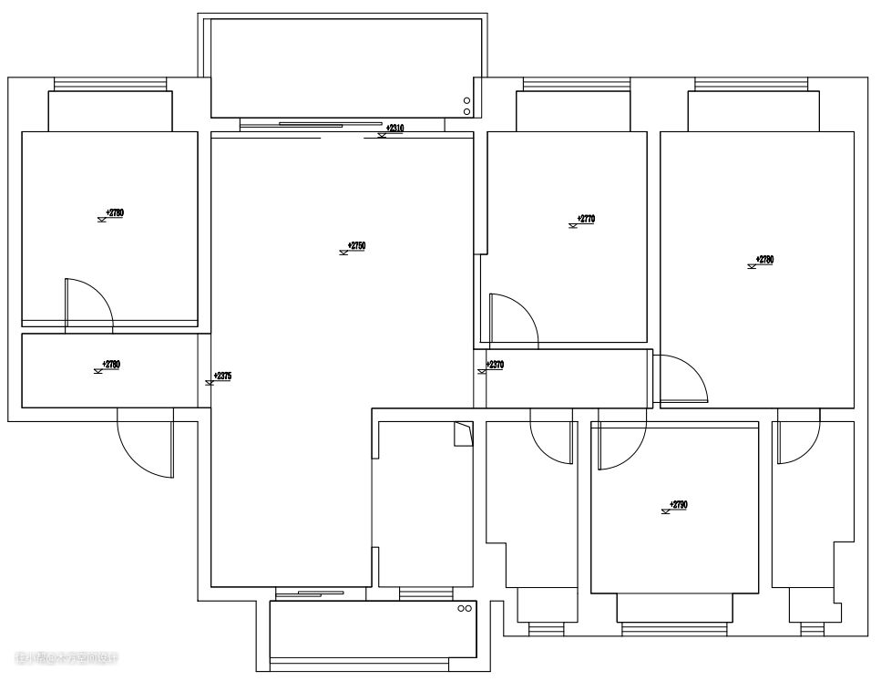
原始结构图

平面布置图

玄关
入口处鞋柜、玄关、线性灯

客厅
客厅没有采用传统电视背景墙做法,整体是柜子+投影机的一个方式使客厅显得更加别具一格

餐厅
餐厅的酒柜也不是不可缺少的,酒柜采用灰色玻璃+暖光灯带点缀 高显氛围

主卧

次卧

儿童房

