本案是一个民宿改造项目 这是一次非常机缘巧合的事情,当时在当地做另外一个项目,第一次考察项目的时候网上订的酒店就是这家民宿,由于离我所考察的项目地非常近,大哥也相当的和蔼可亲,服务非常好,还有接机服务。当然接机也是我们第一次见面,我也是第一次见客栈老板亲自开车接机的,路上聊了很多,大哥问我:是过来旅游的?我说:过来考察项目给人做客栈设计的,也聊到了他自己的客栈打算重新翻新,让帮忙看看,我也很痛快的答应了。 来到客栈收拾好东西后,大哥楼下泡好茶邀请我喝茶,喝茶期间聊了许多 他们是多年前来到这里定居的,夫妻两人自己打理这家民宿,前几年生意也挺好的,也积攒了一定的老客户,但是现在随之中国旅游业的飞速发展,民宿客栈产业链也获得了深层次发展趋势。它的设计构思变得越来越形式多样,功能也变得越来越健全,现有的功能性及之前都是大哥他们自己摸索设计来做的,所以有些地方确实已经达不到现在旅游朋友的喜爱 不过因为之前积攒的老客户,客流量也不是太少。我也给了他很多的意见,因为我是第一次来这个地方,大哥非常热情的带我逛了很多的地方,跟大哥相处的这几天非常的愉快,中途大哥也了解了我之前做过的项目 突然有一天早上大哥找到我说想了两天,也想把自己的房子重新设计一下,问我有没有档期。说看到我之前做的项目非常喜欢,让我设计一下。 对于我来说:我感性兴趣的项目都是喜欢做的,这个院子也承载着大哥大姐两个人的心血,我是非常非常把他家改造好。 就这么机缘巧合的做成了这个项目。 分析一下现有房子: 1.入户大厅没有任何隐私 2.整个公共区域大、空旷,没有太多的功能规划 3.没有明确的接待区、前台、休息区 4.房间比较偏大、空旷利用率太低、一层空间采光、通风、极差 5.一层小院天井利用率太低(雨天基本没办法使用) 6.预算能压缩就压缩同时保证效果 7.房间需有一定特色 规划意见: 面对的多为小众市场,而非大众群体。因此,民宿规划设计必须明确服务对象,要明白“我的民宿要提供给什么样的客人”。只有坚持良好的特色与风格,选对合适的客人,才更能创造民宿本身的魅力与价值。 民宿设计的初衷就是要让人们体验一种返璞归真,亲近大自然的生活状态。的让在喧嚣的城市里每天面对快节奏,极大压力的人能够得到一种放松和休息,给他们提供心灵庇护的港湾,愉悦身心。民宿设计的设计风格是完全不同于商业空间设计以及酒店设计,提倡的都是一种质朴,清新的田园风派,简谱中却孕育着生活的诗意 因为做当地项目设计必须是最适合表现当地特色风情的地方,能够让游客体验与自己所在地文化特色的不同 很快第一次考察就结束,我充分了解对象的现有功能和损坏情况。其次对建筑周边的自然环境进行考察,了解要进行设计的建筑物与周围环境的互动与联系。 PS:照片拍摄于项目完工后一年左右,受大哥邀请过去玩时拍摄。 为什么一年后拍摄, 1.是看一下通过一年的客户反馈哪里能够改进 2.主要是为了我自己可以在看项目的同时,会友、游玩等 人可以改变环境,环境可以影响人,而设计则可以改变人和环境

一层原始勘测图 暂时分析一下整个布局的缺点 1.入户区域没有玄关、接待区,保证不了院内人的私密性 2.一层三间房间户型偏大比较浪费空间及采光 3.天井空间比较浪费,下雨期间基本使用不到 4.卫生间布局不合理

二层原始勘测图 暂时分析一下整个布局的缺点 1.客房整体,采光通风不好,空间利用率小 2.公共走廊空间浪费

一层家居布置图 1.增加玄关区域,保证院内隐私 2.设置前台接待区,在办理入住时有休息区 3.房间整体内移,增加小院景观,增加房间采光通风 4.卫生间重新布局 5.小院 天井封闭(玻璃)不影响采光,下雨时同时使用

二层家居布置图 1.二层增加更加童趣的亲子房,室内滑梯、木屋、下沉式球坑 3.房间整体内移,增加小院景观,增加房间采光通风 4.增加间LOFT空间 5.小院 天井封闭(玻璃)不影响采光,下雨时同时使用

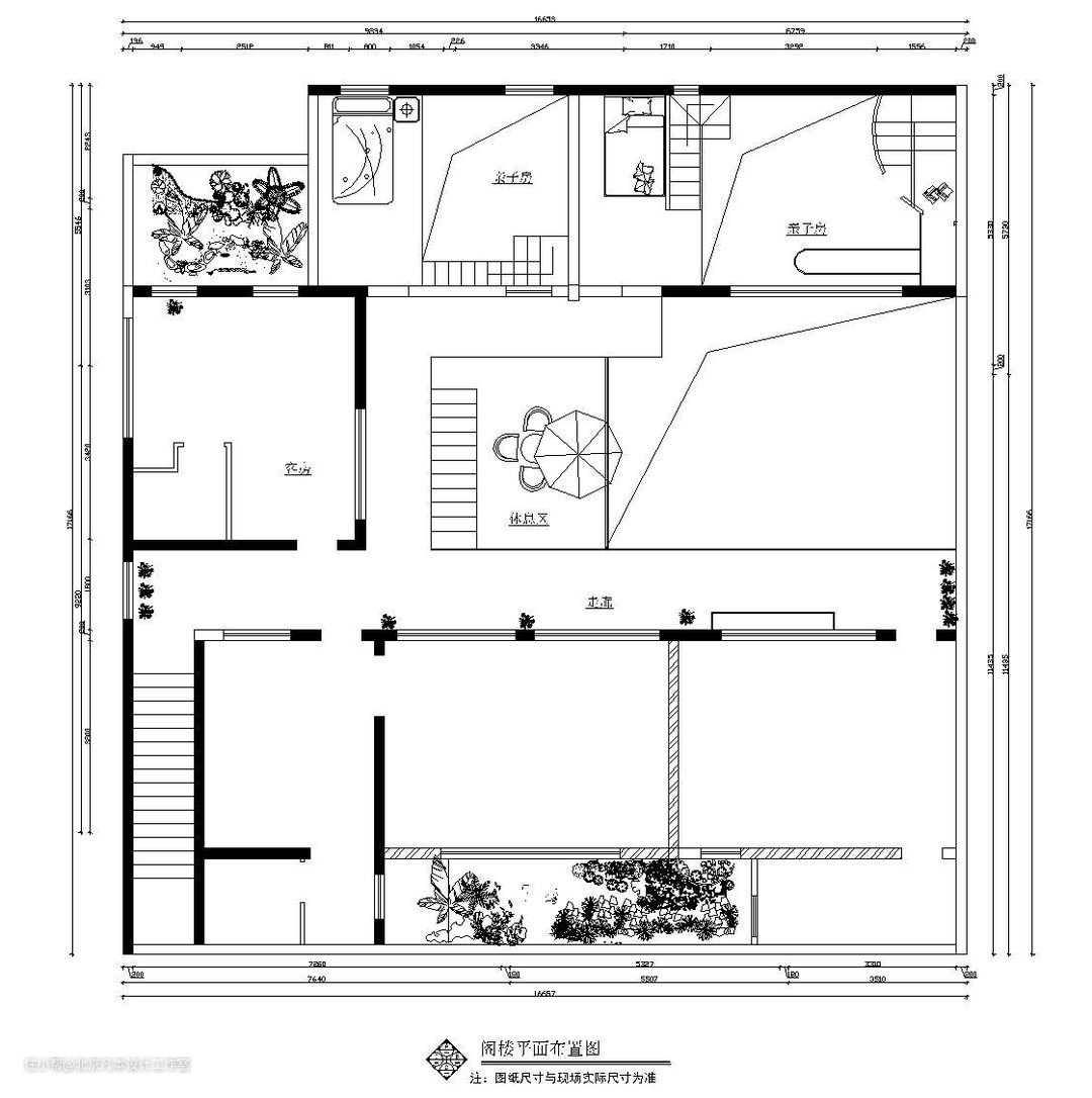
阁楼家居布置图 是针对儿童喜欢钻、爬、滑等特点设计的,色彩鲜艳、娱乐性强、功能齐全、 让带孩子旅游的同时有个孩子游玩的空间

整体拆除完卧室空间

改造后的卧室空间 是针对儿童喜欢钻、爬、滑等特点设计的,色彩鲜艳、娱乐性强、功能齐全、 让带孩子旅游的同时有个孩子游玩的空间

进门右手边是一排收的老木头展示台,玄关正面现场DAY做的装饰品 玄关背后是接待休息去有现场制作的壁炉 把原先地面的瓷砖敲掉换成当地的石材(老羊石)铺设 顶面把原先的瓦拆掉保留木制结构,顶面玻璃封上,下方砖砌的前台 整个空间,高到棚顶的木质结构,与进门的玄关墙,既能保证隐私,又保证整个空间布局的合理性 满足了接待,登记、休息的日常需求

进门右手边是一排收的老木头展示台,玄关正面现场DAY做的装饰品 玄关背后是接待休息去有现场制作的壁炉 把原先地面的瓷砖敲掉换成当地的石材(老羊石)铺设 顶面把原先的瓦拆掉保留木制结构,顶面玻璃封上,下方砖砌的前台 整个空间,高到棚顶的木质结构,与进门的玄关墙,既能保证隐私,又保证整个空间布局的合理性 满足了接待,登记、休息的日常需求

完一层院子顶面二层的风景 当这么美好的天气与天空的景色印入到玻璃上,天空与地面犹如没了界限 屋檐、天空、地面连成一体

整个区域设计从地面、顶面,非常柔和的区分开,从视觉上看又是一个整体但是,每个空间又有独立的区域 地面大面积采用老羊石铺设,为了把现在原素 融合进去及空间上的设计,部分以木色地板砖穿插铺设设计,在木制地板砖的衬托下让整个空间不是那么传统 顶面设计部分保留原结构梁、部分吊顶、中间玻璃顶来衔接,让视觉上提高了整个空间的纵深感。 但是为了空间使用把原先的院子舍弃掉了所以在封完玻璃顶后再靠院墙的地方造了一个室内景,从二楼看起来就是温室里的景观一样

餐厅区域 采用开放式厨房,长条形行餐桌,可以满足10左右人的聚餐 厨房不仅仅是个烧菜、做饭的地方更是娱乐、休闲、朋友聚会、家庭情感沟通的一个空间。尤其对于民宿来说开放式餐厅厨房,大家一起做饭聊天、休息、说笑 顶面错落的灯具,买的草帽改造而成

这样的厨房这样的餐厅 做出来的美味佳肴

同样也是亲子房#LOFT 这个空间改造后比以前空间变宽了一点,把之前户外连廊归到室内了空间使用,这样就可以在室内做之前设计的室内游玩滑梯同时体现“屋内有屋”房内有房”的设计思路 因为整体空间是需要做LOFT空间,所以利用卫生间顶面空间加出楼上空间 带孩子住这间房间的同时孩子和小伙伴可以开心的在室内游玩 同时窗外的美景映入室内,木色地板与木色小屋完美的融入整个空间中

特意挑选的本空间的装饰品 材质:泰迪绒+杨木实木底座 尺寸:75*29.5*57 是不是太可爱了 把它放到整个空间非常漂亮,他还可以供小孩子坐着玩耍,既实用而且美观

站到滑梯看进去的视角,是一层的卧室空间,右边👉是小屋空间,床的👈左边顺着楼梯缓缓上行就来到了楼上小空间 地面木色地板,加上整体空间楼梯扶手及小屋都采用木饰面作为墙面装饰让整个空间显的更加日式更温馨床头 床头下方墙面做木饰面装饰上方刷白色乳胶漆,装上长臂壁灯,就是一个非常漂亮的床头背景 床头柜也是钢构焊接木饰面外面装饰做成整个空间采购的成品物品很少很少,大部分都是现场设计制作的

这是楼上空间,楼上层高不是太高,所以选择性的开了两个天窗,这样 1.可以增加视角高度 2.可以增加楼上采光 楼上同样是保留原始结构细节处理,顶面细节处理吊顶,让整个空间显的更加精致舒服

如名字进入房间让你有种流连忘返的感觉 整个房间的规划为亲子房间,为了一家三口或整个家庭游玩准备的 整个空间是小孩子空间也可以理解为儿童房 作为儿童房区域也是没有太多的造型,利用色彩、家居构造了一间童话房间

小小木框架床,墙面细心的装饰挂架 这间屋的地面也抬高了,为了就是地面做一个下沉式孩子室内玩耍的空间 窗外就是 内移一层的小院,灰瓦与竹子的映衬,虽然房间比以前小了,但是高墙没有了窗外的美景延伸到了室内 鲜明的色彩能吸引儿童的注意力和好奇心,激发创造力,对孩子性格养成有很大的好处

床头背景刷了一个深色的颜色,地面采用浅色木地板,床现场制作。 床的造型设计上做了一个小小房子框架,自己小孩睡在屋里的木屋里面 顶面这间屋没有保留结构,但是利用原始结构做了一个屋顶的造型,柔和的灯光让孩子的眼睛得到最大的保护

亲子房必然有父母住的空间,外面区域就是父母住的大床房,中间用软帘隔断,既能保证隐私又能随时随刻照看自己孩子 室内高度了落差让整个空间显得更加大了。

外面的房间没有运用太深色的颜色,照顾小孩的同时也要兼顾大人 采用比较素的色彩,木色家居与儿童房间形成鲜明的对比 同时卫生间采用干式分离设计,让同时使用时相互不影响

寓意在你出来旅游时住在这个房间里会睡上一个美美的觉,一晚上连个梦都不会做 整个空间规划把原先房间缩小,房间后面做了一个室内小院子,一是增加景观而是增加采光,原先户型紧贴外墙根本没有采光 室内地面原色地板,顶面保留部分结构柱,这样原始吊顶与现在吊顶加上灯光碰撞出不一样的顶面效果 墙壁简单处理白墙,装饰灯就是一个非常好看的背景墙

双面的大落地门窗,完美的解决了之前这间屋的暗、黑、潮的问题 因为地面抬高与外面有个落差,正如日式户型踏入房间前屋外有一个专门换鞋区域

整个房间地面抬高,入房间犹如入塌一般 春意时小院绿意昂然 卫生间借位隔壁空间

考虑朋友两人出游考虑来做的标准间 整体的设计就是把原始梁裸露处理,墙面素素的加灯具点缀 原先这个房间也是比较暗,增加后面小院,这间房间也可以采集后面院子的光与景

整个房间没有过多的装饰,木色地板,家居,与木色顶面相互映衬,颇具年代与岁月衬底的韵味,给予整个舒适的感觉

同样是双面窗户,完美解决了采光,通风问题 因为毕竟是一层,四面都有别的建筑遮挡,这样的采光已经是十分完美了。 引这间房间的名字初心,印出我做设计的初心

是整个民宿唯一一间没有遮挡户外风景的空间 所以正面大面积的窗户设计,侧面做了两个拱形装饰窗户 没有太多的装饰,裸露部分比较有年代感的结构梁、柱。更多的让你享受窗外的美景 看晚霞时拍照照常的光圈

整个房间,采用下沉式设计,卫生间干湿分离,也是整个民宿唯一的大床房 顶面同样采用屋顶设计吊顶 床头木饰面装饰背景,木色与白色墙壁的碰撞 床头两边精美的吊灯从屋顶垂下来

楼上放了一张1.2的床垫,足够的能满足一个小孩或者大人实用 顶面开天窗既能采光,晚上同时可以看到满天的星星 虽为亲子房同时也是间星景房

原始结构尽量不做过多的装饰及处理,它硬朗的线条及颜色本身就是一种天然的装饰 二层的搭建同时也用木材做结构,弃置钢结构主要是为了整体空间的效果 简简单单的墙面,搭配上面木制结合与木制地板 楼梯是让木工师傅现在打造喷涂的白色漆 LOFT的空间有非常大的灵活性,人们可以随心所欲地创造梦想中的生活,丝毫不会被已有的机构或构件所制约,从而使它蕴涵个性化的审美情趣.

同时也是一间亲子房间不同于流连房间设计 这间房间把原先的吊顶拆掉后层高比较高,所以在房间内做了一间小LFOT结构 因为房间采光也不是太好,在顶面开了一个天窗来满足采光

站在露台上看向东方的美景 斜斜的灰色瓦面屋顶,大大的室内窗户 室外的美景映入地面映入窗户上,室内室外地面犹如一体 早上坐在露台上欣赏缓慢升起的日出🌄美景如画,简直犹如生活在世外桃源一般。美哉!美哉
慢生活”是一种生活态度,是一种健康的心态。这是一种回归自然、轻松和谐的意境,在闲暇时间,越来越多的人选择旅行来消磨时间。面对许多充满商业气息的旅游景点,人们更喜欢去没有过度开发、生态保护更好的地方旅游,所以民宿受到了很多人的欢迎。 一个愉悦的空间、一种尊贵的生活、一方独享的天地,都在这里寻求最合适的表达。
