本案位于上海市嘉定区,建筑设计上最大的特色是每家都拥有超级大的空中露台和整面的落地玻璃窗,颇有点第五代住宅的意味。虽然原始结构不够整体,有些细碎,空间没有被最大化利用,且室内顶面的梁也较多,但通过改造后,这些都算不上bug。毕竟可以实现三面落地窗、开阔的大露台、双客厅的户型少之又少。遇到这样先天“资质出众”的房子,对设计师来说也是可遇不可求的幸事。 经过几次接触后,业主和设计师对房子的内部改造达成一致,并高度认可了我们的设计理念。确定了双客厅的设计思路,尽量打开原有结构中的非承重墙体,使室内空间得到大幅扩容。将竖向的楼梯改为横向,被截断的客餐厅实现了南北的贯通。
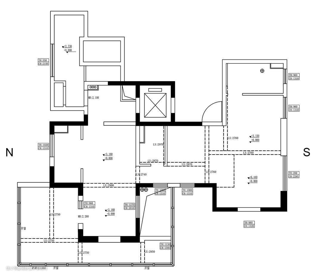
原始结构图|The original figure |F1

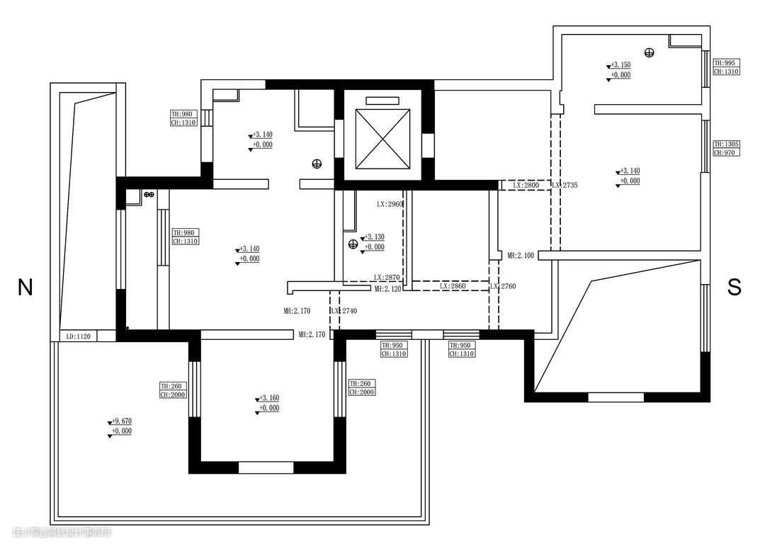
原始结构图|The original figure |F2

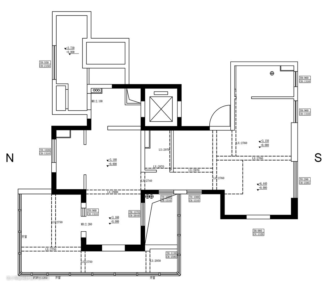
平面布置图|Floor plan |F1

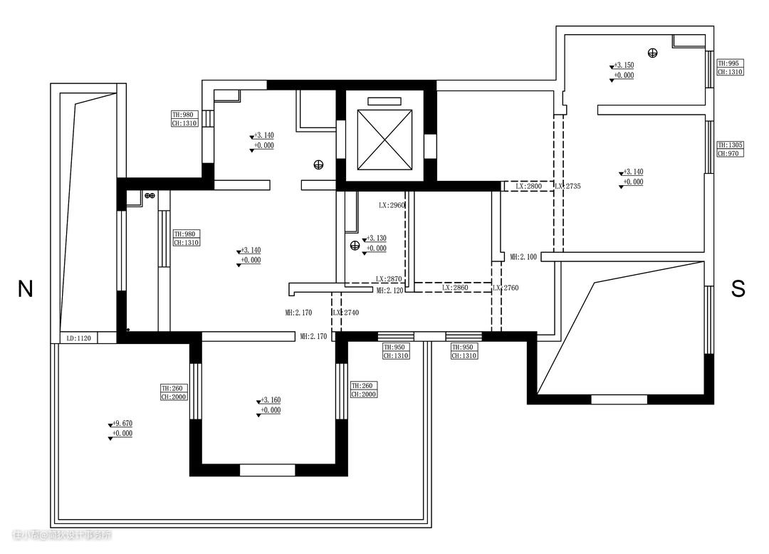
平面布置图|Floor plan |F2

改造思路 : ① 将竖向的楼梯走向改为横向,原本被截断的客餐厅实现南北贯通。 ② 拆除一层餐厅区非承重墙体,实现了三面落地窗的通透格局。 ③ 一层北边空间延伸后,拓展了中西厨的面积。 ④ 利用无法拆除的L型承重结构,设计成展示柜,形成以餐桌和展示柜为中心的自由环游动线。 ⑤ 将原有一层的挑空区全部浇平后,二层原本紧凑的主卧空间大幅增加,形成功能齐备大主卧套间;原本狭小的主卫更是占据了一间卧室的空间,升级成为可以容纳大浴缸、双台盆、三分离格局的主卫。









入户即是通透的大会客厅,最大的设计心机在于背景墙的处理:设计师将处于一个平面上的进户门、电视墙、客房门设计为完整统一的木饰面背景,顶面与立面之间大块面的完美衔接,消化了不同材质、形状造成的细碎错乱之感。原本竖梯截断了南边两个大空间,改为横梯后南北空间。豁然开朗的同时, 楼梯间的纵向空间也进一步放大,让整个楼梯间形成局部挑空,观赏性和互动感更为加强。




利用无法拆除的L型承重结构,设计成展示柜,形成以餐桌和展示柜为中心的自由环游动线。一面是纯净的蓝天,一面是百叶帘过滤出的曼妙光影长廊,体验与天空一窗之隔的空灵与轻盈。






休闲客厅完全不同于正式会客厅,纯白的主色调包容下,是摩登的色彩碰撞。这里是属于屋主的心灵港湾,是属于闺蜜之间的秘密花园,是杯觥交错的欢乐时光。






餐厅位于一层的中心位置,动线自由便捷。无论是去两个客厅、中西厨还是卫生间……都不用绕路。既是充满仪式感的正餐厅,又是动线汇聚的中心枢纽。酒柜和餐边柜形成组合柜,高级灰的柜门和黑色玻璃结合,尽显绅士般的格调和质感。




西厨位于一层的北边,同样是整面的落地窗,向外的视野非常开阔,向内可穿透餐厅直达最南面的会客厅。和餐厅一样,照明光源采用暗藏轨道的磁吸灯,可任意调整照射角度,体现出光源的多变性。



这可能是设计师从业以来设计的最为通透的中厨,别人家的中厨仅是一扇窗,这里却是奢侈的一整面的落地窗。烹饪同时鸟瞰城市的繁华,仰望云端的日月星辰,灶台上升华出最高级的烟火气。














主卧是最为贴近屋主内心的私密空间,玄关给予安全感,半透的木格栅让空间不被完全分隔。睡眠空间的大小适宜,正好符合屋主内心的安全尺度。正对床头预留了白墙,便于投影。角落是一面内嵌书架,后期会放置小书桌或者单椅+茶几,打造开放式阅读办公区。进入式衣帽间是标配,超大的主卫足足占据了一间卧室的空间,双台盆+浴缸的配置,加上独立马桶间和淋浴间,实现了星级酒店的三分离格局。



二层还设计了两间卧室,分别为客房和儿童房,两间卧室共享露台的无敌采光。儿童房为了安全考虑将落地窗封闭。客房则可以通过落地玻璃门直接去往露台。







楼梯设计是全屋的核心,同时也是连接上下两层空间的功能和颜值担当。大理石、木材、玻璃和金属材质被完美的结合,相得益彰。起始层设计为整块的大理石地台,第二级为面积较小的大理石叠层,从第三级开始为木质踏板。为了让楼梯视觉上更加轻盈通透,整体采用钢结构、镂空的踏板加玻璃扶手的设计,辅以氛围灯光的烘托,打造出晶莹剔透的动感效果。
Q&A Q: 装修过程花了多长时间? A: 8个月 Q: 说说是什么给了你灵感,打造出现在这个作品的? A: 三面的大落地窗,应该有更多的公共空间来享受独一无二的自然采光,设计师于是萌发了双客厅的想法,将房子本身具有的优势发挥到极致:一间设计为正式会客,一间设计为家人的起居厅。 Q: 你对这套作品最满意的地方在哪里,为什么? A: 客餐厨区跨度达20多米,原本被竖向楼梯截断,我们将竖向的楼梯改为横向,让整个南北贯通,楼梯完全打开成为一道亮丽的景观。 Q: 对平面布局做了哪些优化改动,为什么? A: 请见整屋案例的“改造思路”有详细说明,不再赘述。 Q: 在整个装修设计期间遇到最大的挑战是什么? A: 屋主对灯光设计有非常高的要求,有各种磁吸灯、筒灯、灯带、线条灯、柜体灯……并且都有单独的电路控制,强电箱几乎需要用一整面的柜子来收纳,可想而知给电路施工带了一些难度,但电工全力配合业主的灯光需求,顺利完成水电验收。 Q: 回头再看这套房子,设计当中有什么遗憾的地方吗? A: 屋主非常满意,没有遗憾 Q: 为了满足客户的个性化需求,你在设计过程中做了哪些事情? A: 屋主是一位细节控,对材料的颜色质感都有严苛的高要求。设计师在主材的确定过程中,完全一比一按效果图来打样,确定小样后再下单生产,以确保效果的落地。后期软装的选择也全程把关。
