本案是一套128㎡现代轻奢风格,居住者是三代同堂,年轻的90后夫妻、两个小男孩和一对老人。原始户型空间结构不太合理,家庭居住人口较多,小两口非常注重空间的合理利用,喜爱轻奢风格,对家的设计有自己独特的想法,对生活品质有着较高要求,因此在选择装企时更倾向于知名品牌。

经过对多家装企进行实地考察对比后,屋主最终选择欧派大家居与百创集团为其服务。作为家装家居领域知名度高、美誉度好的两家企业,欧派与百创强强联手,通力合作,竭尽全力为屋主提供省心、放心、安心的装修服务,共同为屋主打造了一个高颜值、高品质的温馨舒适之家。 当新家落地实现的那一刻,屋主抑制不住赞美之词,对欧派大家居与百创装饰集团服务团队在空间规划、用料把控、进度跟进、质量验收、问题处理等方面的突出表现给予高度评价,并连连称赞:“很多东西不是我们不懂,它就不存在,而是因为你们专业,我们才放心,我们才可以很信任地把家交给你们。”“后续如果有家人或朋友问到,我一定会推荐你们。”

▲东方沁园业主谭先生和谭太太赠与欧派和百创锦旗“匠心设计出精品,精工细作质量优” 【项目信息 】 房屋面积:128㎡ 户型结构:4室2厅1厨2卫 装修风格:现代轻奢 项目地址:东方沁园 装饰单位:欧派大家居&百创集团 【户型改造亮点】

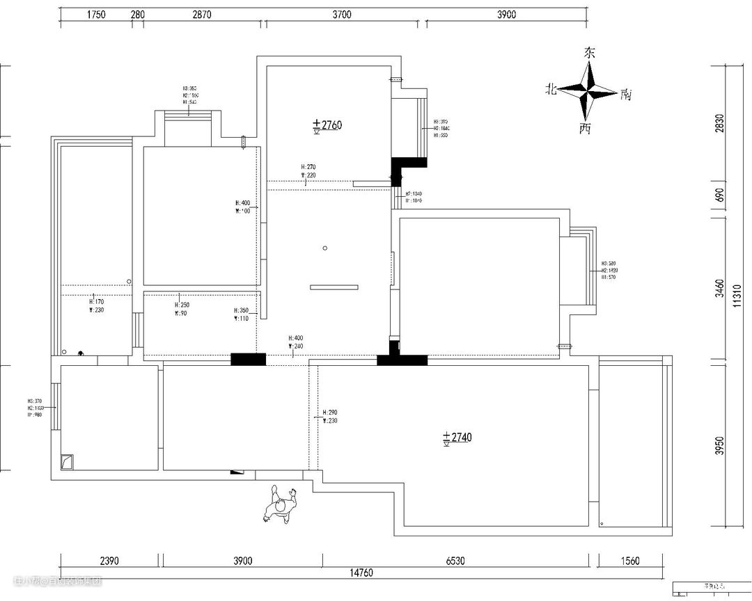
▲ 原始户型图

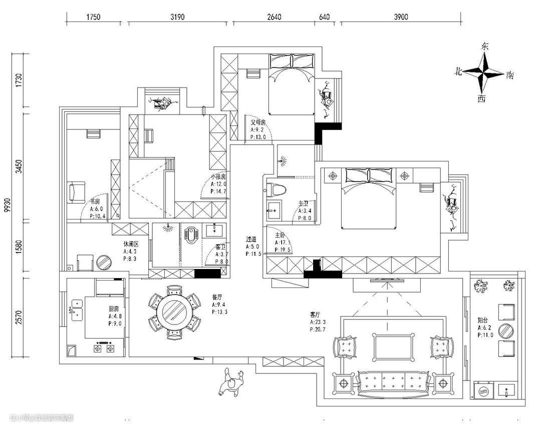
▲ 平面规划图 ①原始户型结构空间规划不怎么合理,将公共区域过道整体往客厅方向偏移,提高空间利用率的同时,增加客厅使用面积。 ②把原来从厨房进入书房的门,改到餐厅位置,动线规划更加合理,同时厨房的功能需求也得以满足。


▲一句“我去上班了”,一句“我回来了”,充满仪式感的玄关空间,每天都见证着我们为家的爱与拼搏。


▲定制玄关柜以封闭式和开放式组合布局,既可满足日常收纳,又兼具展示功能,柜体底部悬空设计,方便进出门更换家居鞋。

▲128㎡现代轻奢风住宅,客餐厅背景墙大量运用600mm*1200mm卡拉白墙砖,地面采用750mm*1500mm大板砖进行装饰,构造清爽、雅致的空间质感。软装家居采用灰色和橙色点缀,沉稳含蓄而不失活力。


▲电视背景墙利用哑面鱼肚白岩板搭配玫瑰金线条,与吊顶包边玫瑰金线条相呼应,赋予公共空间高级质感与视觉享受。

▲餐厅通过简单的布局设计,呈现了更为干净整洁、清爽自然的就餐环境。与客厅同款卡拉白墙砖为整个就餐环境营造了一种宽敞明亮感。


▲餐边柜暗藏门是整个空间设计的亮点,将原本位于厨房的书房门移至餐厅,优化了家居动线。同时房门与餐边柜保持同色系,关上时与餐边柜形成统一整体,毫无违和感。


▲将原来位于厨房的书房门堵上,厨房空间功能需求得到最大化满足,吊柜浅色+地柜深色的橱柜设计,凸显空间层次感的同时,更显明亮宽敞。


▲主卧墙面运用浅米咖色硅藻泥进行处理,赋予空间独特的肌理。软装家具上采用深灰中性色与玫瑰金线条,突出空间的雅致气质。


▲ 次卧没有过多的装饰,简洁而有力。白色到顶衣柜与白色墙面融为一体,大量的面积留白, 形成了视觉的扩容感。


▲儿童房兼具睡眠、学习与储物功能,淡蓝色墙面设计,与蓝色床具和床品相呼应,让空间散发出明净清爽、活泼可爱的童真趣味。


▲梦幻般的五彩灯具犹如天上的繁星,满足男孩们对星际时空的遐想。


▲书房运用黑白木色系的软硬装打造静谧雅致的阅读空间,大片阳光从大面积落地窗漫射而来,温馨而舒适,十分适合阅读。

▲从餐厅进入书房设计了一处储物室,定制到顶高柜可满满收纳各种家居物品,同时这里也是萌宠游玩的乐园。


▲阳台一角定制储物柜,将洗衣机、烘干机与洗衣台嵌入式收纳,让生活的琐碎得以控制。另一角设计为清洗区,方便日常卫生打扫。


▲干湿分离的淋浴间设计,非常实用。洗漱台、马桶、淋浴间整齐排列设计,使用黑白灰三色系,整洁清爽。
