本案业主是一名医药销售,平时工作时间相对会比较弹性,所以从选房到装修这个家,还是花了蛮多的心思的。他和妻子都比较钟爱简单的事物,谈装修方案的时候,就和设计师反复强调,尽量要避开那些繁琐或者浮夸的装饰风格,所以现代简约风成了双方一致达成的装修风格。 最终呈现的这个家,干净,有质感,也很温暖,就像业主说的,家对于他们而言,就是内心世界的自我解读,与他们一同成长,包容着他们的一切,赋予他们更多自信和爱,去探索更多世界的美好。

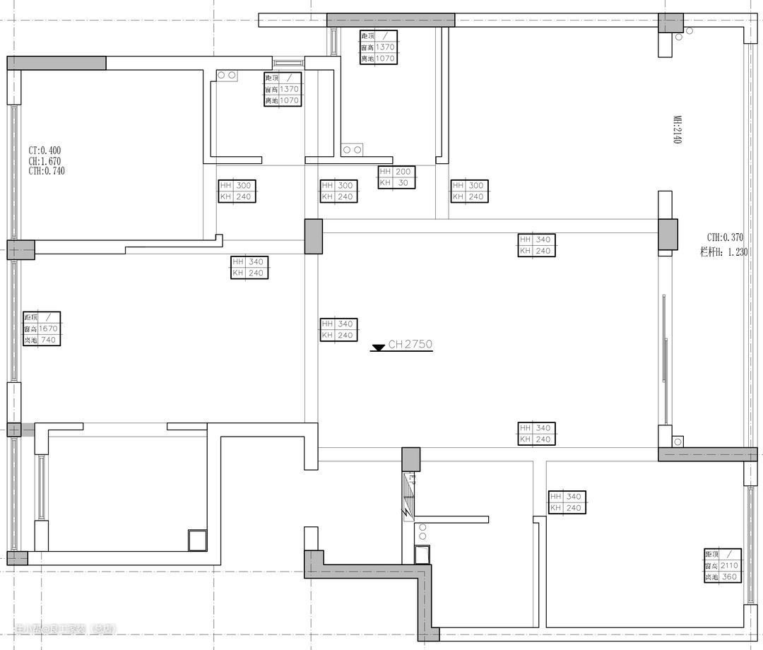
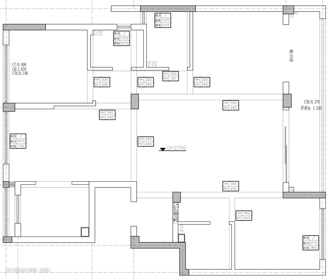
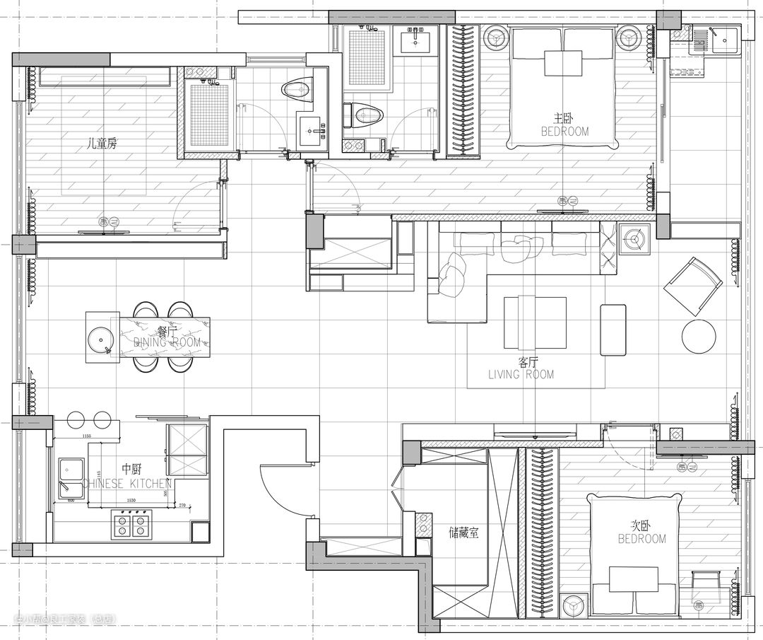
业主需求: 1. 业主想要客厅空间尽量大些,采光更通透,双阳台能被充分利用起来; 2. 女业主希望拥有属于自己的独立衣帽间; 3. 业主希望能隔出一个杂物间,让日常不常用的物件能有序归位; 4. 业主不喜欢传统的电视背景墙造型,喜欢独具个性又实用的电视墙面结构。

改造优化: 1. 阳台打通纳入客厅,让公共区域更加宽广,还可顺利引入自然光。因为本身是从客厅延到主卧的双阳台,一半纳入客厅空间后,另一半则留作生活功能阳台使用,避免了只能从主卧进出阳台洗晒的尴尬; 2. 客餐厅中间做一组收纳柜体,背面刚好是卧室区域,能巧妙规划出一个独立衣帽间; 3. 把入户正对的客卫舍弃,改造成杂物间,让日常杂物有处可存,保持家的整洁有序; 4. 摈弃了传统的电视柜和背景墙造型,采用了整面木饰面柜体墙,电视机嵌入其中,将电视墙旁边的次卧房门也设计成隐形门,整体空间感得到最大化延伸,还能留出更多过道空间。

入户右手边沿着墙体做一面白色通顶鞋柜墙,上下是封闭式,中间留空做隔层,方便放置出入随手拿取的物品。灯带的加入,让柜体多了一些光影层次,也让家从入户就拥有温馨感。

进门正对面原本是一个客卫,由于业主一直想要一个独立的杂物间,就索性把客卫舍弃了,改造成了杂物间,让日常杂物有处可存,保持家的整洁有序。


玄关柜设于客餐厅中间,有开有合的柜体设计,满足多类收纳需求。柜体的背面刚好是卧室区域,能巧妙规划出一个独立衣帽间。



客厅以大面积的白色为主,局部加入灰色与黑色,让空间感由浅及深,丰富层次感。巧妙加入色彩鲜亮的懒人沙发和设计感十足的蓝色造型椅,极大的增强了客厅的灵动性。


业主不喜欢电视柜,设计师就摈弃了传统的电视柜和背景墙造型,采用了整面木饰面柜体墙,电视机嵌入其中,视线更简洁,整体空间感也得到最大化延伸,还能留出更多过道空间。


电视背景墙的整面柜子可以说承担了这个家的收纳重担,还暗藏了一扇通往次卧的隐形门,保留了电视背景墙的完整性


阳台打通纳入客厅,让公共区域更加宽广,顺利引入自然光,整个室内充满了阳光的气息。在这里看书、喝茶、下棋、放空等,随时都可以享受到闲暇时光的舒适与放松感。

双阳台一直从客厅延到主卧,一半纳入客厅空间后,另一半则留作生活功能阳台使用,避免了只能从主卧进出阳台洗晒的尴尬。

餐桌与岛台是采用一体成型定制的,兼顾美观与便利。

全屋定制的入墙式收纳柜,依然遵循全屋的主题基调,整体有藏有露的设计,不仅实用,也因为适合展示漂亮器物而具备了观赏性。

百叶窗为餐厅区域引入了充足的阳光,马醉木的影子疏疏落落洒在桌面上,自然气韵自由穿梭,释放美感与层次。


厨房空间采用半开放形式,玻璃大移门,封闭与半开放模式可以随时切换,即使关上移门,也不影响整屋的通透性,烹饪时也能将有效阻隔油烟。

利落的线条构成合理的动线设计,拿、洗、切、炒一气呵成。柜体采用木色,与灰白色瓷砖搭配温润有型,嵌入冰箱和蒸烤箱,充分利用立面空间,赋予生活更多便利。

设计师巧妙将操作台面延伸出来,设计成一个小型吧台,放上一组撞色吧椅,丰富了餐厨空间的功能性,也为生活注入更多浪漫和小资的情趣感。


主卧延续客餐厅的简约基调,硬装以灰色系为主,简单、舒适,不加过多装饰。软装选了浅咖色系,两种高级的中性色调进行深浅色组合,营造出一种简约、耐看的空间格调,带来了更多静谧安然的气韵。


次卧采用了更年轻活泼的豆绿色,空间一下子变得生机盎然,白色的整面墙衣柜,满足了四季衣物的收纳需求。


另一间卧室被设计成拥有更多可能的多功能间,家中有客人时可以翻下折叠床招待客人,平时可以作为主人的书房,或者儿童活动房来使用。


卫生间主打黑白灰,利落有型,时尚有味,不加过多的装饰让收纳整理更加方便,方寸间尽显现代都市摩登气韵。
