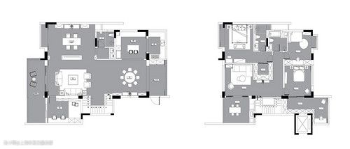
本案例为跃层别墅,原始户型为四居室,考虑到家人实际需求,老人房设置一楼,方便老人起居。屋主一家人喜欢新中式风格,整体沟通也非常顺畅,结合业主需求,打造素雅古典的新中式空间。 平面布局图↓↓↓

跃层户型增加了设计的可能性,在确定新中式风格的基调之上,我们对于部分功能区域做了改动: 客厅做挑高处理,更显大气格局;厨房设计U型操作台,动线更加合理,空间利用率更高;原始次卧该休闲室,方便二楼休闲娱乐使用。

推门即是明亮宽敞的入户门厅,大理石墙面加以金属装饰,圆形山水画装饰是新中式风格中常见的装饰方式,水墨画与古香古色的玄关柜相搭配,在灯带的映衬下更显大气典雅。玄关的布局简单却韵味十足,同时也点亮了“新中式”的空间主题。

客厅是传统的围合式布局,中式古典造型方桌摆放正中,大方雅致。整体以白色和灰蓝色为软装主调,配以金属元素的装饰,雅致干净、细满满。红木桌椅是传统的造型,细腻的色彩和厚重的造型,更能凸显空间的雅致和韵味。

客厅取消电视机,华丽的大理石背景贯通一层挑空,营造最佳的视觉停留点。白色地面,黄色花纹营造大气自然的感觉,似画非画,融景入情。“穿花蛱蝶深深见”蝴蝶造型的吊灯,在光影的映射下,更显梦幻。

沙发背景墙的设计同样大气,线性山水画的设计,让整个空间在典雅端庄之上又多加了几分时尚气息,原本厚重静谧的空间随线条变化也逐渐灵动起来。精美的中式台灯、朴素的布衣造型,雅致的桌角细节处理... ... 不同材质的组合,在大气典雅的氛围下,铺陈出一种别致的雅韵。


圆形的餐桌和吊顶相呼应,圆润的造型展现中式的包容和气质。餐边柜设计融入了中式与现代风格元素,实木橱柜配以金属线条镶嵌,素雅却不失奢华。吊顶圆形灯带配合中式吊灯设计,让空间层次更饱满。

圆桌的设计更符合中式风格,一家人围坐一起,和乐融融、温馨舒适。餐厅和玄关以地面瓷砖装饰线划分区域,整体材质的协调统一和细节的呼应,营造更具整体性的视觉体验。

主卧背景墙同样是一幅山水画,两边加入木饰板辅以对称造型,营造卧温情典雅的空间感受。方正的床头柜呼应双人床的造型,中式台灯也是不可忽略的空间点缀。灰蓝色软装的加入,让空间平添舒适安逸的感觉。

衣帽间造型简约,实木材质、金属勾线和简约把手,将中式风格尽显无遗,对称设计更符合和谐的美感,大而不空、厚而不重,凸显空间格调而又不显压抑。


卫生间采用干湿分离的设计,以独具特色的格调呈现别致雅韵的视觉体验,深受男主人喜爱。黑色金色的搭配凸显庄重典雅,给人厚重的视觉感受。悬空浴室柜的设计大气且方便清理,浴室镜添加灯带补充照明光线。淋浴房的设计更是出彩,黑色金属边框加上圆润的弧面处理,让淋浴房也变得富丽奢华。