方案解析

本案业主是一对70后夫妻,从事电影投资方面的工作,女业主是中国人,男业主是法国人,女儿工作后另有居所,这个房子只是夫妻二人居住。 被问到设计期待,业主说了三个关键词:精致、储物、延伸感。户型“小”却不“挤”,东西“多”但不“乱”,空间“少”也“高品质”。设计师重细节、舒适与层次,兼顾到业主生活场景的同时,针对设计需求进行打造。
客厅

整面墙的玻璃柜用来放业主的书籍,旁边放上一块懒人沙发,业主可以瘫在沙发上进行阅读,更显随性,设计师也将空间设计,融进业主的艺术人生。 另一侧厅柜用来收纳业主的衣服和包包,中间的玻璃柜方便女业主将心爱的包包进行展示,两边为隐形式收纳,外观上更显干净、整洁。
餐厅

业主喜欢喝下午茶,餐桌的位置就选在了窗边,透过落地窗可以看到外面的整个景色,业主在恬然与惬意中享受静好时光。
厨房

哑光深灰蓝色的橱柜和黑色的冰箱色系相近,高级感的配色也让空间更具品质感。
主卧

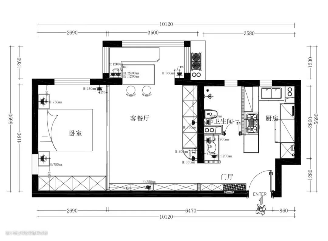
将卧室与客厅之间的墙体拆除,做成玻璃推拉门,拉上后维护了卧室的私密性,拉开时两个空间既能互动,又增强了延伸感,让几十平的小空间更显通透。

整个空间采用无主灯设计,为了避免压抑,就没有装筒灯与射灯,而是采用灯槽的方式。业主喜欢台灯的氛围感,就在卧室与客厅放置了很多台灯,让灯光的层次更为丰富。
卫生间

门厅对面是卫生间,业主进门就可以直接洗手消毒,自带天然石纹的岩板营造出视觉冲击感。

干湿分区后卫生间更易清洁,隐藏式下水节省了洗手池下方的空间,可以放置物筐增加收纳。
