业主是老客户,对上次的loft装修很满意,收到的租金是同级的1.5倍,而且住了一年多都没有任何问题,因此这次她自己的别墅装修仍然放心交给我们。经过前后三个月左右的方案沟通打磨,从欧式,到轻奢,风格不断融合创新,最终收楼前定稿。收楼开工后仅4个月就全部完成了硬装部分的装修,加上我们帮她搭配的软装,在朋友圈收获了满满的赞。

客餐厅空间打通,让整个可视空间最大化,从而达到越级的视觉享受。

二楼将原有的三房打通改为两个房间,都拥有套卫,生活更方便。而且同时为南向,享受阳光每一刻。主卧还利用原来阳台的一角做了一个迷你吧台,供二人小憩,独享私密空间。主卫配置了双洗漱台和浴缸,让生活品质升级。

顶楼原本是露台,充分利用了大空间的优势,增加了影视间,酒吧台,温泉房,并留了一方露天阳台。亲友来访时,可观影,可赏月,可泡温泉,可推杯换盏,人生惬意如斯!

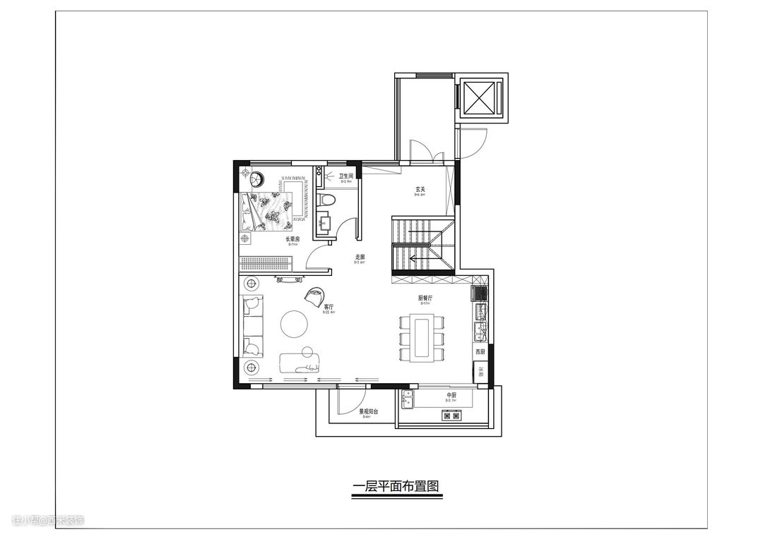
客厅摒弃了传统的电视墙,用壁炉取而代之,成为客厅的一大亮点。利用阳台的一部分做封闭式中厨,加上开放式西厨,同时满足爱做中餐的父母和享受西餐的女主人。一楼的房间供长辈使用,方便操持家务,同时靠近公卫,尽量让生活更舒适。客厅全部采用护墙板打造,欧式风格,加上壁炉处于核心C位。而沙发的选配并没有按照传统的欧式,用圆形茶几,圆形沙发,圆形树灯互相呼应,让空间多了几分灵动。




在整体风格统一的前提下,餐厅增加了较多的玫瑰金元素,中厨玻璃门,餐桌,餐边柜都用了大量的金色元素,给用餐区域增添了不少的温馨气氛,体现了女主人的雍容华贵,足不出户,享受大餐。

利用阳台单独隔出来中厨,不但光线充足,还能一边备餐一边观景,让做饭成为一种享受。

衣帽间透明玻璃门,实用又美观。

儿童房同样设置了套卫,让他从小养成独立生活的习惯。

超大浴缸,工作一天,回家即可享受温泉般待遇。

天台并未全部封闭,而是留出了一方露天阳台,不管是夏天乘凉还是夜观星空,都是跟大自然最亲密的接触。 设计师如何帮助业主赋予家更多生活的意义,从内心去理解,从需求去解读。对于很多家庭来说,三点一线的生活,家的意义就是忙碌工作之后最憧憬的那个角落。即便风雨兼程,日暮不赏,再疲累的一天,当回到自己的偏安一隅之中,也会放松身心,洗净浮尘,与午夜星辰,与家人久伴。
