方案解析
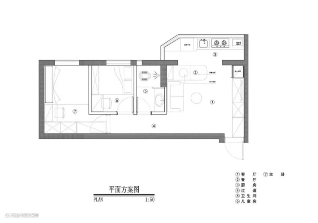
本案为40平高难度小户型改造,两室一厅,超长阳台,坐拥绝美视野!有了家就有了归属,就拥有了自己的第一片小天地!整个空间希望满足一家三口的功能性需求,空间简约,干净,温馨,增加储物需求。总计花费:11万

客厅
因为房子面积不大我们全房的颜色以三种:白色、木色、浅黄色为主要色调。让空间统一,干净。





主卧
主卧按照整体尺寸定制了榻榻米,合理利用空间尺寸,保证收纳空间。床边书桌即做梳妆台也可以作为床头柜使用。



卫生间
由于之前户型洗手间很小,洗手台放不下。所以我们拆了隔墙,增加洗手间面积,有了带储物功能和台面的洗手台。色调大面积采用白色,小部分地面和墙面根据原有布局铺设花砖,即保证了空间干净整洁又有亮点。


