🏠这是一套产权面积185平,实得248平到「老、破、大」: 房屋修建时代久远,且小区没有物业公司,为了得到具有参考价值的【建筑结构图】,业主多次往返「成都市档案局」终于找到了原始图纸--这也为我们后来的设计工作带了极大的帮助❗️ 「下沉式客厅」是房子的亮点,同时也是最让业主头痛的地方,还好我们设计的一组【卡座沙发】完美地将客厅空间全部利用到位。 🎎屋主是一对90后新婚夫妇,从山东到成都来定居: 成都的冬天湿冷,全屋地暖是他们的诉求;整体定调上🚹先生喜欢「日式禅意的传统氛围」🚺太太喜欢「极简清爽的现代居所」,经过多次商议,最终确定下能【兼容】夫妇两人诉求的调性:1F空间以太太喜好为主,打造极简、现代、明亮的会客区及餐厅;2F及室外露台则是为先生打造的暗调书房、传统日式「听雨廊」;另外在选材上利用胡桃木墙板和灰色乳胶漆贯穿1、2楼,确保视觉连贯性,楼梯间的灰色墙顶面是重要的衔接点。 💰这次,我们又遇见了【预算不充裕】的大难题,买房后压力大,投入装修的资金紧张: 省钱--因为是老房改造,多次现场勘测后经过设计团队评估,最大限度保留能继续使用的原始基层,避免拆了又建的浪费❗️

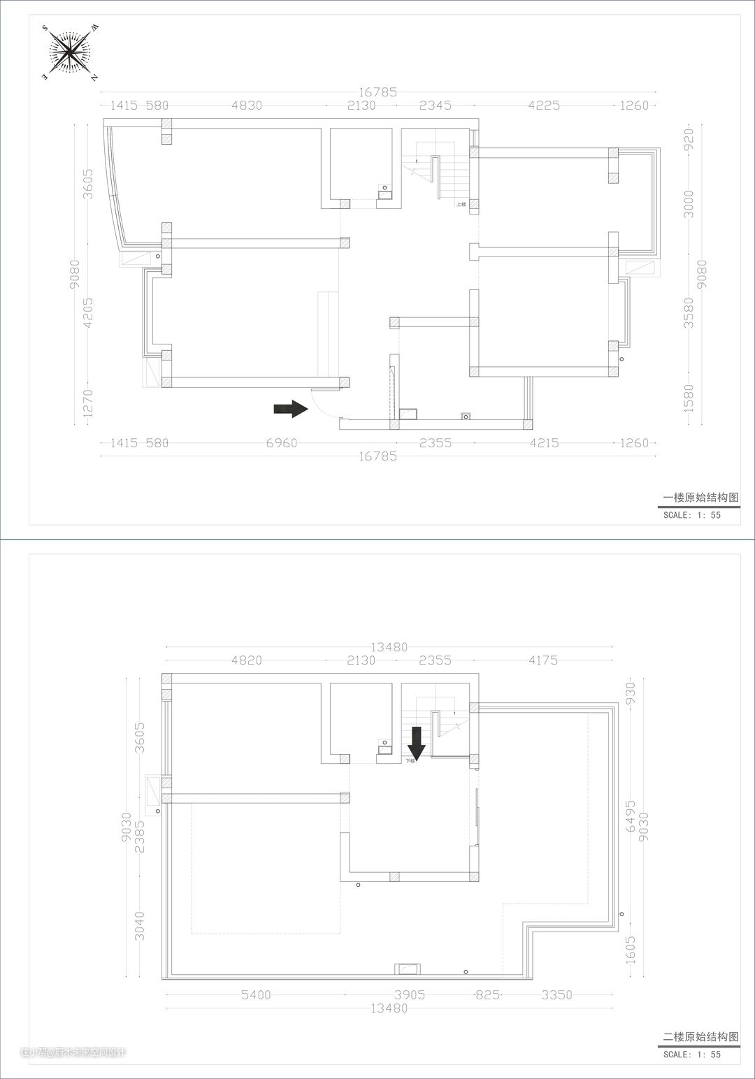
⬆️原始户型图: 建于02年的单位自建房,承重结构不清晰; 原本计划做一些「结构改造+动线重组」,为了确认承重结构,我们进行了一系列实验,最终得到的结论是【墙体皆不可动】❗️非常遗憾。 ⚠️痛点: 1、入户后是走廊式玄关,这里的宽度仅1.22m,设计中需要解决鞋柜的摆放难题。 2、房子本身拥有奢阔的开间,但原餐厅位于1F中心区域,日常生活不便利; 3、厨房偏小,但墙体不可拆改; 4、客厅是下沉式,仅有一个采光面是一个不大的凸窗,需要弱化这个不规则的凸起; 5、通过楼梯间上到2F,有一个开放的空间,它也是通向主卧室的过道,需要合理利用。 6、248平的总面积里,原建筑没有设计生活阳台及设备间。

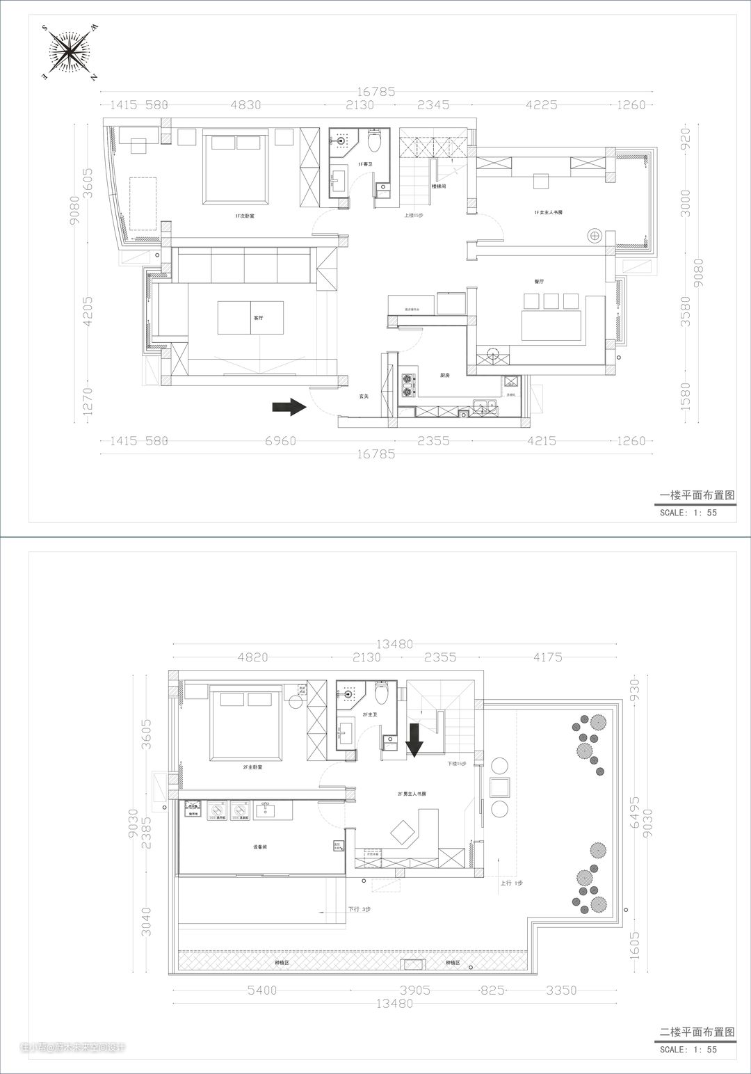
⬆️改造后平面图: 我们在不改动房屋主体结构的前提下对空间细部进行修饰。 1、解决玄关鞋柜摆放的问题--半嵌鞋柜(嵌入厚度14cm)于入户门正对的墙体内,由于墙脚有一排地梁,鞋柜最终是悬空安装的。 2、为餐厅重新定一个位置,1F的三个房间中离厨房最近的做餐厅使用,这个房间与厨房一墙之隔的优势让我们有机会在这里设计上下水点位,餐厅顺势拥有了茶水台。 3、厨房结构不动,微调上下水及电源,设计厨下洗碗机,由于天然气管道及燃气表也在厨房里(燃气公司不允许改动),暖气锅炉也就定在了这里;增加一排橱柜在厨房外侧与餐厅相连接的墙边,补充操作台,冰箱也在这里。 4、下沉式客厅中,设计一组L型转角「卡座沙发」沿客厅墙边展开,满足在家自在躺、坐的需求,同时将凸窗位置填补起来,客厅空间看起来更加饱满整洁。 5、2F开放空间用作先生的书房,作为主卧室与室外露台的衔接,「下雨天在书房看屋外房檐边嘀嘀嗒嗒的雨水落下」是男业主多次给我们描述的理想生活场景。 6、在2F露台上搭建一个设备间,洗衣机、烘干机、饮水机、晾衣杆全部归置在这里。


有纪念意义的图纸 业主多次往返「成都市档案局」最终找到的原始图纸--这也为我们后来的设计工作带了极大的帮助❗️
Befor & After : 客厅凸窗与卡座沙发改造对比;

Befor & After : 下沉区域与过渡空间改造对比;

Befor & After : 餐厅改造前后对比;

Befor & After : 主卧室改造对比。

Befor & After : 客厅一角改造对比;

Befor & After : 玄关改造对比。

老房子多数是「预制楼板」,水电改造时切不可在预制板上开槽,我们采用沿墙脚走管的方式来解决这个问题,吊顶时用弧型边顶减轻压抑感。

玄关以胡桃木墙板围合,一直延伸至西厨墙面,弱化墙面被厨房门洞打断后的破碎感。

解决鞋柜摆放的问题--半嵌鞋柜(嵌入厚度14cm)于入户门正对的墙体内,由于墙脚有一排地梁,鞋柜最终是悬空安装的。 强电箱隐藏于墙板内,用长条形扁平合叶实现正常开合。


入户空间尺度紧张,业主夫妇习惯使用穿鞋凳,因此利用折叠五金件设计了一个穿鞋凳,收起来后不隐形入户动线。

化零为整: 下沉式客厅本身就具有仪式感,设计一组L型转角「卡座沙发」沿客厅墙边展开,满足在家自在躺、坐的需求,同时将凸窗位置填补起来,客厅空间看起来更加饱满整洁。 空间会呼吸: 选材上,人字实木地板有与定制木作「胡桃木色」一致的颜色,想成色块与色块的呼应;同时像这样的大面积深色块也能让地面在视觉上沉下去,与【悬空】的电视柜、卡座沙发搭配在一起更具层次感。


悬空抽屉电视柜,中段柜面设计有穿线器,方便日常使用避免杂乱。 双茶几配置(1m*1m茶几两个),注重空间饱满性,拒绝居家临时感。

定制沙发坐垫 面料:透气易打理的科技布; 芯材:支撑度较强的50D海绵,厚度20cm。

无主灯: 客厅、玄关、过渡空间顶面均有带反光灯槽的弧型边顶,目的是利用光的漫反射照亮内部空间(见光不见灯)。

下沉区与过渡空间高差46cm,共三步台阶。 选用黑色石材饰面,它是深灰色电视柜、卡座、地砖之间的过渡色。

改造对比

隐形储物功能柜: 卡座沙发的扶手也是可储物的柜子,利用上翻门实现开合。

隐形储物功能柜: 客厅凸窗两侧墙面,左侧设计一个大容量的上下分色储物柜,柜子下段深灰色柜门与电视柜和卡座沙发相连,上段白色柜门则与墙面白色乳胶漆、窗口白色蜂巢帘相连,实现隐形。

氛围感打造: 客厅光源除顶面弧型反光灯槽外,我们还在凸窗的右侧墙面设计了一盏装饰意义较强的「云石壁灯」,打开时微弱的灯光透过云石灯面照射出来十分温馨。

客厅照明设计: 主要光源--顶面弧型灯带,通过漫反射为客厅提供整体照明; 重点照明--顶面明装三头筒灯,两个筒灯分别为茶几提供重点照明; 氛围光源--地面钜形灯带,亮度较顶面更弱,一方面为空间提供氛围光,另一方面为大体量的定制家具增加「空气感」。

紧邻厨房的卧室改造而成的餐厅: 沿用L型卡座元素,沿餐厅墙边展开,卡座下可储物,坐面则是定制的5cm厚度坐垫。 业主希望在餐厅也能有一个方便的用水点位,我们利用改造后的餐厅与厨房一墙之隔的优势,在墙面开孔从厨房引来冷热水管,再制作一个墙排下水管道安装上了水槽和龙头。


改造对比

厨房布局保持原状,在选材上满足太太喜欢的暖灰色调。

楼梯选材是与其它木作一致的胡桃木是实木料,搭配简洁的玻璃扶手,减轻楼梯间的视觉拥堵感。 楼梯底部异形空间设计一组楼梯柜,预留电源,用来存放吸尘器、扫地机器人、猫砂盆等物品。


点缀: 一盏造型简洁的艺术吊灯,同样是利用光的反射远离,见光不见灯,作为楼梯间主照明。

一圈胡桃木腰线作为2F楼板侧立面与看楼梯间墙面的收口衔接; 深灰色乳胶漆从腰线以上一直延伸至顶面,再自然过渡到开放式书房的墙顶面。

男主人的心头好: 开放书房大胆使用深灰色乳胶漆满涂墙顶面,定制木作沿用胡桃木元素; 转角大书桌符合日常居家办公的功能需求, 柜内预留感应灯带,避免因大面积木作而产生迎面而来的压抑感。

为喜欢喝冷饮的男主人在书房角落,书柜底部预留的冷饮柜空间。(事先选好冷饮柜,按要求预留电源及散热尺寸)



在预制楼板的限制下,主卧室同样是无主灯设计,弧型返光灯带与床头暗藏灯带一起照亮整个空间; 胡桃木色衣柜、墙板、顶面线条、人字木地板色相及饱和度趋同,预算好控制质感也得到了保障。

改造对比

床头设计一盏万向阅读灯,可随意调节。

2F书房外就是私家露台: 量房时就发现原墙、地面都有漏水迹象,因此在整个屋面、墙面全部做了一层防水。

现场防水图



日式传统檐廊: 用防腐木将屋檐、墙面、地台包裹起来,调配与室内胡桃木同色的水性漆涂刷。 矮茶桌、蒲团、竹制壁灯、地台,处处都满足到了业主先生的喜好。

隐私: 与隔壁邻居相邻的栏杆边,我们选用了一种四季常绿的竹子作为屏障(拍摄时叶片还未完全长齐)。

建筑结构不可动,卫生间上下水也不可改动,因此智能沿用原始点位; 在配色选材上选择两款深浅不同的咖色瓷砖作为底色,最大限度与外部空间关联起来。

