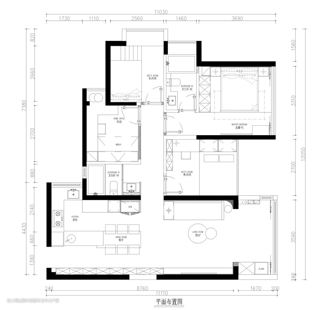
1.户型说明: ①本案户型是一个三房两厅两卫的布局,业主说客厅电视要有观影感,卫生间空间较小,不方便使用。 ②客厅整体空间较小,不适合太过冗杂的设计,布局结合了现代与轻奢两种不同风格,这样的设计既不花哨、也不像现代风格那样简单,整体看起来轻奢且温柔,处处都给人一种刚刚好的感觉! 2.设计优化: ①客厅加设投影仪,电视和幕布可以切换,客厅不设茶几、置物架等,简约为主。 ②把主卧排污区,纳入主卧卫生间。

客餐厅和厨房处于同一动线,利用整体连接呼应,让整个空间更加通透大气。

客厅以黑白灰三色为基调,搭配高明度的颜色作为点缀色,不设茶几,不仅在空间上显得更加通透,而且增添几分艺术美学,沉静优雅,全屋无主灯,分散光源能让家热气升腾。现代轻奢讲究简中有奢的设计,设计师大胆运用材质肌理,深灰色与浅灰色调的互相碰撞。

简约自然且不失高级感的设计,通过空间的层次演绎,把空间打造成相连通空间,使得整体更为通透开阔,大落地窗的应用也让大量自然光透入。

超大的电视背景墙,明暗深浅,大面积铺设,留给业主留下无限的想象。浅灰色仿石材式地砖,营造明亮通透的家居场景。

客厅隐藏式灯带的使用,即便客厅空间较小,巧妙且合理的布局后,不仅会让空间感到拥挤,还有尽显出灰色色调的高级感。

餐厅的方形纵深延展至厨房,不仅细化厨房与餐厅的使用功能,也使两个空间更加互溶互通。嵌入式冰箱、嵌入式烤箱、动线合一的收纳设计等等,让其生活便捷舒适。随处可见的磨砂工艺与大理石的搭配呈现更饱满的通透质感,简约的餐桌设计以在实用性为基础上,也为增添空间温馨感。

无论对于艺术家还是普通人而言,能从一餐美食、一段音乐或一个舒适空间里感受到放松、慰藉和治愈。生活便是鲜活的,有趣的。

隐藏式灯带的设计,在延续了客厅的高级感的同时,剔透的光源也提升空间整体灵动性,生活的雅奢惬意感扑面而来。

厨房与餐厅之间互相融合,好像是一个空间,又互有自己的语言,厨房不设阻隔的门,整体以半开放的形式呈现,同时采用了U型的设计方式,上下打造两列储物柜,增加收纳空间。整个空间简洁明朗,整洁舒适。简易动线保障业主在此能够便利地进行各种厨余工作,嵌入式智能家具为空间整洁性提供作用。

厨房延续客厅的设计,以黑白灰色为基调,沉稳有秩序,操作区域有效划分,制造更多收纳空间,不再杂乱无章,肆意享受烹饪意趣。

走入卧室,柔软的大床坐落,真正的放松和淡淡的倦意来袭,棉花轻柔地按摩着身体,连带着这一天最后一丝的疲惫也都卸去。主卧的设计延续空间的整体基调,落地窗、木质地板与线条简洁的隐藏式灯带相得益彰,构成了一幅纯粹而富有质感的空间环境。

为了节省空间,拥有更多的收纳功能,整体以简单设计为一体的多功能榻榻米房间。

榻榻米的设计师一个非常经典的“简约风”,床的底部还新增了一个专门收纳的空间,床尾设计升降功能,平时也可以在上面学习,也可以休息喝喝茶。

设计师根据小女孩的爱好,把整体的空间色彩变更为粉色系,奶里奶气的粉色卧室太少女心了吧,而且童趣感满满。甜美又不失俏皮,每个女孩子都无法拒绝这样的卧室吧。

房间内还设计了一个小飘窗,用于小女孩坐在这里看书,休息。上下铺解决了小户型的空间的问题,占用一个床位的面积,在搭配一个有趣的梯柜,既能休息也增加了很多收纳空间。

卫生间的空间布局以及风格是和客厅的色系是一样的,黑白灰设计。做了一个银色的定制浴室柜,台面是白色岩板。干区的墙面和地砖是一样的,是去是亚光色的灰色砖,美缝是灰烟灰色的那种,耐脏又耐看,越用越香。

洗澡的花洒选择恒温款,温度冷热适中,洗得舒服全无压力。

