
业主是一对夫妻带一个小孩子,房子68平,共花费13万。房间布局比较方正,业主希望以可爱暖色调的奶油风为主。我们根据业主要求,整体以干净清爽的硬装、材质细腻的软装为主,这所房子在空间布局和各功能区域划分上保持基本不变,设计搭配了硬装和软装,有一个完美的奶油风效果。提起奶油,我们首先想到的就是绵密香甜的味觉,而奶油风装修也带着几分这种氛围感;它既有现代简约的空间感,又有法式浪漫的空灵感,所以备受年轻人的喜欢。








软装搭配
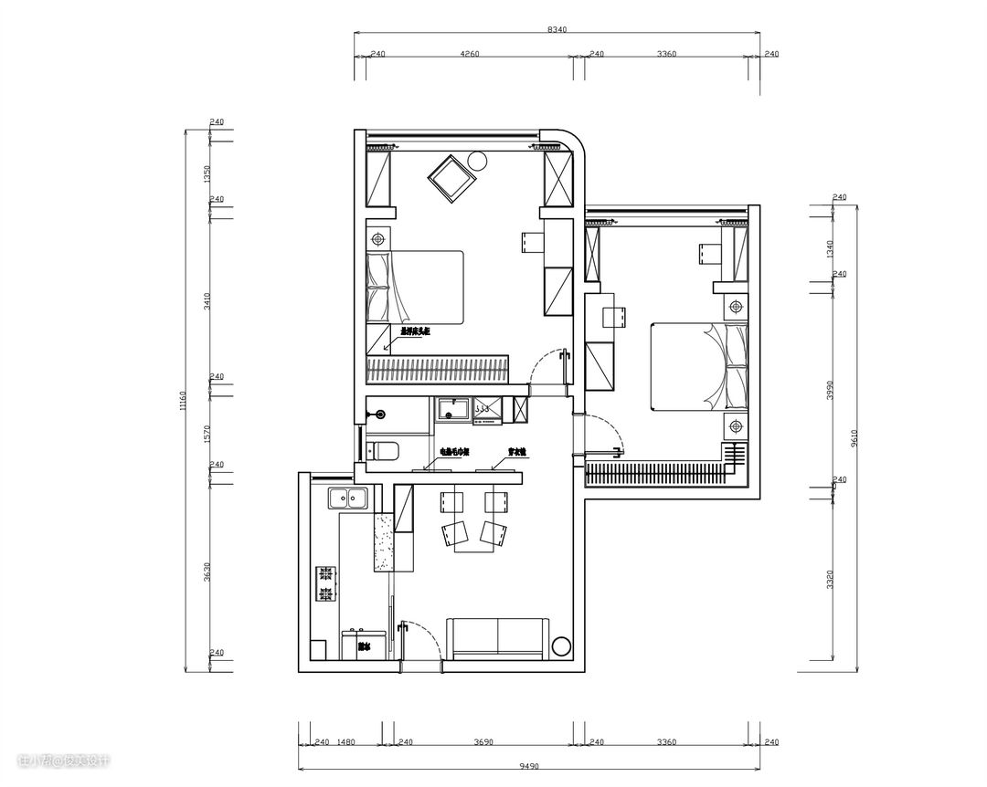
餐厅与客厅连在一起,采用开放的设计,餐桌为白色带花泽的大理石方桌,椅子是软座木质的,显得十分质感。餐桌上面摆放着绿植,圆形的桌子可以满足五六个人就餐,餐厅另一面是一个壁橱,用来放厨房的用品与日常的物件,设计的非常漂亮。客厅与餐厅的墙面都是素雅的米白色,餐桌对面是一个沙发,沙发同样采用木质,放置了柔软的坐垫,整体视觉感是偏柔美的,丰盈体型的家具给人一种奶呼呼的视觉感受。客厅的很多地方都放置了巧妙的小物件,满足了收纳的需要,还可以看出业主的审美,给空间增添了情趣。沙发两边是简约时尚的可推式小桌子,既不占地方又可以放置基本的物件。客厅的灯光为一圈射灯与一个圆圆的顶灯,显得空间明亮舒适。房子的大门为灰色木纹风格,与整体色调很配,软乎乎的奶油风。客厅与其他房间的门采用拱形的开放设计。



设计亮点
厨房以整洁简约的白色为主,采用L型的设计,桌面是带有花纹的白色的大理石,橱柜也是非常简约的白色的,整体显得干净又高级。同时嵌入煤气灶、油烟机、微波炉等必备厨房电器,与整体很好的融合在一起,充分满足做饭需求。双开门的灰色大冰箱放在厨房另的一侧,正好利用了空间,美观实用。采用大大的玻璃门与餐厅分割开,尽显简约大方。







设计亮点
儿童房是很舒适的奶油风,空间很大,整体以米色与棕色为主,棕色实木的柜子在灯光的照射下很有温馨感,也将整个卧室的品质感烘托起来。床体与柜子的颜色一致,软软的床头舒服又高级,床的对面是大大的斗柜,摆放着花瓶与绿植,让人感觉温暖而又贴心。一面墙的到顶大衣柜可以储存平时的衣物,十分方便,简约又实用。儿童房还有一个大阳台,一面装了米白色的柜子与升降桌,另一面装了到顶的储物柜,装着书籍与玩具饰品,储物空间很好的满足,在闲暇时也可以坐着晒太阳,看看窗外的风景。两个原木的小椅子给人一种低调、朴实的质感,同时地面以浅色柔光为主,顶面造型以极简为主,没有过多复杂的造型。





设计亮点
主卧与儿童房的装修风格也很相似,奶油风格的卧室崇尚小巧而精致,采用浅色简单的米白色,明亮简单的灯点缀,做成了一个舒适的睡眠区,显得温馨舒适。墙的对面是一个斗柜,日常可以用来办公与学习。主卧同样有一个大阳台,一面装了米白色的柜子,另一面放置了洗衣机,上面还有一个折叠的智能洗衣桶,储物空间很好的满足,同样可以坐着晒晒太阳,看看窗外的风景。一整面的窗户让卧室不仅阳光充足,而且通风效果也好。主卧同样是到顶的大衣柜,满足日常的穿衣储物需求。此外,主卧的对面是投影,可视角大,可以选择合适的角度观看,提高观看体验,画面色彩还原度高,整体画面亮丽逼真,画面效果也很好。






设计亮点
卫生间采用干湿分离设计,同时采用智能化马桶,更加高级清洁,流畅的线条让人体会到现代的设计感,智能坐便器有自洁除臭的功能,省水又卫生。卫生间也有挂在墙上的置物架,放置额外的用品,十分方便。浴室选用透明式玻璃门,浴室墙面使用防潮定制,旁边设计置物架,节省了空间,又很好的避免水汽。洗手台与马桶和浴室分隔开来,镜柜设计线条圆润又流畅,也很有品位,实用性非常好,还放置了全自动洗衣机等等,让浴室空间得到充分利用。此外,还有一个大大的镜柜,既可以洗完澡后照一下,又能存放日用品。
