
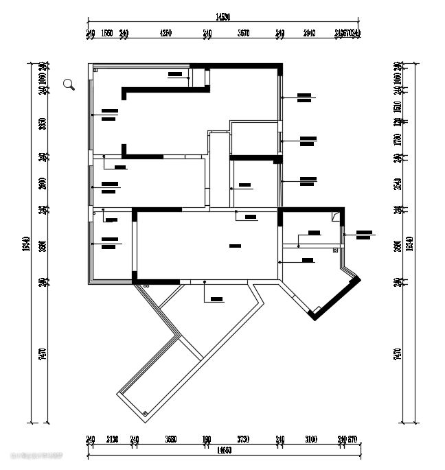
✨居住人群:一家三口居住,父母偶尔过来住 ✨功能要求:☘️增加厨房空间,可接受开放式厨房 ☘️ 入户考虑下沉式玄关 ☘️ 将原有的一个卫生点改成两个卫生间 ✨居家氛围:舒适、自然


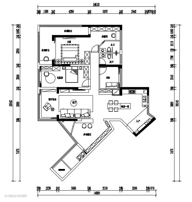
改造后: ☘️将原来主卧室的衣帽间,更改为衣帽间和卫生间,缩小原有卫生间的开间 ☘️厨房改为开放式厨房,餐厅设计:餐厅+岛台一起设计,视觉上扩大了厨房的面积,空间看起来更通透 ☘️沙发后面增加了一个吧台的设计,给空间增加层次。做在吧台上看电视也是非常不错的



硬装设计亮点: ☘️吧台处的弧形造型与客厅到客厅阳台的户型造型相呼应,让空间显得更加的柔和. ☘️客厅吊顶采用无主灯的形式:沙发背景墙采用的灯带,光线折射出来不会刺眼,躺在沙发上看灯没没有问题。 电视墙采用可滑动的磁吸轨道灯,满足各种情况下对灯具的需求 ☘️沙发背景墙后面,镂空吧台的设计,满足休闲的同时又丰富了沙发背景墙 软装设计亮点: ☘️沙发的复古绿与柜子绿色相呼应,与胡桃木的原木色作为对比色,增加了空间的复古氛围 ☘️为了让墙面给人的感觉更加的舒适并有质感,选用了立邦魔术漆哑光云纱系列里的月光石(ZGY-R023+YS-R023) ☘️踢脚线采用黑色的不锈钢颜色与立邦魔术漆哑光云纱系列里的月光石(ZGY-R023+YS-R023)相搭配,增加空间的质感

硬装设计亮点: ☘️ 入户玄关位置采用下沉式的处理方式,让玄关与餐厨过渡更加的自然 ☘️下沉区域的砖采用木纹砖,人一进门,自然的气息就铺面而来

硬装设计亮点: ☘️餐厨一体化设计,增加空间的通透感 ☘️冰箱作为嵌入式的冰箱与酒柜一起设计,空间显得更加的通透 软装设计亮点: ☘️橱柜地柜采用的复古绿与沙发、柜子的颜色相呼应,整体空间连贯起来 ☘️餐厅吊灯的设计,营造餐厅的就餐氛围,让人心情感到愉快又舒适


硬装设计亮点: ☘️吊顶挨着窗帘盒的位置圆形弧度设计,让空间更柔和. ☘️窗帘盒反光灯槽与衣柜顶上的反光灯槽相呼应,若卧室只开反光灯槽上的灯光,卧室会更显温馨 ☘️床头背景墙绿色格子墙板的设计,富有空间层次的同时,也是整个空间的亮点 软装设计亮点: ☘️床对面矮柜的设计,装饰背景墙,同时也增加了卧室小件物品的储藏 ☘️床的胡桃木色与床头背景墙的复古绿相撞,空间更富有韵味与格调 ☘️床头背景的吊灯与壁灯,赋予了空间层次,同时金属色增加了空间材质的多样性与质感

设计亮点: ☘️儿童房用蓝绿色的柜子,作为空间的主题色,展现儿童富有童真、有趣的一面 ☘️预留更多的活动空间给到儿童房,棒棒糖床增加空间的童趣

软装设计亮点: ☘️多功能房面积小,颜色上采用了浅色的柜体与绿色系的沙发、挂画上的绿色相搭配;增加空间的清晰感,同时空间不显拥挤

设计亮点: ☘️墙地一体的奶油色卫生间,更干净整洁 ☘️扩大镜柜的长度,增加浴室柜吊柜的收纳,再也不用担心卫生间的储物不够了 ☘️浴室柜采用墙排的形式,方便打理卫生又干净整洁

马桶与淋浴区采用半玻璃隔断的设计,隔开了马桶与花洒的位置,又不显得空间狭小

卫生间干区的位置单独设计,方便使用
