厨房,该如何设计?——厨房设计篇(一)
关雎DESIGN
2020-07-12
“金厨银卫”的说法由来已久,由此也可以看出厨房是多么的重要,但并不是所有的厨房空间布局、面积都完美的,这个时候就需要设计师做出合理的布局和安排好动线,还要注重细节设计。

△厨房布局形式
对于空间的布局,线型、U型和L型厨房一直都是最经典的。接下来,就通过7个厨房设计案例,来看看厨房中的特定的细节和布局,以及材料、设备的不同组合。
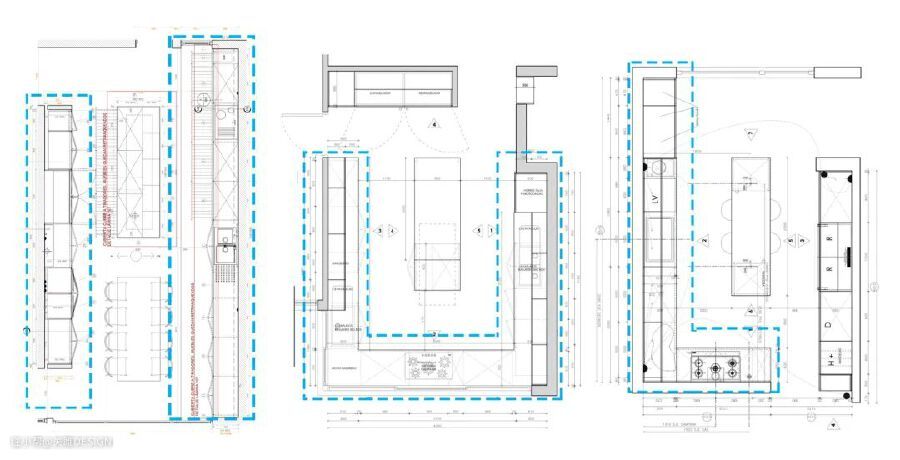
01.动线合理

厨房设计第一步:合理绘画每个柜台和家用电器的布局和位置至关重要。当然,基本规则还是使用三角形系统,其中水槽、炉灶和冰箱沿三个不同的墙壁放置并形成三角形。

△轴测图

厨房空间面积足够的话,增设岛台很有必要,可以增加柜台空间、存储空间,也可以作为就餐空间,还能为厨房区域提供视觉焦点。



02.合理利用中央岛台

以前操作台大部分是贴墙而设,只能面对墙壁操作,与其他人没有互动。设置岛台在增加互动的同时,兼具餐桌、台面功能。另外,并不是只有大户型才可以有岛台,一般5~6㎡的厨房也可拥有一个中吧台。



在这个厨房中,使用面积相对较小,但U型能够让空间利用率最大化,突出显示了中央岛台和U型橱柜,中央是烹饪区、一端是洗碗机、另一端是冰箱和烤箱。
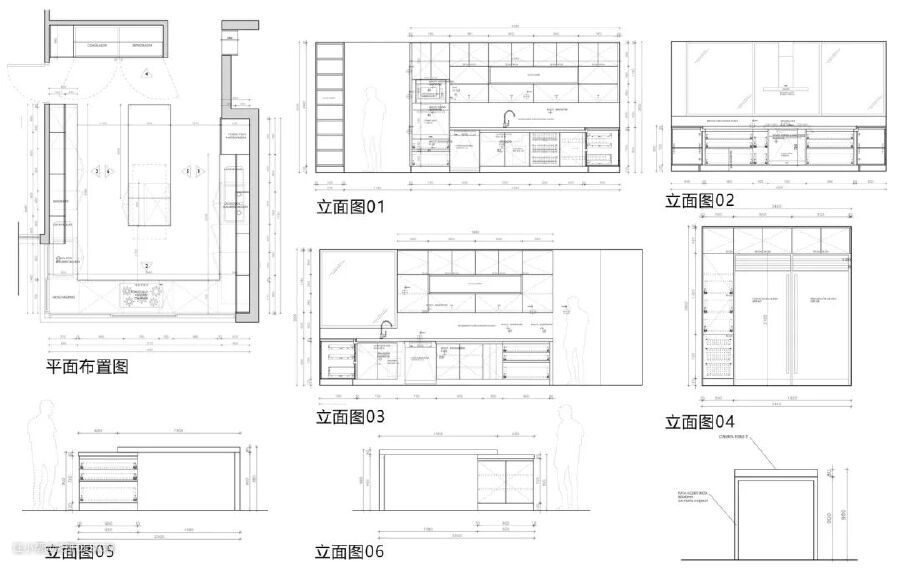
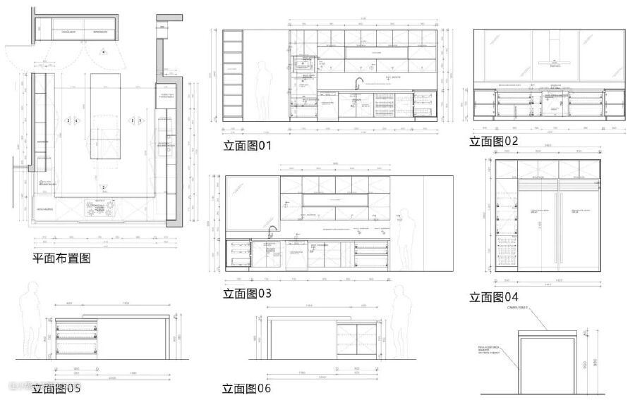
03.餐、厨合一

对于比较狭长的厨房空间,线型是常用的,洗、切、炒顺序一字排开,但动线就没有U型厨房方便了,毕竟做菜不是完全按照一条线进行。

有时候厨房空间不大,但和相邻的餐厅空间打通,设计成餐厨一体,能够相互借用空间,让厨房和餐厅面积都变大,但需要注意油烟问题,时间长可能会影响餐厅。

△轴测图

△平、立面图
像案例中这个大型的细长中央空间,为了更充分的利用空间,既设置了中央岛台,又放置了餐桌,最后以背景花园为视角,会让空间更开阔。



04.合理使用饰面材料

厨房空间跟水、油烟等长期打交道,材料选择上不能只注重美观,无论是防水性、防火性、还是耐腐性都要合理选择。

案例中的操作台面,所使用的饰面材料是石灰华大理石,但相对来说更推荐使用花岗岩或石英石。
因为大理石表面更容易吸收污渍,使用时需要做特殊处理。而花岗岩被认为是最耐用的天然材料,热锅可以直接放在台面上,还可以在表面直接进行切割。
另外,抛光混凝土是极简主义外观一个很好的选择,也是一种高度耐用的材料,防水、好打理。

△布局示意图
在橱柜这一部分,最好使用防潮性能的材料,最好不用纯实木,易变形,可选择覆有层压板的胶合板。
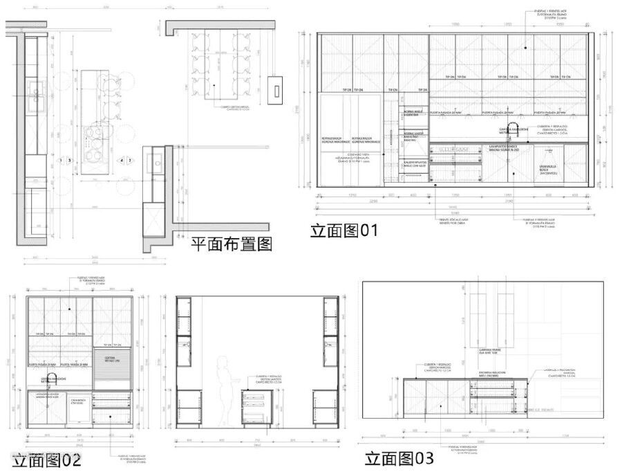
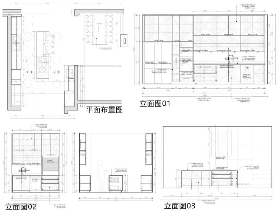
05.灵活变动

这个厨房相对较酷一些,柜体饰面板都是带纹理黑色层压板。受建筑结构限制,在布局设计上也更灵活,有2个洗涤区,奖烹饪区设置在中央岛台,既不会局限于单侧使用面积,又可以充分利用两侧储物。

△平、立面图



06.隐藏式设计

橱柜拉手、智能家电、拐角收纳等做成隐藏式,比如用按钮或者隐藏式拉手代替五金拉手,这样的一体化的设计形式,会让厨房整体看起来更有高级感。




07.智能家电

小空间的厨房,除了规划好空间动线外,要预留好足够的电源。目前,智能家电的出现让厨房更便捷,也更人性化,所以,厨房中除了灶台、冰箱、烤箱、消毒柜等,垃圾处理器、净水器、洗碗机等设备也要提前预留电源位置。

△平、立面图
总的来说,厨房分为烹饪区、洗涤区、储物区、备餐区,但根据空间结构的而不同,各个功能区的尺寸设计要根据具体的空间大小而定,具体要满足:整体看上去干净、清爽;操作中心分区流畅,动线合理;高科技设备要配齐。
