访问APP

《棉花城堡》170㎡美式田园风格装修设计,文字不足以形容的美

武汉东易日盛

2020-10-22

Turkey

棉花城堡~

澄澈透亮的水池,蔚蓝的天空下反射出纯粹的蓝,晶状瀑布和冰锥悬在坚硬的岩石下方,头顶是万里无云的天。这里是帕姆卡莱,童话仙境都不足以形容她的美。

Pamukkale,在土耳其语里,帕姆卡莱的意思就是“棉花城堡”,一个很浪漫名字。

被风力侵蚀的风格迤逦的瀑布和大片圆润的巨石,宛如巨大的蘑菇和棉花。如梦幻般,像是天然棉花铺就的白色城堡。

作为闻名世界的土耳其名胜,棉花城堡有上千年的天然温泉,更有万年形成的白色山丘,吸引着众多的游客来水疗游玩。自由、舒适、梦幻、唯美……在这里,人们尽情感受自然岁月的馈赠,体味浪漫的异域风情。

本案原房是坐落于长江二七大桥边的平层户型,拥有开阔的一线江景。屋主是90后情侣,在土耳其旅游过后,念念不忘那里的浪漫与异域风情,对于居家的设计,更希望能重现唯美自由的舒适感,富有个性。

棉花城堡

2020/DYRS

遇见 浪漫

户型:四室一厅

面积:170㎡

风格:美式田园

设计:东易日盛装饰

舒适设计是一种对未来生活的追求,设计师打造出来的家宅场景,一定能给到一种有家就有世界的感觉。

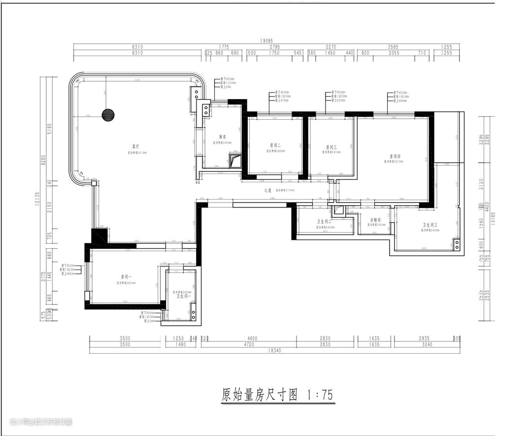
▲原始户型图

●户型点评:

户型朝向极佳,拥有开阔的江景视野;原始户型四个房间空间配比刚刚好,单个空间面积过小,后期设计使用不方便。

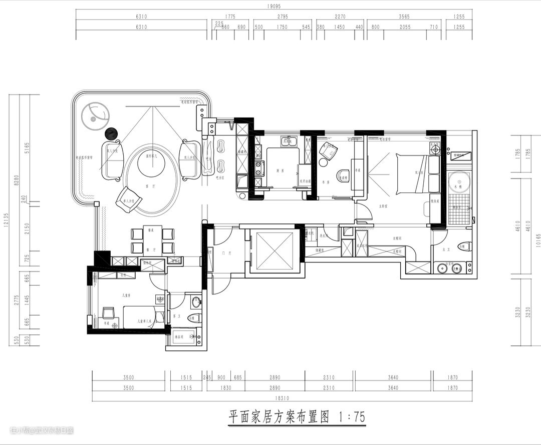
▲平面布置图

●改造思路:

◐扩大小空间,讲究连性开放空间的布局,兼顾功能实用与视野开阔;

◐结合入户设计门厅空间,增加收纳空间,入户更有仪式感;

◐拆改房间作为厨房,打造中西双厨空间,操作更灵活多变,日常生活更丰富;

◐原厨房墙拆掉,改为西式吧台设计,结合风格更富有情调;

◐主卧大套间重新分配,扩大衣帽间,扩充卧室活动空间;

◐改公卫为洗衣房,解决洗衣晾晒收纳的需求;

◐次卧卫生间多用设计,作为公卫使用;

◐设置独立书房,方便日常休闲办公。

01

LIVING ROOM

客厅

▁▁▁▁

大面积落地窗有最佳观景视野

古朴的欧式曲角线,瑰丽的仿教堂玻璃图案

深色碎花窗帘,还有撑起千年时光的圆石柱

通通被室外车水马龙摩挲

似棉花城堡一样

昼夜模糊了神话与现实的边界

不放弃用每一处空间去描摹浪漫

富有异域色彩的天花板

满铺的泛黄仿古砖

特意摆置的绿植架

连电视都不想来打扰

只想体验纯正的悠闲

02

DINING ROOM

餐厅

▁▁▁▁

每一处都不可或缺

每一角都似浑然天成

餐厅不止蜷缩一角,也积极融入城堡

大量原木,四角吊灯

圆弧拱顶壁柜嵌入整面墙

餐桌旁置一架钢琴,美食与音乐不可辜负

03

MAIN BEDROOM

卧室

▁▁▁▁

不一样的心境,造就不一样的美景

不一样的居所,带来不一样的生活

年轻屋主充满浪漫的憧憬

美式的碎花背景墙

白色欧式梳妆台

连窗台都别有风味设计圆顶造型

昼夜时光,也格调十足