长廊走道太鸡肋?原来还有这么多玩儿法!
大连未来家装饰官方
2021-01-02
现在市场上的很多户型,都有一条长长的走道,像这样:

或是像这样:

采光差,占面积不说,怎么利用还是个难题,每天回家有种陶渊明遇到桃花源的感觉,“初极狭,才通人,复行数十步,豁然开朗。”
其实现在这样的房型还真不少,那今天就和大家说一说如何拯救你家的长走廊吧。

室内长走廊的改造利用,主要分两种情况,一种是可拆改,与其他空间重新规划利用;另一种是不可拆改,只能在原始走廊基础上增加功能。
下面小编将针对这两种情况分别细说:
可拆改
当然,拆改的前提是走道两侧的墙体均为非承重墙!
1、改造成餐厅
将其融入到相邻的其他空间,增强空间舒适度:

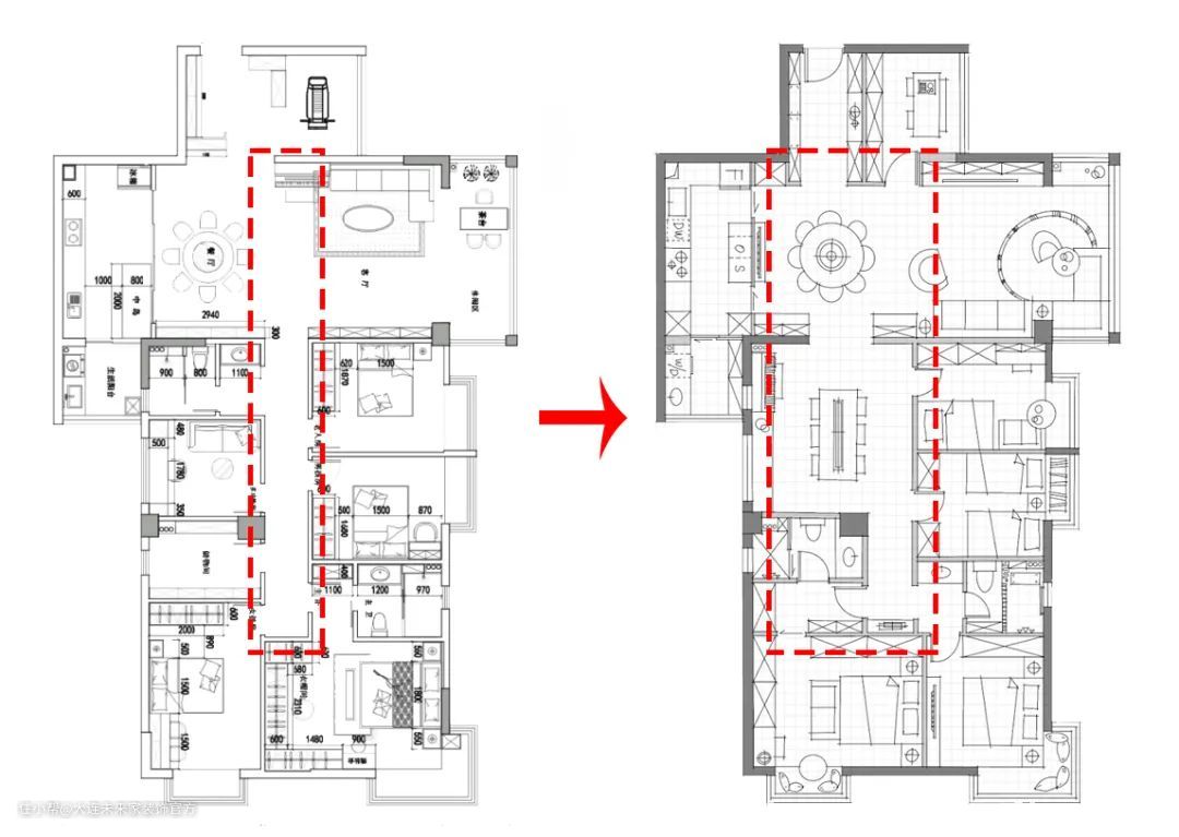
如上图,玄关与主卫之间的走廊很长,再加上相邻空间数个碎小走道,显得很是鸡肋,因此可以将走道结合次卫拆改,改造成综合餐厅空间:


改造后的餐厅利用岛台与餐桌形成一条洄游动线,让家居舒适度大大提高!
2、改造成多功能书房
无独有偶,在下面这个大平层里,长走道也被拆分重组了:

将走道结合餐厅旁的卫生间以及休闲室,改造成一个宽敞的开放图书室,摆放六人位的长书桌,可以供一家人看书学习使用。
3、增加卧室面积
走道的尽头往往连接的都是卧室,所以,把走道拆解扩入卧室使用很方便。


无法拆改
当走廊两侧均为承重墙的时候,那就无法拆改啦,不过,我们可以通过其他手段来将走廊利用起来:
1、增加收纳空间
每个家庭总有大量的非私人物品需要存放,走廊作为一个尚未开发的公共区域,有很大的潜力可以发挥。


给走廊做个定制柜,无论放什么东西都能给家提升不少档次,虽然能存放的东西不是很多,但是相比起完全没有的门厅储物来说,这是一个进步。
2、利用走道打造阅读区
家里没有独立的书房,在走廊上做个简单的书架,摆放上自己心爱的书籍,把小空间作用发挥到最大化。


这种窄而小的隔板用来收纳小朋友无处安放的书籍也很方便,垂直摆放的书籍更容易辨认,方便小朋友拿取。
3、做展示区/照片墙
有一些家庭的走廊相对较长,但是宽度又不够安装书柜和收纳柜。
这个时候,装饰墙面可以增加空间感,把你喜欢的照片,利用走廊的白墙,打造成一面你最爱的照片墙。


也可以选择挂上一些自己喜欢的艺术画布置走廊墙壁,配合灯光,走廊也能变成家里一道亮丽风景。
4、设计黑板墙
如果你家有小孩子,不妨把走廊的大白墙改成黑板墙,也给他一个涂涂画画的小空间,这种装饰让走廊充满童趣!


这样的走廊设计,避免了孩子在别的墙面乱写乱画,还能增加大人和孩子之间的感情,笑声也不止会从客厅传来,走廊也会成为你家欢声笑语的地方。
看到这里,是不是觉得长走道也没那么鸡肋啦?其实只要利用好,长走道可以让你家瞬间美起来!
如果你家正好也有这样的走道,赶紧改起来!