一有漏电、全家没电?家庭电路不能再这么装了!
深圳家装先生总部
2021-03-19

电,现代家庭运转的动力。用电要是出现bug,基本等于全身瘫痪。

➣一用电,就跳闸?
无助的你也像电闸,懵圈中反复横跳:Why?我五行缺电?

➣强电???啥玩意儿?
聪明如你,想改造一下电,却遇到“人类语言无法沟通”的情况。

➣不想有漏电危险,空开、漏保怎么装?
弱小的你持续懵圈:空开?漏保?中文何时变得如此内涵丰富?

今天,家装先生就来帮大家解决以上家庭用电非常重要的问题 — —
让大家不再担心用电安全,实现用电自由!
这是自由的感觉
我们先来看看家庭电路的规划流程:预估需要使用的电器→规划电器需要的开关插座→规划电路→购买强电箱、用电保护装置、电线→电工安装。
接下来,我们就按照流程给大家介绍。
本文阅读索引:
一 如何预估电器类型、数量?
二 如何规划开关插座数量、位置?
三 如何规划电路?
四 如何购买强电箱?
五 如何规划用电保护装置?
六 如何购买电线?
一
如何预估电器类型、数量?
要想新家用电畅通无阻,首先需要尽可能地列出新家需要哪些电器。
这里介绍一个方法:回顾过去、展望未来。
具体来说就是,装修之前,在自己现在的家里,从进门的玄关开始,到各个空间,模拟一遍日常活动的流程。
仔细回想并记录你在这些空间会使用到的电器、你未来想使用的电器、你去别人家或住酒店时发现的神器,把能想到的全记下来,基本就能梳理自己的需求了。

例如玄关,需要照明,你可能会在这里给手机、电瓶车充电,或者烘鞋,涉及的电器有电灯(1盏)、感应灯(玄关柜中空、底空部分共2条灯带)、充电器(手机充电器、电瓶车充电器)、烘鞋器(1台)等。
二
如何规划开关、插座的数量?
梳理完各个空间的电器后,它们需要的开关、插座型号和数量,基本也出来了。
插座型号需要注意的是,电器是金属外壳的,如洗衣机、烘干机、冰箱、热水器、空调、微波炉、蒸烤箱、电热的电器、电脑,或者需良好屏蔽的显示器、音响等,是三头插头,对应三孔插座。

开关、插座的数量根据自己的需求,富余一点,有备无患。比如,玄关照明灯,要和客厅做双控,需要1个双控开关;要给手机、电瓶车充电,使用烘鞋器,需要1个五孔插座,备用1个。最好是斜五孔,或者三孔和两孔间间隔比较大,这样用起来不会打架。

开关、插座的位置和高度,则要符合家庭常住成员的使用习惯和人体高度。
以上具体可以参考下表:


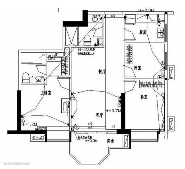
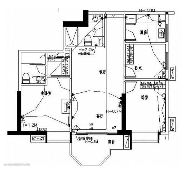
➣什么叫“定点位”?
装修改造水电时,电这块,电工经常把开关、插座、网络端口叫点位,定点位就是要确定它们的位置和数量。
点位位置确定,电工就可以进行电线布线。

定点位,电工在墙上相应位置做记号
点位数量和费用相关,有的装修公司水电改造包一定数量的水电点位,超出部分按200~300元一个收费,价格不低。
电的点位数量是这样计算的:
- 一个插座算1个点位;
- 一个分线盒算1个点位:分线盒就是电线布线中,管道结合处,用于电线分支穿线和检查使用的线盒;
- 一个普通面板控制一盏灯,算1个点位;同一个面板上,有几个开关,就算几个点位,如一个面板上3个开关算3个点位;

三
如何规划家庭电路?
电路,即回路(以下统称回路),指电源、电键、用电器构成的电流通路。

家庭用电就是通过回路分配的,分照明回路和插座回路,无论哪个回路,控制哪些电器必须明确。
- 照明回路:给家里各种灯供电;
- 插座回路:给家里各种插座供电,电器再插到插座上;

➣家庭用电需要多少回路?怎么设置?
家庭用电一般7~15个回路就可以。
大功率电器必须设置单独的专用回路,如空调、冰箱、电热水器等。
常见的回路有:
- 空调单独回路(1~2个):一般客餐厅空调功率比较大,使用一个单独回路;房间空调一般是1匹或者1.5匹,2~3个空调一个回路;
- 冰箱单独回路(1个):冰箱单独回路主要是外出时,可以断全屋的电不断冰箱;
- 全屋照明回路(1~2个):全屋灯具一般用一个单独回路就可以;房子特别大可以按区域分2路,复式可以楼上1路、楼下1路;
- 客餐厅与其他房间普通插座回路(1~2个):基本可以用一个回路;如果插座数特别多,要用的电器超过单一回路承载力,可以加一个回路;
- 卫生间回路(2个):卫生间水湿环境,插座、灯具、浴霸等使用一个单独回路;大功率电热水器增设一个单独回路;
- 厨房单独回路(1~2个):厨房有水,并且要用的电器可能会很多,使用一个单独插座回路;大功率蒸烤箱等要增设一个单独回路;
- 其他回路(1~3个):阳台如果有洗烘机等大功率电器,要增设一个单独回路;想自己家影音效果好,可以给电视柜或影音设备增设一个单独回路;地暖铺设大于36平,最好增设一个单独回路;

四
如何购买强电箱?
点位、回路规划完了,接下来就需要买强电箱、用电保护装置、电线了。
先从强电是什么说起。
01 强电是家用电器的动力来源
强电就是家里电器需要用的电。
说到强电,顺带提一嘴弱电,因为强弱电是相对概念:
- 强电是动力电,处理对象是电能,是所有电器的动力来源;
- 弱电是信号电,处理对象是信息,负责信息的传送和控制;
简单来说,强电连接电器,弱电连接网线。

02 强电箱就是家庭用电的总配电箱和总防护箱
电从电厂发出,经过输电、配电,会用入户总线接入家庭中。
入户总线会从强电箱开始被分成若干回路,连接开关、插座,给家里的电器供电;每一回路再按需安装用电保护装置,哪一路电流过大就跳闸,保证安全。
所以,强电箱就是入户总线接入后,家里的总配电箱和总防护箱。

家用强电箱一般是嵌入室内的墙内(即暗装),从外面只看得到面板,高度1.8-2.0m,能防止地面潮湿、水溅,和家里小朋友碰。

▲
强电箱露在外面的面板
可以想办法遮起来
强电箱没有选好,也会出现漏电、断电等问题。
那么,家庭装修,强电箱如何选择呢?
03 家用强电箱的选购指南
➣尺寸根据回路确定
家用强电箱尺寸越大,容量越大,需要按需选购。

▲
某品牌强电箱箱体部分尺寸
具体选多大的,需要根据规划的回路来确定,留点富余空间,方便安装。
强电箱有8、12、16、18、20、24、36回路等。假如你计算出自家需要12回路,建议买16回路的强电箱。
复式户型要是用24回路,可以买两个配电箱,楼上一个12回路,楼下一个12回路。
➣强电箱品牌建议选知名品牌
不同品牌,生产工艺、原材料、检测标准等不同,质量差距很大。
最重要的,强电箱里安装的用电保护装置,是保证家庭用电安全的重要装置,一般购买强电箱时搭配购买,质量就更需要有保障了。
建议选择知名品牌,比较推荐的有施耐德、ABB、西门子、罗格朗。
➣强电箱选购其他注意事项
- 强电箱配件一定要完整
强电箱箱体内一定要有相线、地线的接线柱,不完整的话不要购买。

- 强电箱IP防护等级选IP40即可
不同环境下,强电箱有不同防护等级要求,叫作强电箱IP防护等级。IP后面有两个数字,第一个数字表示防尘,第二个数字表示防水,都是数字越大,防护等级越好:
- I代表防止固体异物进入的等级,最高级别是6;
- P代表防止进水的等级,最高级别是8;
依据GB/T4942.2-93《低压电器外壳防护等级》相关规定,强电箱IP防护等级分为:

例如,IP34是指:防尘等级3,防水等级4。
一般家用强电箱IP防护等级选IP40就可以,主要是防虫。家用不太担心滴水侵入,可能住在海底龙宫才需要IP08强电箱吧。

▲
某品牌型号的参数
五
如何规划用电保护装置?
我国规定,36V以下(弱电)是人体安全交流电压,而强电交流电压在36V以上。
简单来说,强电会电死人,一定要注意安全。
所以,装用电保护装置,即空开和漏保(两者也统称断路器),就是为了保证家庭用电安全。
那么,空开和漏保到底是什么?装在哪里?怎么安装呢?
01 空开和漏保安装在强电箱
空开就是空气开关,回路中某一线路功率过大,电流大于额定值时,就会切断电源,也就是跳闸,保护电器、电路,但对人体触电防护没有用。
漏保就是漏电保护器,比空气开关多一个漏电保护模块,不仅电流过大会跳闸,漏电也会跳闸(漏电就是本来不该带电的电器外壳带了电),能对人体触电进行防护。

因此,空开和漏保应该安装在强电箱,起到总控制的作用。

根据两者的功能,空开做回路中的总开关,漏保做回路中的支路开关(没有漏电风险的支路也可以用空开)。
(为什么总开不用漏保?原因:①漏保装在单一回路上,如果漏保跳闸了,可以从该回路找原因,比较快捷;②漏保跳闸不至于全屋断电。)
接下来具体说说空开和漏保怎么规划。
02 一般照明回路使用1P空开,大电流回路使用2P空开
如何安装空开,需要根据所接的零线、火线数量来。
空开是通过连接的零线、火线,对回路进行控制的,一个空开接几根线,就是几个极数(P),分1P、2P、3P、4P,极数越多,安全性越高。
家庭常用的是单极1P和双极2P,适用额定电压220V(3P、4P适用额定电压380V,家庭中一般不会涉及):
- 1P空开接一根火线,跳闸只断这根火线,零线始终是接通的,如果零线发生故障带电,即使切断开关还是有可能触电;
- 2P空开接一根火线和一根零线,跳闸后火线和零线一起断;

一般,家庭照明回路使用1P空开,不使用漏保:
- 照明回路连接空开的方式是,火线先连到1P空开,再连到墙上控制灯的开关,最后连灯,零线直接连灯,不经过空开和墙上的开关,如果1P空开跳闸,只切断火线;
大电流回路使用2P空开,因为电流越大,危险性越高:
- 总开关必须使用2P空开,这是国标要求。总开关的电流是全屋电流之和,需要安全性更高;
- 空调、热水器等大功率电器回路建议使用2P空开;
03 一般插座回路选择1P+N漏保,大功率插座回路选择2P+N漏保
我们上面说过,漏保比空开多一个保护模块,可以理解为“升级版的空开”。
这个模块上通常有个“每月按一次”按钮,按一下就断电,证明漏保没有坏掉,顺便缓解一下里面弹簧的压力,有助于延长漏保的寿命,一定要每月按一次哦!

除了“每月按一次”,漏保的另一个标志是:有接线口旁边标着“N”。所以1P空开升级,就叫做1P+N漏保;2P空开升级,就叫做2P+N漏保。

为了让漏保节省空间,把零件高度集成,就成了集成1P+N漏保,尺寸和1P空开差不多,“每月按一次”按钮换成白色方块,字样省略,接线口有字母标识L(Live,表示火线)、N(Neutral,表示零线)。

▲
集成1P+N漏保
一般插座回路选择1P+N漏保,连接大功率电器的插座回路2P+N漏保,跳闸同时切断火线和零线,比1P+N漏保更安全。
插座回路连接漏保的方式是,火线和零线先连到漏保,其中火线接在“L”,零线接在“N”,再连到插座。
安装漏保的时候,一定要记得接地线(Earth,用字母E表示,家庭电路中使用黄绿相间的电线),发生漏电或触电,能够及时将过载电流引入地下,减少对人体的伤害。而且,火线(家庭电路中使用红色的电线)和零线(家庭电路中使用蓝色的电线)千万不能接反。

04 空开和漏保怎样布置?各买几个?
强电箱空开和漏保的布置方案,可以按照各回路,挨个算一算:
(1)入户总线先接总空气开关(简称总开),2P空开,总开之后,每1个回路各自有1个空开或漏保;
(2)冰箱回路用1P+N漏保;
(3)照明回路用1P空开;
(4)厨房一般插座回路用1P+N漏保,大功率蒸烤箱单独插座回路用2P+N漏保;
(5)卫生间一般回路用1P+N漏保,大功率电热水器单独插座回路用2P+N漏保;

▲
某中小户型配置,其中蓝框圈出的3只是1P+N漏保
05 空开和漏保买几A?
空开和漏保的额定电流只有10A、16 A、20 A、25 A、32 A、40 A、63 A这几种,标着“C10”就是额定电流10A的意思。
空开、漏保的额定电流要稍小于电线的安全载流量。
举个例子,如果电线的安全载流量是13A,也就是电流≥13A,电线就可能发热甚至燃烧,那么用C10空开或漏保,电流达到10A时就会跳闸,理论上保证电流永远不会超过10A,电线就是安全的。
空开和漏保的规格选择可以参照下图:
↓↓↓
断路器包括空开和漏保
面积指建筑面积


六
如何购买电线?
买电线的时候,你可能会遇到这样的问题:有人跟你说粗线好,安全;又有人跟你说没必要买粗线,费钱;电工又经常拷问你,到底走几方?
粗细、方到底是啥?安全和省钱怎么平衡?
电线到底应该怎么买?接下来我们具体说说。
01 粗细、方是什么?
其实“方”,就是电线的粗细,电线铜导线的横截面面积(BV),单位是平方毫米(mm²)。
所以,电工如果问你,电线走几方?也就是问你:要多粗的电线?

02 电线走几方合适?
一般来说,电线越粗,载流量(A)越大,能带动的电器功率(W)越高,但不建议全部走粗线。

首先,电器能不能被带动,不只受电线方数的影响,还有其他因素,比如电压。
其次,电线粗线肯定比细线贵,全部走粗线浪费不少钱。
另外,电线是装在PVC管道内的,一般来说,一根PVC管道,最多只能容纳六根电线,而且电线总面积不能超过管道面积的百分之四十,全是粗线的话,装不了几根线,这样又增加了管道的费用。
电线粗细的选择,要根据具体的用电需求:照明回路一般使用1.5BV单芯线,插座回路一般使用2.5BV单芯线,功率超过2000W的插座回路选择4BV或以上规格单芯线。

家庭装修需要用多少电线,可以参照下表:

03 电线的品牌和价格
电线关乎居家安全,要买有品质保证的电线,选有3C认证、型号清晰可辨、绝缘层厚薄均匀、柔韧性强的。
简单列一些市面用比较多的品牌参考:
PVC电管:中财、伟星、联塑,很多装修公司用自己定制的华翌电管,质量一般。
电线:熊猫、起帆、德力西、正泰、金貂、昆仑、朝阳、慧远,小的装修公司和工长会用天津小猫,价钱比昆仑等品牌低很多。
以下是网购电线的报价参考——
BV单芯单股硬线(家庭常用型号,一个绝缘层内一根铜导线):
- BV-1.5=1~3元/米
- BV-2.5=2~5元/米
- BV-4=5~9元/米
- BV-6=6~13元/米

BVR多股软线一般用于临时场所、活动用线
按照需求,选择合适的,才是最好的方案。
这也是家庭用电安全和自由最好的方式,希望大家都能享受无忧无虑的现代电力生活。
好了,关于电的内容,家装先生的分享就先到此为止,要是对你有帮助的话,记得点赞+收藏+关注哦,家装先生也会持续更新这类装修知识。要是装修设计中遇见了哪些难题也可以call ,家装先生哦,我们会一直在线的。