光与影的住宅,美妙绝伦的空间#如何打造精致生活空间
孝感百安居装饰
2021-03-30

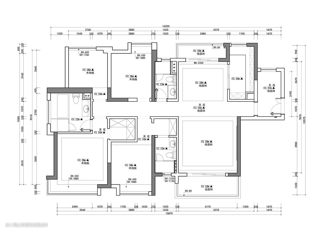
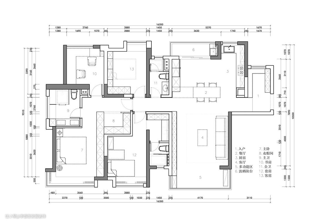
项目位于广州天河的一套高层住宅,建筑面积为163平米,在这套住宅中设计师将光影、空间与物质进行塑造,以更原始而素朴的形式,塑造出纯净、宁静、深远的空间感触。
▼改造前后平面图对比


▼玄关


生活的元素都被精心的隐藏起来,原始的天然材料给干净的墙面带来温润的质感,自然元素与现代元素的融合。
▼客厅


公共区整体格调采用暖色木纹饰面与暖色灰泥,营造了温馨舒适的居家氛围, 大面积的落地窗彰显空间的大气与尺度,可使原本压低的层高更加开阔,赋予空间轻松高雅的灵魂。


垂直百叶在风中摆动,隐约可以从缝中欣赏远方景色
▼客厅局部


时间停歇在光与影的波纹上,世间光影变幻,虚虚实实,化做形形色色的万物缩影,光一样的流过无痕,影一般的变幻莫测。
▼木饰面在光影下的变化




木色包裹的空间下,极简的手法与自然元素相结合,同一种色彩及肌理,形成地面、墙面、顶面的无缝连接,极致统一。
▼餐厅


根据现有的梁做成一些结构穿插,增加空间之间的联动性,灰色水泥墙漆并没有给空间带来冰冷的视觉感受,反而被周围的环境色渲染成暖色调。
▼过道


实木贴面与木地板仿佛时空隧道,跟随光影通往不同的房间。
▼主卧室



卧室依旧延续了整体的自然风格,木色和白色是空间的主色调,注重功能性与实用性的相辅相成,光沿直线传播,当遇到不透明的物体时便被挡住了,在地上形成一个一部分光不能到达的区域,这个区域就显得暗些了,于是形成了影。


悬挂式床头柜是由木工现场制作的,与客餐厅所使用的是同一种材质的木饰面,颜色与材质相呼应。
▼卫生间


世间光影变幻,虚虚实实,化做形形色色的万物缩影
