四层豪华欧式别墅设计图,带车库带花园
建房云图库
2021-04-26

建设地点湖南张家界
图纸编号1880
尺 寸面宽 11.1米 进深 13.7米
建筑面积534.0㎡
项目概况

△总平面示意图(右上角为北)
基地情况:
东:自家宅院
西:村内池塘
南:村内池塘
北:自家宅院
项目简介:
业主在项目前期对平面布局有大致需求,并提供了初步的手绘图供设计师参考;在立面造型方面业主希望呈现出轻奢雅致之感。设计师根据场地情况,及业主的需求与喜好,将项目形式确定为带架空层的3层欧式别墅。
平面布局
户型概况:
3层+架空层 / 5室 2厅 8卫 1厨 1土灶 1储藏 1杂物间 2衣帽 1棋牌室 1茶室 2书房 1影音室 3阳台 1露台 1阳光房/客卧/书房 1车库

△架空层平面图(右上角为北)

△辅房平面图(右上角为北)
架空层的功能定位是娱乐、储物和接待访客。楼梯旁设置较大面积的储藏室,储物功能强大;根据业主的喜好设置影音室、棋牌室。设计师将餐厨功能独立放置于辅房区域。

△一层平面图(右上角为北)
一层以待客休闲功能为主,含有丰富的休闲活动功能的同时,面积也十分开阔。设计师将楼梯置于西北侧,南侧的茶室为日常待客取得更多便利。

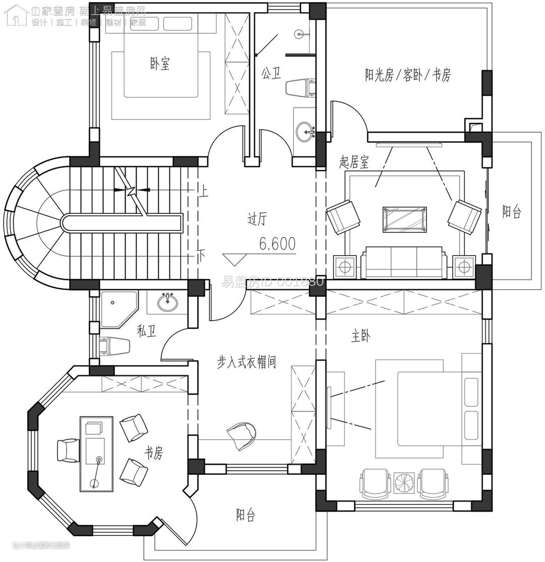
△二层平面图(右上角为北)
二层以居住休闲功能为主,共设置2间卧室,其中东南侧的主卧套房,搭配衣帽间、书房、独卫和阳台使用;中部的起居室向外延伸出的多功能房,可用于晾晒或日常观景。

△三层平面图(右上角为北)
三层以办公休闲功能为主,南侧预留了较大面积的露台区域,北侧的书房向外延伸出阳台区域,满足业主家的日常休闲、娱乐的需求。
造型设计

△东南侧效果图

△鸟瞰图

△南侧效果图
建筑整体为欧式风格,整体配色较为淡雅而优雅,设计师使用大量的米色真石漆和深色文化石,搭配线条、欧式围栏,再缀以浮雕、雕花等欧式元素装饰,立面造型精致优雅。

△东侧效果图

△南侧效果图

△东侧效果图
露台功能搭配门厅的三角顶设计,与顶部的阁楼层相呼应,突出建筑整体的层次感。

△主立面效果图

△庭院效果图

△西侧效果图
建筑顶层的大面积露台设计,可以调节快节奏现代生活带来的压力,提供安静休憩之所。

△局部效果图

△局部效果图

△局部效果图

△东北立面图

△西南立面图

△东南立面图

△西北立面图