客餐厨全打通,80㎡轻松显大一倍,坐拥两个衣帽间,比大平层还好住
在家ZAIJIA
2021-06-02

明明是普普通通的80㎡两居室,她家却坐拥2个衣帽间+洗衣区。设计师将客餐厨全打通,硬生生把刚需户型改出了大平层的感觉,还不快来抄作业!
使用面积:约80㎡
户型:两居室
装修花费:40W
房屋坐标:上海 普陀区
认识TA
设计师:Nono
NONO SPACE设计事务所创始人,设计作品曾刊登于《时尚家居》、《装修情报》、《瑞丽家居》、《第一家居》、“一条”公众号、ICS上海外语频道等多家媒体平台。
房屋信息
屋主是对90后新婚夫妻,两人一路从大学到结婚,很了解彼此的习惯喜好,对婚房的设想也高度一致:希望调性简单,且能满足两人居家办公的需求。

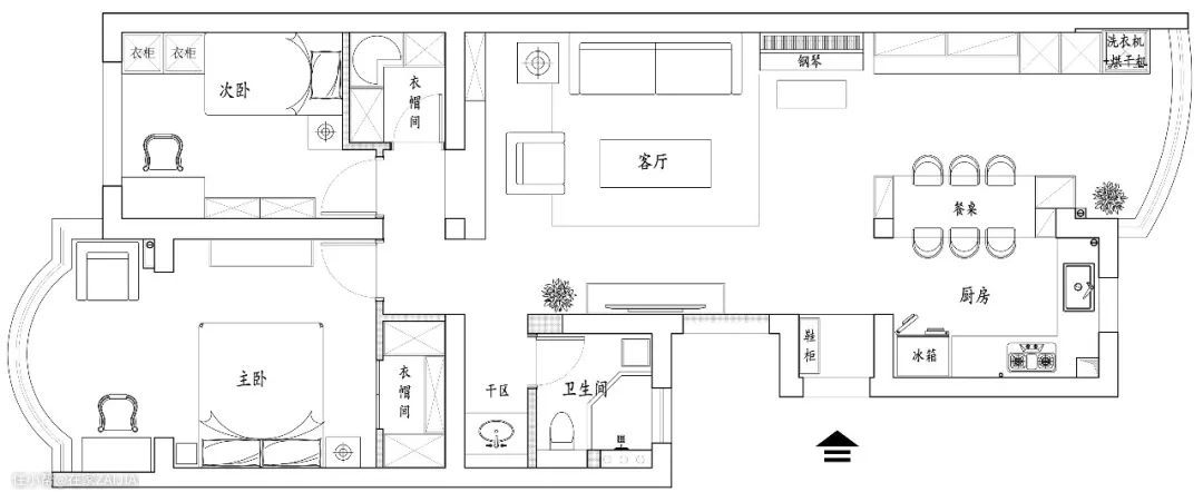
改造后·户型平面图
考虑到原户型进深过长,采光先天不足,改造时设计师对空间做了如下调整:
○打通原客餐厅,视觉上放大空间,也为屋主想要的办公+用餐综合区腾出位置;
○ 适当缩小主次卧面积,新增两个衣帽间;
○ 南阳台纳入主卧,扩充面积、提升采光;
○ 更改卫浴间入口,实现干湿分离;
○ 全屋更换大面积透明玻璃窗,改善采光。

巧用马赛克瓷砖,划分入户落尘区

玄关面积虽小,但胜在功能紧凑。设计师将入户门改外开式,开门不占内部空间,超薄鞋柜能收8-10双鞋,底部还能收4双常穿鞋,日常使用足够。
鞋柜对面是挂衣区,换鞋转身挂包,动作一气呵成。


玄关地面铺设黑白马赛克瓷砖,一来能起到区域划分的效果,二来瓷砖更好打理。

木地板延伸上墙,丰富空间层次

🏷️ 沙发、茶几、电视柜:北欧表情
🏷️ 木地板:卢森
从玄关进来,左侧是宽敞的长方形客厅空间。设计师以素色沙发与地毯奠定客厅的简约基调,整个空间采用无主灯设计,仅靠轨道灯和筒灯丰富光影层次。
沙发墙长6米,为避免大面积白墙显单调,设计师将木地板延伸上墙,整墙花费约4800元(含施工)。
⚠️ 木地板上墙TIPS:施工时,需提前用细木工板做好墙面基础,相比实木地板,实木复合和强化复合地板更适合上墙。


🏷️ 单人沙发:野兽派
男主人爱阅读,所以才有了沙发旁这面特意定制的书柜墙,柜体上二下四设置了两种高度的储物格,方便收纳不同尺寸的开本。男主人给每个格子做了清晰分类,哲学、科学、人文、中国文学、欧洲文学、艺术...美观又方便检索。


沙发对面即电视墙,意式风格的电视柜收纳充足,灰色门板刚好与沙发巧妙呼应。轻便可移动的茶几组合,能时刻保证客厅空间的功能灵活。

挤出来的衣帽间,用2㎡解决收纳难题

暂时空置的次卧门口是新增的衣帽间,开门在书柜侧墙比较隐蔽,不会有客厅到处都是门的感觉。
衣帽间内主要收纳屋主夫妇的过季衣物、行李箱、运动装备和非常用物品,别看只有2㎡出头的空间,外面的整洁有序全靠它。

客餐厨一体,打造综合功能区

屋主夫妇都有一份不得不加班的工作,所以希望家里能有张足够大的桌子,同时满足用餐、办公、阅读等多种使用场景。
改造时,设计师将餐厅与客厅的隔断墙拆除,让客厅、餐厅、厨房自然连通,形成综合型多功能空间。

🏷️ 餐灯:造作
北面餐厨一体,木地板从客厅通铺到小阳台,进一步营造空间的视觉统一感。餐厨及北阳台的动线,由中间这张2.7m X 0.9m的长餐桌串联。

用餐区视角看厨房,右侧连接玄关。

🏷️ 烟灶:老板
🏷️ 洗碗机:西门子
长餐桌将开放式小厨房与过道隔开,保留了厨房空间的完整功能,L型橱柜严格按照洗——切——炒的动线布局,因为餐厨一体,端菜上桌转个身就能完成。

简洁造型的浅灰色柜门搭配小白瓷砖,柜门金色拉手与洗碗机在材质上相呼应。

厨房对面,餐边柜连接阳台柜,餐边柜中间长约2米的开放式操作台,提前预留电源,可收纳微波炉、烤箱、咖啡机、热水壶、黑胶唱片机等小家电。

旁边是女主人的钢琴,这里即是客餐厅的过渡区,也是入户后第一眼看到的画面。


临近餐厨的北阳台,洗/烘干机嵌入柜体设置,柜体内可收纳清洁工具。

连通南阳台,扩展卧室空间

主卧改造前(上)后(下)对比
改造时,设计师将主卧与北阳台打通,同时将卧室与卫浴间的墙体向内推移,适当缩小了卧室面积,主卧新增一个小衣帽间。

🏷️ 双人床:二黑木作
🏷️ 床头柜:北欧表情
主卧内,屋主喜欢的墨绿色得以大展拳脚,卧室与衣帽间同样以墨绿色丝绒软帘隔开,更省空间。

🏷️ 床品:野兽派
墨绿色墙面与胡桃木制家具搭配,营造出静谧、古典的入眠氛围。


🏷️ 梳妆台凳:北欧表情
🏷️ 单人椅:失物招领
🏷️ 地毯:青山美宿
主卧与南阳台连通后,一侧放置了女主人的梳妆台,另一侧千鸟格单人椅搭配地毯,打造临窗休息区。

更改卫浴间入口,实现干湿分离

改造时,设计师将卫浴间的入口内移隔出独立干区,定制的台盆柜下,两个大抽屉能基本满足屋主两人的常用洗漱用品收纳,保证台面的整洁。

考虑到干区正对客厅的绿丝绒沙发,墙面特意选了同款配色,扇形马赛克搭配纯铜收边压条,金属材质的加入成为点睛之笔,为小角落增添了一份精致感。

湿区内隔出了宽敞的玻璃淋浴房,洗澡本就该享受,不应束手束脚。设计师特意选了更省空间的壁挂式马桶,日常清洁也更方便。
用来隐藏马桶水箱而砌出来的假墙垛,可作为展示储物台使用。

设计师说:“整个空间都是围绕屋主「less is more」的生活理念展开,让简单的生活简单过,抛开繁杂的设计手法,让空间因生活而生动,这样的家或许才是所谓的理想吧!”
🏠
━
👇 戳图,与设计师直接交流👇

📖
━
拓展阅读
📱
━
商 务 合 作
微信ID:TrendsZaijia006
微信ID:TrendsZaijia010
后台回复“转载”,获取转载须知
编辑/里里 图片/设计师提供
参考来源:@nonospace,已获得授权
看完如果有收获,
就请 三连击吧!