如果当初选择弧形设计,那该多好
那宅设计事务所
2021-07-17
在很多好看的装修风格中一定少不了见到弧形元素,在家居设计中相对于棱角分明的方形元素,弧形给人暗暗的柔美质感也更加的温柔。

1 硬装弧形元素
拱门在罗马建筑中非常常见,越来越多的运用到家装设计中,拱形门洞没话墙面造型,一道拱门可以瞬间提升家居质感,
▼拱门





在吊顶上做一些小改变,弧形吊顶在视觉上比较圆润,给人一种舒服的感觉,同时弧形有一种延伸感,视觉上层高会显高,空间也很大,能够很好的弱化横梁。
▼吊顶





▼电视背景墙



以弧形墙面作为转折,流动的线条能优雅的定调家居空间
▼墙面


2 软装弧形元素
▼沙发


▼地毯


▼玻璃门


3 施工工艺
▼反灯槽


根据角度进行放样切割做出弧形的木龙骨架
造型工艺:切割基层板→固定基层板→曲面定型→固定造型基层→安装石膏板→饰面层。吊顶曲面弧度距离小于300mm时
顶面造型可直接使用成品石膏线完成。
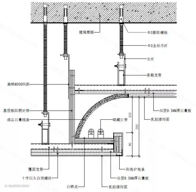
吊顶曲面弧度大于300mm,小于1000mm时
工艺做法:固定吊杆→固定龙骨→固定石膏板→刮腻子、刷乳胶漆、固定饰面层。

▼吊顶
首先用木龙骨和板材做的框架基础中间用柔软的易弯曲的板材作为基层,然后用切成条状的石膏板进行铺贴最后涂刷石膏腻子和墙漆一个弧形吊顶就成型啦

首先用木龙骨和板材做的框架基础中间用柔软的易弯曲的板材作为基层,然后用切成条状的石膏板进行铺贴最后涂刷石膏腻子和墙漆一个弧形吊顶就成型啦
▼成品效果

▼墙面
直接根据尺寸凿掉墙角,再用腻子粉修成圆弧形

▼砖砌
直接砖砌成弧形墙挂网后铺腻子


▼木饰面
木饰面有5mm和8mm两种,5mm加热折弯即可,8mm需要在背后开槽加热之后再安装

-
今天的干货分享就到这里啦
下期您期待普及什么干货欢迎私信留言我们哦~
部分图源来源于网络