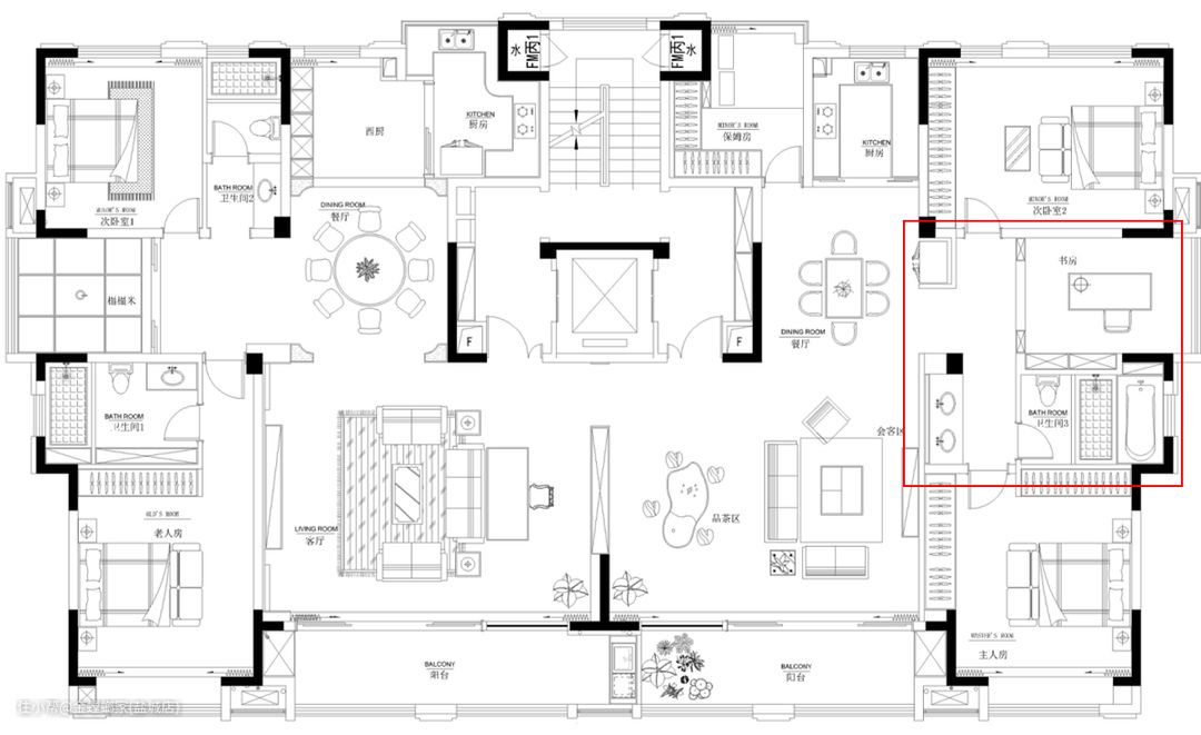
通过折叠窗+半墙,打造通透开放式书房
金螳螂家(盐城店)
2021-10-15
原始户型方正,如何正确合理布置适合客户生活习惯的平面布局尤为重要。

平面设计图及设计说明
由于生活习惯的不同,需要有双功能区,两边功能独立。在客厅,打开空间,增强了空间的感觉增强了空间的感觉。 户型两个房间大小相近,因此卧室没有主次之分,同时客厅电视背景作为整个客餐厅的主要视觉亮点,原始的背景墙相对来说比较狭小不够大气,所以客厅背景扩大,使房间也变大了,把两个房间区分主次,餐厅原本采光不好,经过改造后把厨房门扩大成推拉门增加采光 户型因受先天条件影响,出入动线曲折过多的隔墙,挡住了光线使得采光不佳,产生阴暗、窄迫的空间感觉,同时让家人之间的生活互动也受到影响。 因此,把进门的房间打通,使得整个空间的动线顺畅。 通透设计,保证了室内光线的充足 设计师在有限的空间尽可能多的为业主设置储物空间。实现空间资源利用最大化。




客厅效果图及设计说明
空间上,最主要的亮点是客餐厅一体,空间上使人感受到广阔,

餐厅效果图及设计说明
实现空间资源利用最大化。

卧室效果图及设计说明
卧室整个色系采用同色系,整个空间温和淡雅不失高贵,一切喧嚣归于静止,床头吊灯的设计搭配抽象谢意装饰画,让整个空间增添神秘感,设计别致,提升卧室格调。
