有了这篇文章,拆墙砌墙不踩坑
芜湖凡品空间设计
2021-12-27
装修中躲不开且必须注重的四大点:
一、水电隐蔽工程
二、卫生间阳台防水
三、瓷砖铺贴,防脱落,防空鼓
四、墙体防裂处理
今天我们就来聊聊装修中最常见的问题之一,在拆墙砌墙的墙体防裂处理
一、拆除墙体
1、现场拆除尺寸注意预留批荡找平尺寸
墙体拆除前核对图纸中的尺寸,现场需要结合拆除后的墙边批荡找平厚度计算,保证后期墙边批荡找平后的成熟尺寸与图纸尺寸相符!

2、先切缝再拆除
墙体拆除前要将批荡层切缝后在拆除,防止拆除过程中的震动将批荡层震空,以免影响后期的贴砖及乳胶漆的施工质量
3、不同情况下的新旧墙体砖砌搭接方式
▼新砌砖墙与承重墙体:拉结筋连接

承重墙体根据砖缝钻孔、清孔,打入植筋胶,砖砌体中拉结筋的纵向间距不大于500,植筋长度一般为10d(d为钢筋直径),一般拉结筋使用直径6mm拉结钢筋;
#砌墙
▼新砌砖墙与旧砖墙交接:齿口交接


旧墙留齿口,新墙与旧墙形成齿口交接,更好的咬合在一起;
正确的搭接方式能有效防止墙体结构性开裂
4、在新旧墙体交界处批荡层做防裂处理


旧墙需要铲除20公分批荡(同样先切缝再铲除),先挂网再批荡,挂钢丝网要覆盖到旧墙20公分,新墙满挂网
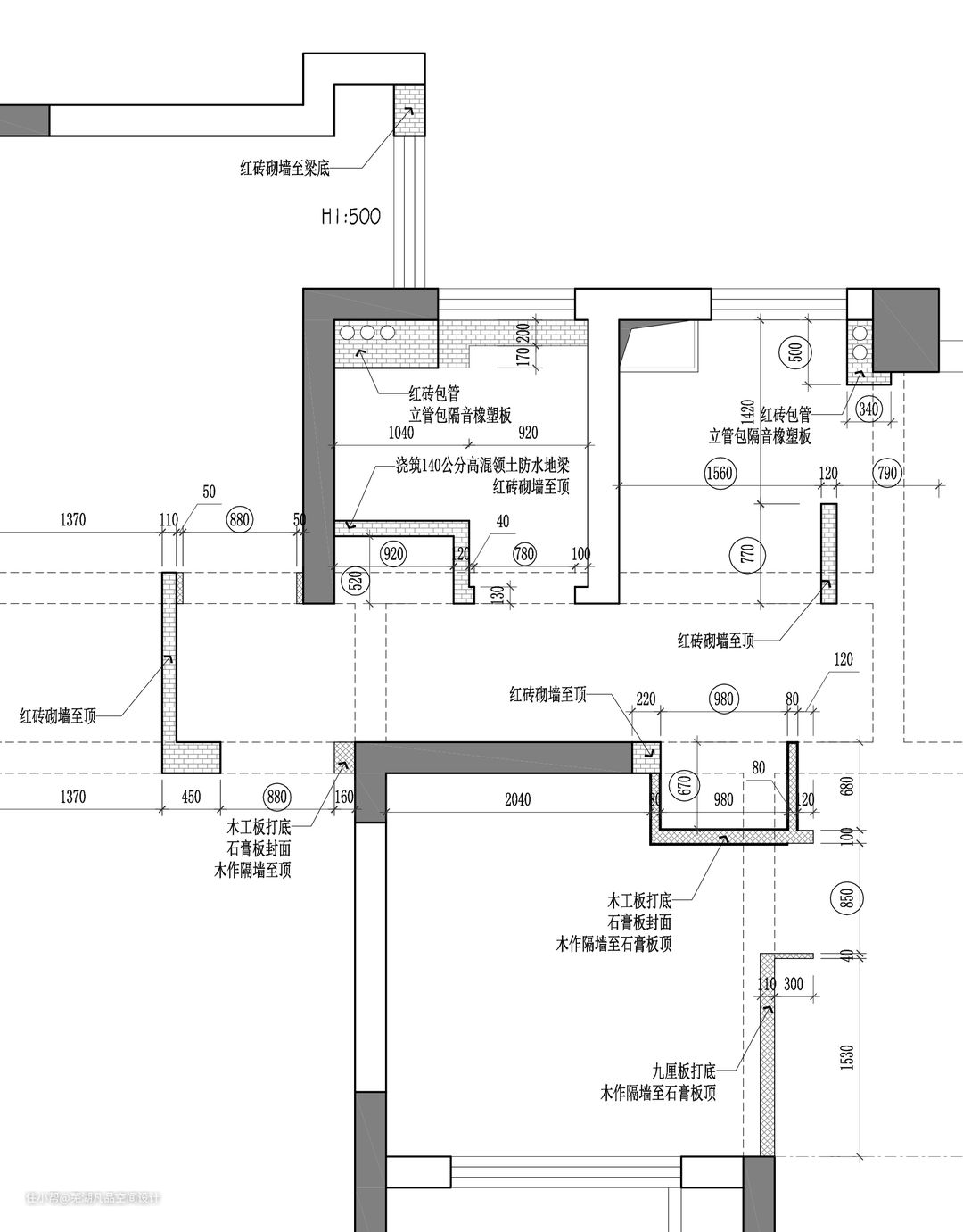
5、在卫生间等湿区区域的墙体需要采用红砖砌体,并且现浇混凝土隔水地梁

地梁高度不少于15公分,在现浇地梁之前要将地面砂浆找平层铲除,露出楼板现浇层,将现浇层表面砂浆部分清理干净后用水冲洗,在现浇层表面刷上素水泥油后再进行地梁现浇


6、砖砌墙体顶部红砖斜砌压顶

7、批荡前的打点找平

8、窗台砌筑


砌筑完成后,现浇5-10公分左右混凝土(内置钢筋)窗台梁,批荡时仍需要切除交接处的20公分旧墙批荡层并挂网批荡
以上图片均来自凡品施工现场