福建厦门小面宽现代别墅
建房云图库
2022-01-03
K8
别|墅|设|计

Make your villa dream come true
福建厦门小面宽现代别墅
建筑尺寸:8.6m×13.6m
占地面积:100.5㎡
建筑面积:395.5㎡
结构形式:框架结构
5层 / 7室 2厅 7卫 1厨 1洗衣 1储藏 1衣帽 1书房 1茶区 1功能房 4露台
平面图
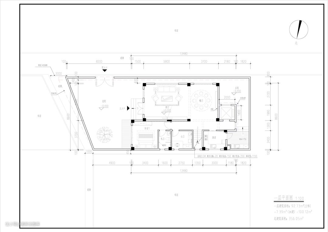
本别墅位于厦门,场地是坐东朝西的,房子朝东。一层的客厅区域采用两边打通的方式,让空间最大化地敞开,客厅部分挑空,厨房布置在餐厅南侧,厨房东侧楼梯,楼梯下为公卫,紧挨着公卫为一个带私卫的套房,最西侧预留了电梯的位置,后期有需要可以加建电梯。

一层平面图
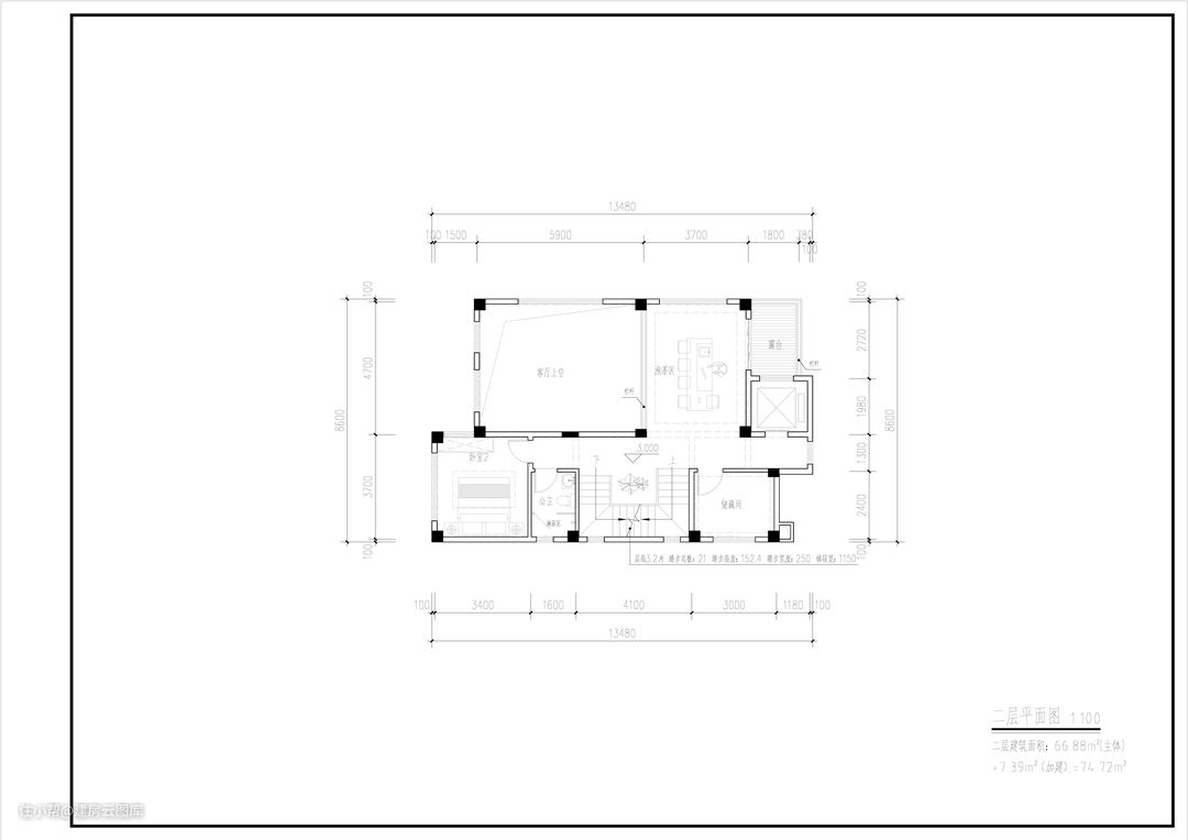
通过楼梯走到二层来到了走廊,东南侧为一个带私卫套房,走廊北侧为泡茶区,在泡茶区可以俯视一层客厅,西北侧做了一个小露台,西南侧布置了一个储藏间。

二层平面图
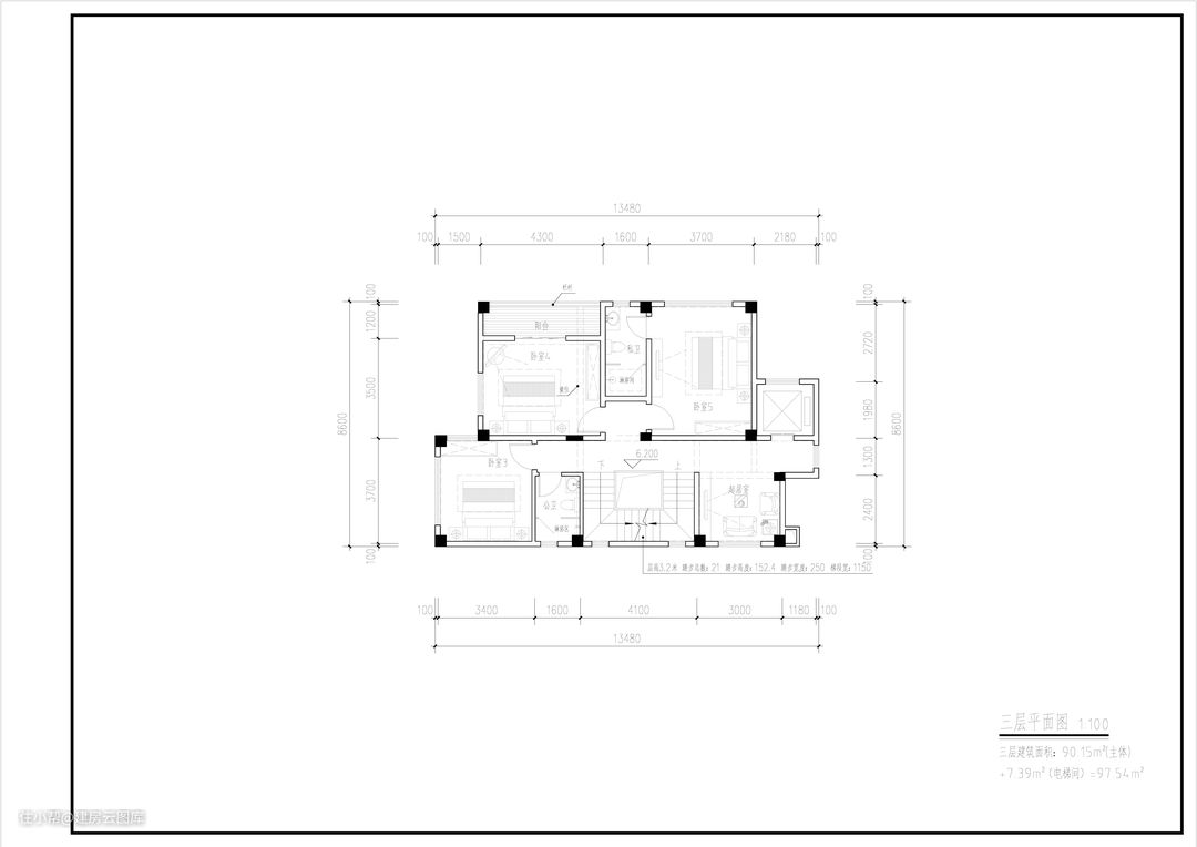
三层为居住空间,共布置3间卧室,其中东南侧和西北侧卧室带私卫,东北侧卧室带阳台,起居室布置在西南侧。

三层平面图
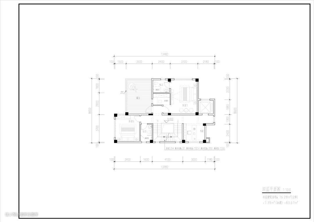
四层也是居住空间,两个套房,一个书房,东侧一个超大露台。

四层平面图
效果图
为了将周边环境利用到极致,设计师使用大面积的落地玻璃让窗外的自然景观与空间融为一体,整幢建筑犹如一个向大自然开放的空间,满足了人对自然与纯粹的向往,在这样一个极简的空间中,感受时间的静止,享受唯美的意境。

东南侧效果图

东北侧效果图

东南侧俯视图

南侧效果图

西南侧效果图

西南侧俯视图

东北侧效果图
立面图

总平图

南立面图

东立面图

西立面图

北立面图