你家冰箱放哪了?六个冰箱摆放实拍案例供参考
居然之家自营家装
2022-01-25
一般来说为了拿取食物方便,装修时我们会把冰箱放在厨房。但是有些房子厨房比较小,放不下冰箱,或者是厨房格局不适合放冰箱,这种情况下,冰箱放到哪里合适呢?今天我们就拿实际案例看看,冰箱摆放位置的几种可能性。
拆改

▲▲原始户型图
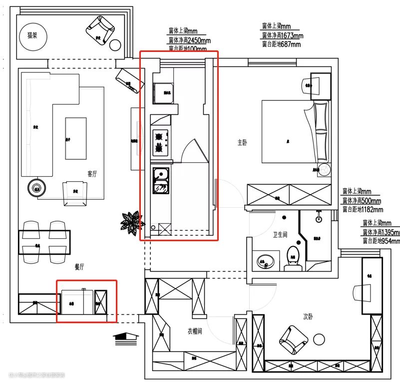
原始户型厨房是一型,狭小局促,放了冰箱后操作台面更小。老房子格局不好,客厅没有窗户,再加上厨房的一面墙堵着,客厅显得更憋屈。

▲▲拆改平面布局

▲▲拆改实拍图
设计师将厨房原有的墙壁拆除做成开放厨房,厨房变成了L型。多了一组高柜+拐角,储物空间、台面空间都更多了。旁边还能放下一台小冰箱;餐桌也有了摆放位置;同时能引一些厨房阳台的光线到客厅,真是一举三得。

▲▲原始平面图
这个案例也是,厨房原本比较小,门厅的位置浪费。拆了厨房墙以后变成开放厨房,门厅位置设计成餐厅+玄关柜,将门厅原本浪费的空间彻底盘活,达到多次频繁使用的效果。

▲▲拆改平面布局

▲▲拆改后实拍
门口做了一个玄关柜,将冰箱放在厨房里面,玄关柜的后面。拿取食物方便,柜子又对厨房起到一定的遮挡作用。U型厨房,空间利用率更高。
砌墙

▲▲原始平面图
原始户型图开门对着厨房和卫生间,并且厨房和卫生间门口的两块区域也被浪费了。如果将冰箱放在厨房,厨房面积就小了,放在厨房外面,开门就看到冰箱侧面也不太好看。

▲▲改后平面布局


▲▲改后实拍
设计师在厨房和卫生间门口横着砌起一面墙,墙上挂着女主人的作品,开门见景。墙后面一边放置浴室柜和洗衣机,卫生间里面是淋浴房和马桶,卫生间可以实现三分离;一面墙后面放冰箱,厨房面积增大,门口的区域也被利用起来。

▲▲原始户型图
原始户型缺陷:
- 入户门正对着卫生间
- 卫生间和次卧门口走廊面积浪费

▲▲改后平面布局


设计师将进门正对着的墙封上,解决了入户门正对卫生间的尴尬,摆上玄关柜和装饰品,进门处多了一道靓丽的风景;从右侧厨房门口处进入次卧,利用原来浪费的过道空间为次卧做了一个步入式衣帽间;厨房门口处做了一个大柜子,将冰箱嵌入其中,超大的储物空间,同时冰箱在厨房门口,拿取食物也很方便。
餐桌旁

▲▲平面布局图


冰箱放在餐桌旁
本案的厨房空间有限,放不下冰箱,只能将冰箱放在餐桌旁,搭配餐边柜,使用起来也还算方便。

▲▲原始户型图

▲▲平面布局图
本案原本是L型厨房,改为U型厨房后虽然有了放冰箱的位置,但是业主家厨房电器比较多,有洗碗机、蒸烤箱,所以最终设计师还是选择了将厨房放在餐桌旁。

▲▲实拍图
将白色的对开门冰箱嵌入到白色定制柜子里,黑色拉手相呼应,看上去非常融洽。如果预算充足,甚至可以买嵌入式的冰箱,这样柜门可以跟定制衣柜完全一致,只不过嵌入的冰箱太贵了,退而求其次选择了与定制衣柜相似的冰箱,保证了颜值,也大大降低了预算。