两厅一卫一厨户型解析1
金螳螂家眉山店
2022-03-25
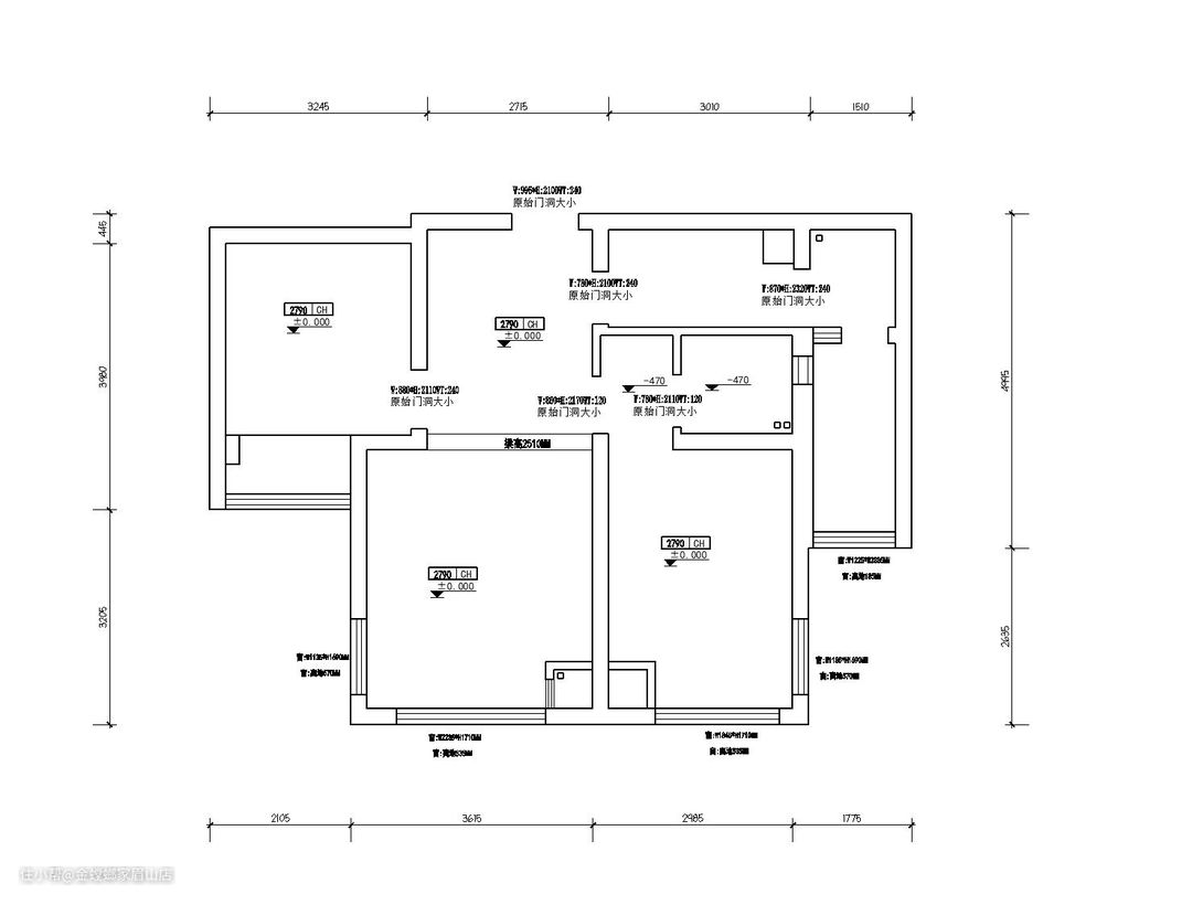
该户型为两室两厅一卫一厨户型,户型方正,厨房偏小

根据客户需求,保留两个房间,房间做榻榻米,公卫做干湿分离,厨房连通生活阳台。

该户型为现代风格,硬装上没有复杂的造型,做了一个乳胶漆分色处理,顶面做无主灯设计。

餐厅吊顶做无主灯设计,与客厅呼应

金螳螂家眉山店
2022-03-25
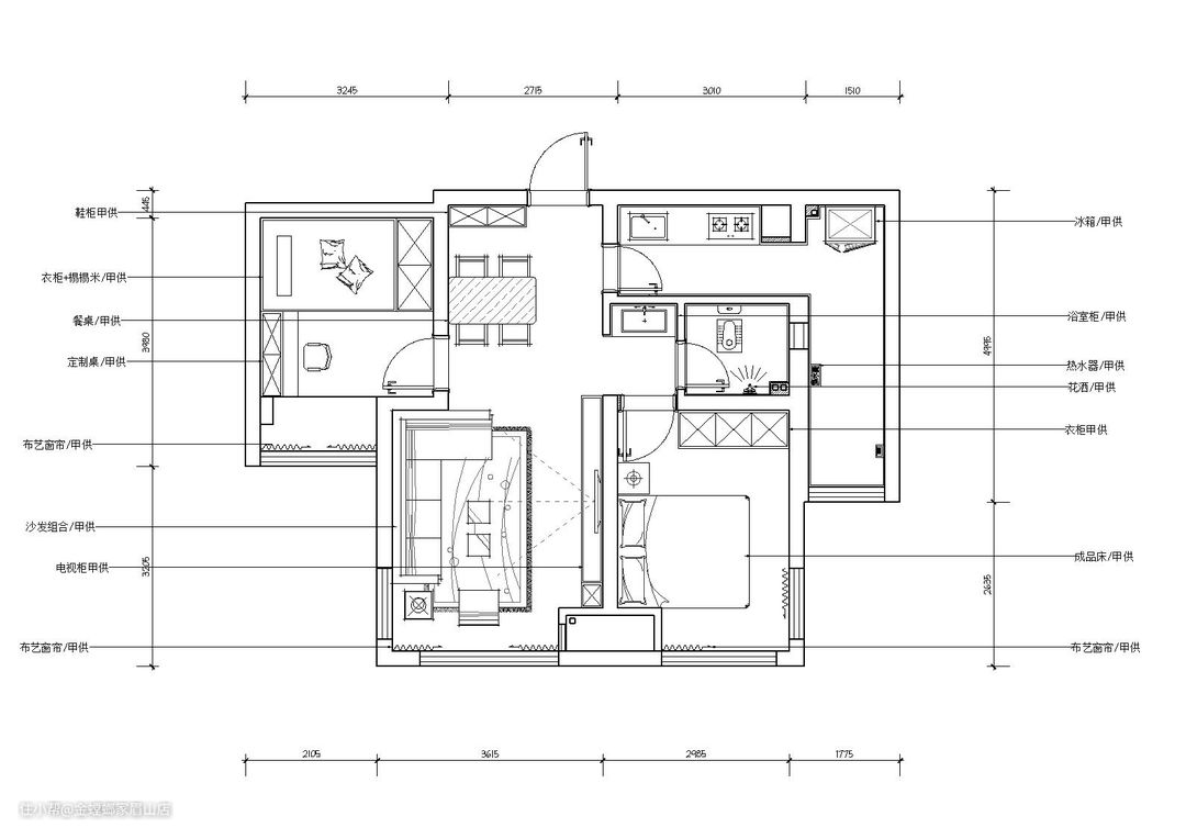
该户型为两室两厅一卫一厨户型,户型方正,厨房偏小

根据客户需求,保留两个房间,房间做榻榻米,公卫做干湿分离,厨房连通生活阳台。

该户型为现代风格,硬装上没有复杂的造型,做了一个乳胶漆分色处理,顶面做无主灯设计。

餐厅吊顶做无主灯设计,与客厅呼应
