三室两厅两卫一厨户型解析1
金螳螂家眉山店
2022-03-25
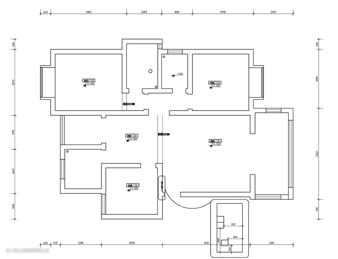
该户型为三室两厅两卫一厨户型,户型方正,厨房偏小,放不下冰箱

根据客户需求,保留三个房间,房间做榻榻米,生活阳台与厨房连通

该户型为现代风格,硬装上没有复杂的造型,做了一个乳胶漆分色处理,顶面作无主灯设计。

餐厅硬装上没有特别复杂的造型,主要以挂画,餐桌,灯具,来体现现代风格更好的与客厅相呼应。

金螳螂家眉山店
2022-03-25
该户型为三室两厅两卫一厨户型,户型方正,厨房偏小,放不下冰箱

根据客户需求,保留三个房间,房间做榻榻米,生活阳台与厨房连通

该户型为现代风格,硬装上没有复杂的造型,做了一个乳胶漆分色处理,顶面作无主灯设计。

餐厅硬装上没有特别复杂的造型,主要以挂画,餐桌,灯具,来体现现代风格更好的与客厅相呼应。
