广西贺州绿洲家园B26栋01户型——现代简约风
星艺装饰贺州分公司
2022-04-08
在各式各样的装修风格里面,现代总是散发着它独有的魅力。它给人一种时尚、年轻、活力的感觉,它最能够体现业主沉稳的性格和对未来美好生活的向往。
设计简介:
装修风格:现代简约风格
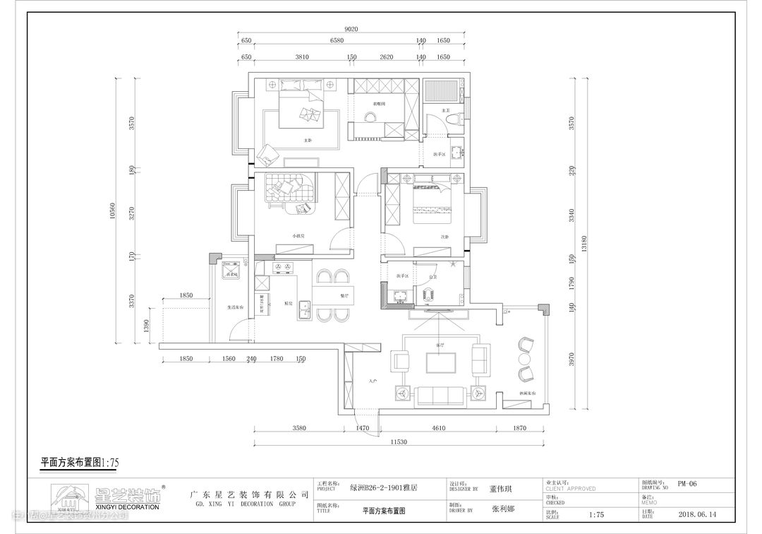
实际面积:112㎡
空间格局:3房2厅2卫
设计师:董伟琪
项目位置:绿洲家园
装修造价:半包预算费用9.58W

贺州绿洲家园B26栋01户型

贺州绿洲家园B26栋01户型

贺州绿洲家园B26栋01户型

贺州绿洲家园B26栋01户型
电视背景是一块白色的大理石,加上木方造型点缀,使大理石看上去不那么呆板,

贺州绿洲家园B26栋01户型
阳台作为一个开放式书房来使用,放置了一个成品的小书柜,方便放一些书籍。客户买了一个懒人沙发,休闲娱乐,学习都在这里了

贺州绿洲家园B26栋01户型

贺州绿洲家园B26栋01户型
厨房做了开放式的设计,原厨房太小了,平时也是比较少做饭,所以开放式厨房是最好的选择,增加的空间视觉效果,让狭小的餐厅,看起来比封闭式开阔了很多。

贺州绿洲家园B26栋01户型

贺州绿洲家园B26栋01户型
客厅的沙发是比较大的一种,似布非布的,也不知道是什么材质,但又不是皮。

贺州绿洲家园B26栋01户型

贺州绿洲家园B26栋01户型