别墅设计 | 建屋天著平面方案解析
高展别墅装饰
2022-06-08
现代风格的本质
不是几何
不是极简
现代风格是理性的构建
是对功能的理性的认知
是批判
是对传统的彻底的割裂
平面方案分析 Plane analysis
-1F The Basement


别墅作为多层空间,注定赋予生活更多可能。如果说地上空间是生活所需,那么,地下室则是生活的延展。奢阔的空间,满足更多元化的个性生活所需,缔造更为纯粹的私享世界。
负一层地下室相对比较潮湿阴暗,不适合设计卧室,设计影音室、娱乐室、茶室等休闲娱乐区则比较合适。
交付时地下室的采光和通风都是需要在后续必须要解决的问题,要将自然光引入地下室,也可利用灯光来辅助。通风可以采用机械通风,并且原始结构楼梯间较窄且作为车库入户处缺少鞋帽空间。


从车库进门,可以增加鞋帽空间,毕竟回家以后需要先卸下身上的“防备”,主要空间做多功能厅,可以是 影音室,也可以是 棋牌室,也可以是 会客厅,也可以是 茶室,这样能够提供专属的私人娱乐场所氛围。
1F The First Floor



第一种方案
由楼梯上一楼,在楼梯转角处增加端景台,会客厅 以开放式形式呈现,放置多人位沙发,在客厅对面增加操作岛台,汇合又散开,形成回游式动线。
厨房 作半开放式,用超白细边框长虹玻璃门作移门,透光不透人,在不下厨的时候把门完全敞开形成空间共享,家里显得更有烟火气。


第二种方案
实现 餐厨 开放式一体化,增加岛台和电器柜来弥补厨房的收纳空间。餐桌面和岛台操作面以岩板为主,比较好清理也耐磨,整体以深咖色系为主,延续现代简约风格,显得沉稳和有质感。
客厅 作为全家人共享空间,以沙发为分隔,放置主人喜欢的钢琴或者其他的兴趣爱好,也可以设立开放式书房。点睛之笔是整片的落地窗,摆放朝向可以按照客户需求来更改。
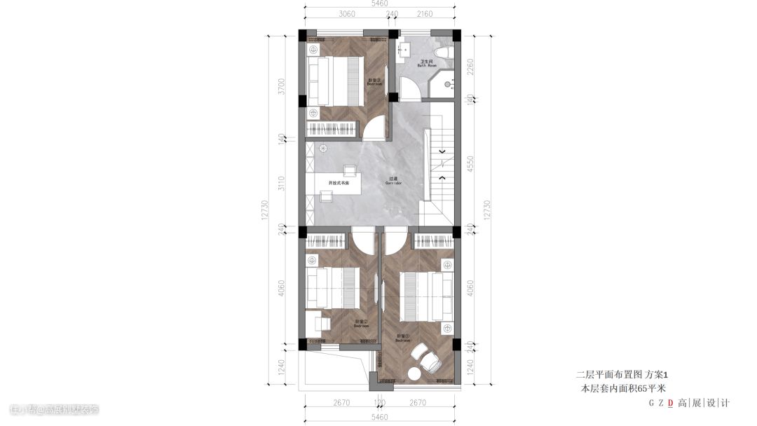
2F The Second Floor


第一种方案
此方案为三房,将过厅通过艺术分割作为开放空间与私密空间的缓冲,次卧稍大可以作为长辈套房,内含卫生间和衣帽间,有单独的生活空间。这层的卫生间呈对角,房间面积稍小的儿童房可以作悬空书桌,视觉上显得轻巧不厚重,功能上下方没有障碍使用起来也方便。


与第一种方案不同的是改变书房布置,作开放式书房,考虑到陪伴与互动的重要性,父母与孩子共处之间的互动与陪伴是孩子成长的必经阶段,父母既是孩子成长的陪伴者同样也是监督者,家庭生活场景的互动也尤其重要。



第二种方案
两个独立的套房+开放式书房设计,弹性隔断,即视使用需要而打开“两空间结合为大空间或关闭两者区分为两空间”。将卧室和书房空间完美的分开,才能让每个空间各司其职。
卧室主要以摆件来强调其性格爱好,以深色系为主,整体以简约为基调。
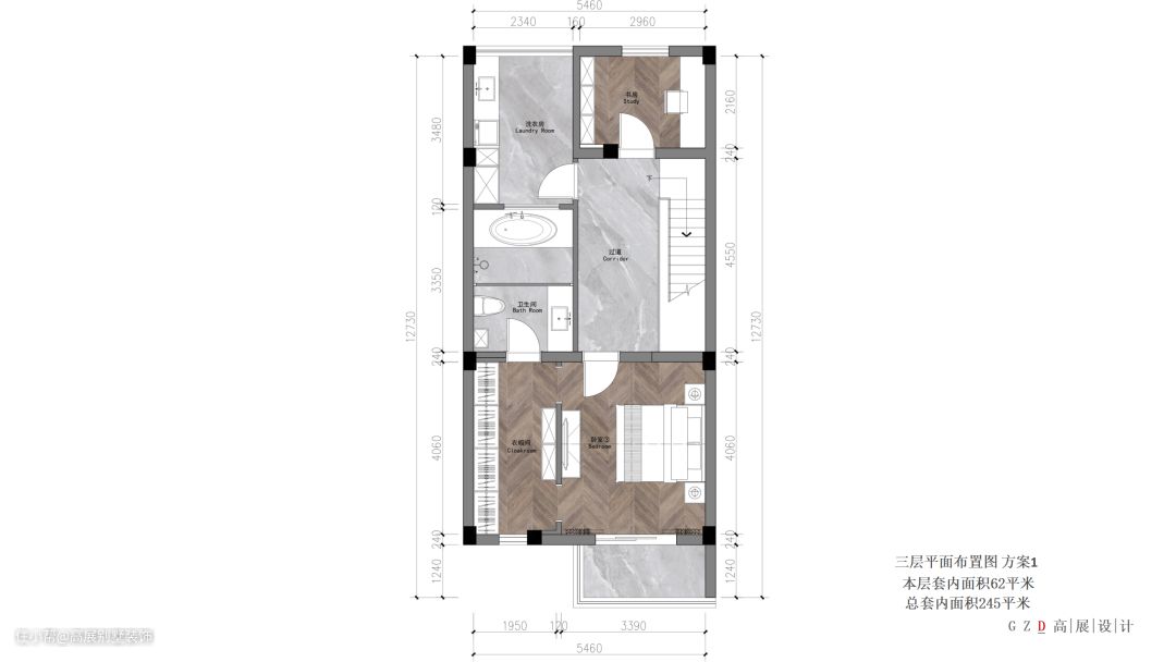
3F The Third Floor

第一种方案
作为套房,亮点在于空中花园。是室内与室外的模糊界限,从开阔空间步入私密空间,将阳台外扩,用来增加房子的空间感和光线感。将整个室外花园与室内空间融为一体。天晴的时候可以将移门全部拉开,打开之后室内和花园是可以完全融合的,也可以偶尔开个party。
将套房设计成酒店式也是一个很好的选择,房间里面有起居室、睡眠区、衣帽间、卫浴间。

第二种方案
选择将花园改成卧室,不同的居住空间有不同的睡眠体验,并且选择榻榻米可以让小空间的空间利用更加透彻,在结合书桌或收纳柜的组合设计,可以让小空间显得更加合理实用。


第三种方案
在主卧套房对面增加单独的书房,由动到静,书房是为个人而设的私人天地,更像是一个人的自我写照,因为一个人的爱好、个性、习惯、品味、专长都彻底地浮现在书房里面。
书房对面设立洗衣房,U型作为洗衣房,操作和拿取都很方便。并且适合大家庭去使用,并且增加单独的工作台。“就风格而言,简约始终是第一要务,但现代洗衣房正在变成与家里的其他地方一样的空间。”