没有父母参与设计的家是这样的!
美客斯设计事务所
2022-06-08
坐标:南京·龙池
这次屋主是90后小夫妻,装修几套房子都被父母干涉,这次找到我们,坚决没有长辈参与,133m²轻奢风一次过稿。
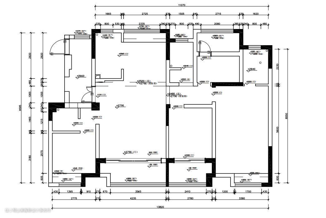
我们先来看下原始结构图:

小夫妻主诉求:空间感要无限放大;风格嘛,低调且奢华。
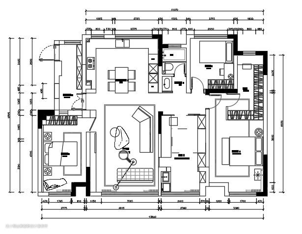
OK!安排~平面方案→→→

沟通概念方案,意向低调且奢华。效果呈现,一次过稿!


本案整个空间强调功能性,强调结构和形式的完整,追求材料,色彩,空间的表现深度与精确度。


整个空间以淡雅的中性色为主色调,硬装上采用极简的大块面设计手法,大面积温润的浅灰色元素和岩板搭配很有温馨自然感,显得更加精致有质感。
本案设计师:沈火火
从业时间:9年
擅长风格:轻奢,复古,法式