舍主卫换衣帽间?岛台鞋柜合二为一?让空间变大10倍
致美优家全案家具软装
2022-06-17
设计师拿到一个户型要怎么和住户需求结合在一起?同一个户型不同居住人数如何靠设计来解决?小区户型分析栏目的第⑥期,仍旧是位于双流区的葛洲坝紫郡兰园。
上个月小U分析了葛洲坝A4和C2两种户型,本期也同样以它们为主角,不过在设计上却大有不同。舍弃主卫?套四改套三?2个户型4套方案?来看看设计师吕涛和王欣月是如何开脑洞,全方位KO.“葛洲坝紫郡兰园”的户型难点。
01.葛洲坝紫郡兰园 A4户型
外框面积:96㎡
小区户型:3室2厅2卫

本案设计师 吕涛

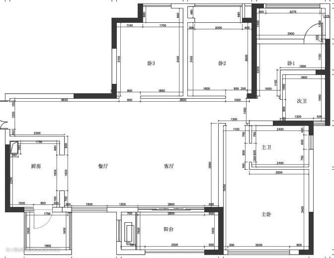
△原始结构图
原始户型设计难点:
①玄关通道窄,设计鞋柜显拥挤,客/餐厅也没有为鞋柜预留合适的区域;
②厨房面积小且与生活阳台完全隔开,没有门洞通往生活阳台,设计不合理;
③原户型主卧宽度仅3米左右,摆放1.8米大床会略显拥挤,且无法规划衣柜。
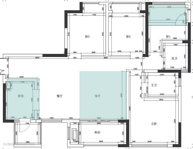
Plan A:舍弃主卫,改为衣帽间


△平面布局图1
针对原始户型中的缺陷,设计师重点从墙体改拆上入手,对厨房、主卧、次卫3处墙体进行打拆,让每个空间都能拥有更为合理的布局。


△改造后
针对户型设计难点①:将厨房左侧墙体拆除设计为岛台,并在岛台下方嵌入鞋柜,解决鞋柜无空间的问题,也从视觉上为厨房扩容;
针对户型设计难点②:打掉次卫与生活阳台间的部分墙体,利用隔帘为生活阳台新增一个“假门”;
针对户型设计难点③:把主卫与主卧间的墙体敲除,舍弃主卫将其改造成衣帽间,增加主卧面积。

△厨房&餐厅效果图
将厨房与玄关处的墙体拆除后,设计师在原地顺势打造了一个西式岛台,不足1平方米的岛台却兼具了3种功能:一是减轻小厨房压力,打造半开放式厨房;二是岛台下方设计鞋柜提供收纳;三是半高设计为厨房引入更多光线,增加厨房通透感。

△餐客厅效果图
而在紧靠着厨房的就餐区域,设计师为业主定制了半高餐边柜,解决餐厅收纳的同时,也起到为厨房储物补充空间的作用。



△客厅效果图
不同于餐厅的重功能,客厅的重点在于休闲氛围的营造,摒弃了客厅放电视的传统设计,利用投影仪、布艺沙发、细脚茶几等软装为屋主打造一个舒适的观影空间。
Plan B:推移墙体,为主卧“扩容”


△主卧改造后
改造点:
①原始户型中主卧与主卫间的墙体为24墙,将其拆除后并新增墙体,缩小卫生间面积为主卧扩容;
②偷出来的空间,设计师沿墙设计了整面衣柜与开放格,解决主卧的收纳问题。
相比Plan A的主卧改造方案,Plan B 保留了主卫,通过把墙体拆除、推移来扩大主卧面积,为1.8大床和柜体赢取更为充裕的设计空间,又可避免了多人居住导致卫生间供不应求的问题。
02.葛洲坝紫郡兰园 C2户型
外框面积:118㎡
小区户型:4室2厅2卫

本案设计师 王欣月

△原始户型图
户型亮点:整个户型双面采光对角通风,干湿分区、动静分明,本身优势和可改动性大。
原始户型设计难点:
①客餐厅是横厅结构,沙发背后无靠山(中国人有这样的习惯)如何去解决?电视墙位置应设计在何处?
②厨房与生活阳台完全隔开、客厅和阳台之间的玻璃门影响采光,需重新设计;
③次卧内有隔墙,规划不合理导致次卧原使用面积过小。
Plan A:满足5口之家的生活方式
由于原始户型方正,整体布局也比较合理,基于其优点设计师并未做太多改动,主要拆除了3处隔墙来重新规划。


△改造后
针对户型设计难点①:摒弃“沙发靠山”的习惯,在客厅与主卧间的墙体设计电视墙,让电视背景墙与沙发区的关系更为通透开明;
针对户型设计难点②:将厨房与生活阳台间的墙体打掉,增加空间利用率,同时敲除客厅与阳台间的墙体,扩大客厅;
针对户型设计难点③:把次卧中的隔墙拆除,为次卧的增加使用面积。
方案A的衍生较适用于5口之家的居住生活,尤其是对于墙体改动不大、预算会相对能够把控的业主而言,是最贴合的改造方式。而后期也可以通过色彩、软装的搭配来提升空间美感。

△平面布置图1
拆除原始中厨房中的部分墙体改为操作台,并把鞋柜考虑在操作台下,容积2*1m的半高柜足够储藏一家人的鞋物。这样设计的妙处在于,整体鞋柜和操作台的收纳利用率高,取消掉的墙体也会让进门后的采光更为通透。
在观景阳台上,则是敲除了客厅与阳台间的玻璃隔断,并在阳台区设计书房,加强空间的可塑性,也保留了4个常住房间。
Plan B:改善型3口之家的居住空间
与方案A相比,方案B的设计更侧重于舒适性的打造,厨房、阳台、次卫多出墙体的打拆,为提高房屋四居质感奠定基础,适合改善型三口之家。

△平面布置图2
改造点:
①将厨房多面墙体拆除,仅保留开放式厨房所需墙体,并和餐厅划为同一区域,增强空间连接性与通透感;
②在客餐厅之间增加一面半高墙体,既可以用于安装电视,也起到了明确划分餐厅与客厅的作用;
③将次卧与次卫间的墙体向后推移,在满足次卫基本所需的面积下,为次卧偷得更多空间;
④改移主卧与客厅间的部分墙体,让主卧储物区向客厅借空间,增强主卧收纳空间。

△厨房&餐厅效果图
厨房改为开放式后,其空间面积在视觉上也扩大了不少,这种设计方式也更适合对家有聚会需求、喜油烟不大的西式化饮食家庭。


△客厅效果图
客厅区域采用餐桌与电视柜结合的方式,保留沙发靠墙的传统设计,同时新增半高墙体,让客/餐厅两个功能区域划分明显,保持相对独立。

△客厅&书房效果

△书房效果图
将书房挪动至客厅区,为活动公共区扩大视觉,黑框玻璃推拉门的设计,既不影响客厅与书房的采光,也让屋主有了一个“封闭性”的工作区。


△主卧效果图
主卧的重点改造部分在于将部分墙体向客厅推移,并在进门右方设置一面通顶的衣柜作为卧室收纳的主力。

△主卧效果图
同时,将洗漱台外置让卫生间干湿分离更彻底,这样设计不仅能让卫生间更加宽敞,还能避免多人使用卫生间的尴尬。
好的设计,是要在住宅功能与屋主需求中找寻平衡点,解决户型bug的同时,为业主“量身定制”属于TA的理想·家。