超好用的奶油色U型厨房设计分享
FOTILE方太
2022-07-26
屋主年龄:90后
屋主职业:自媒体生活博主
屋主简介:菜菜是一个热爱生活的料理小能手,也喜欢高颜值且设计感较强的小物,会将自己对设计的理解融入生活。
菜菜和丈夫在搬新家之际决定好好将屋子打造成自己喜爱的样子,精心设计的衣帽间,连通阳台的卧室,这些都是他们对生活的再创作。厨房则是他们寄托生活梦想的主要阵地,选一个喜爱的颜色和一套实用的厨电,然后开始他们幸福的生活。
厨房信息
厨房面积:7㎡
厨房户型:U型 | 封闭式
城市坐标:西安
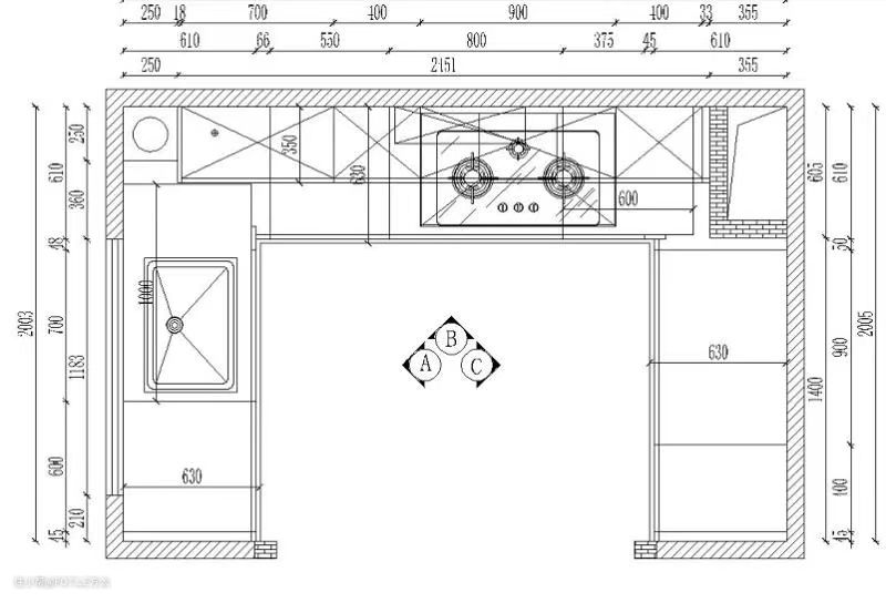
厨房户型图:

经典且高效的U型结构厨房,清洗、备料、烹饪、储藏,整个动线以中间为核心展开,条理清晰。一排吊柜和地柜加上部分拉篮,满足物品数量不多的收纳需求。
厨房需求/生活态度
♦ 希望厨房风格是带有仙气的奶油白,这样下厨的时候也可以保持美丽好心情
♦ 厨房的布局要符合正常下厨的操作顺序,不喜欢把时间浪费在反复回头或找东西上面
♦ 喜欢好厨电。厨电的质量不仅能决定料理的水平,还能有效改善厨房环境。

厨房也复古,上世纪的“奶油白”
如果你还对上世纪的居家装修有些印象的话,当年奶油白是被大量用在室内家具上的,这个颜色饱和度不高,十分百搭。颜色上清爽,质地上醇厚,属于一年四季都看不厌的万能色。
但是很少有人会将这种白运用在厨房里,主要原因还是怕它不耐脏,其实在厨房大面积使用白色正是让厨房看起来清新的秘诀,如果能结合吸油烟效果好的油烟机和及时清洁,奶油白也不失为当代厨房复古潮的先锋选择。

菜菜在她新家的厨房里就大胆选择了奶油白的橱柜搭配白色石英石的地面与墙面,碰撞出可爱又不失个性的厨房调性。金属边框的玻璃移门增加了这个空间的高级感,也让油烟最大程度不要飘散到厨房之外的地方。
黑色镜面质感的方太油烟机和灶台更好的定位了厨房的核心区域,让整个空间都能围绕这个地方展开。
合理动线,是“行云流水”的前提
下厨有可能行云流水吗?只要规划出合理的动线,即便是料理新手也能以最高的效率体验下厨快感。
原本U型的厨房结构,以最大效率利用了厨房空间。从进门左手边的清洗、备料、烹饪,再到右手边的储藏区和小家电区,整个动线锁定出了一条完美路径,习惯了之后利用“肌肉记忆”都能快速做出料理。

打造厨房的唯一标准就是:好用
有了这样一个高颜值的厨房,无论谁都会想在这里料理一下。菜菜也基本一日三餐不落,都在这个厨房里烹饪自己和家人喜爱的美食,对于厨具,除了会选择一些基本颜色之外,其唯一标准就是好用。
从吊柜开始,菜菜发现许多人的吊柜利用率不高,于是选择了吊柜拉篮来增加收纳空间和使用体验;挥一挥手就可感应开启的油烟机,让菜菜体验到了仙女下厨的优雅乐趣;水槽选的灰色花岗岩的大单盆,可以轻松放下整个锅具进行清洗。

菜菜力气小,起锅盛放料理的时候偶尔会不小心洒一些汤汁在灶台上,新灶具的聚能环能接住这些汤汁不让它四处流淌,也让爱干净的菜菜心生满意。
在厨房,好用的往往也是好看的,菜菜按照这个原则为自己打造了实用与美兼具的美食小天地。夫妇二人都在这个喜爱的空间里,不断烹饪属于自己口味的料理,让生活充满幸福的烟火气。
