100平爆改,两房变三房,一卫变两卫。
宗前空间设计
2022-07-30

案例背景:
业主为一对夫妻,原户型为两房结构。但是考虑到后期孩子小需要父母照顾想改为三房,另外想要多一个卫生间,这样后期家里人口多的话,更好的方便使用。户型原有为南北通透的户型,希望户型设计不要影响到整体的通透采光。


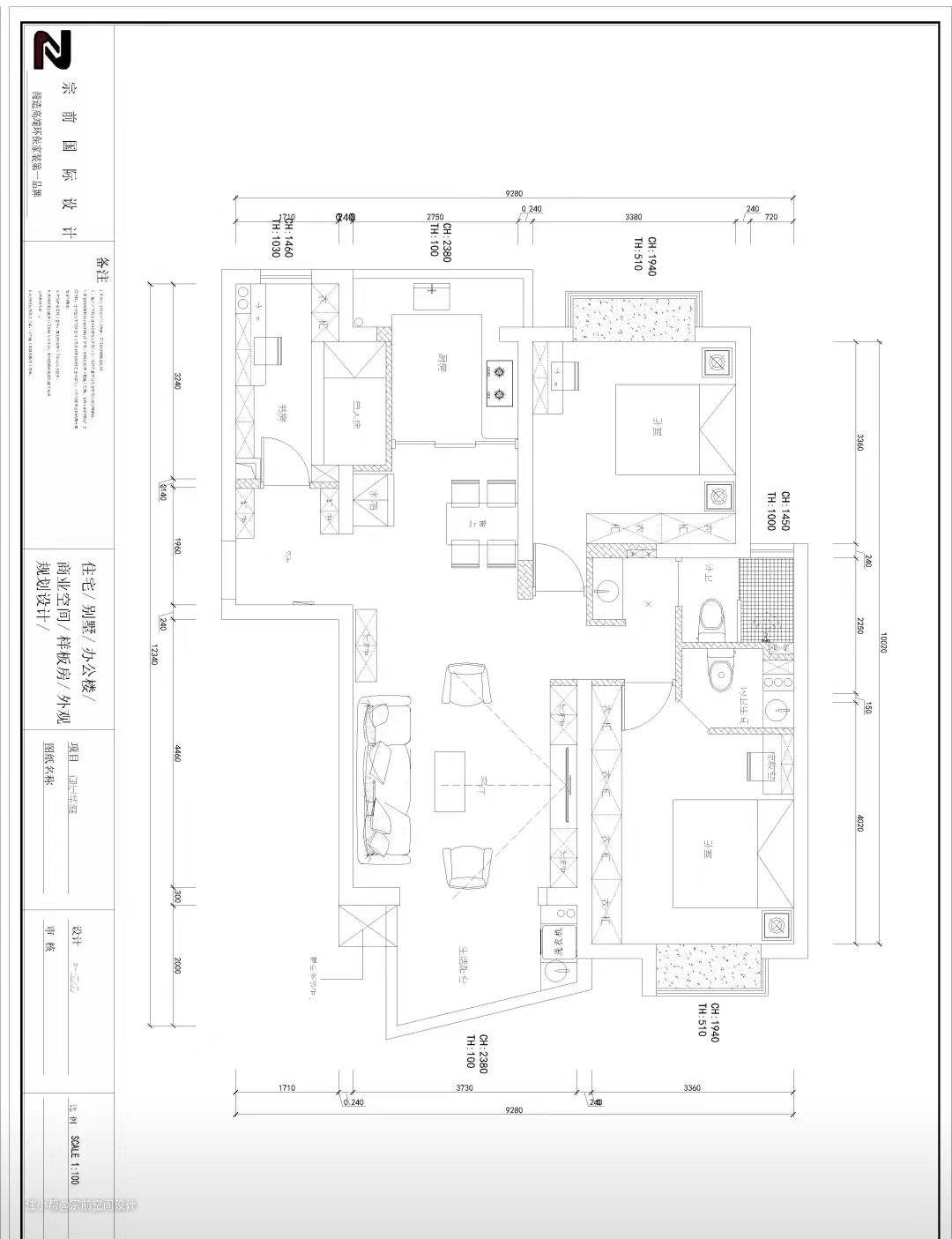
户型改造:
原有户型为南北通透两居户型,户型结构为框架结构。原有户型的通透采光很好。户型在厨房,阳台和卫生间处做了改动。
玄关


进门做了入户玄关,原有直角门梁做了拱门型设计。玄关位置做了储物和换鞋空间。挂衣区和出门镜使用更加的便利。
客厅


客厅空间保留了原有的空间,整体背景没有做过多的装饰,小面积的图型拼色让空间设计感十足。


客餐厅空间之间为开放式设计,原走道空间完美利用。没有灯光做了无主灯分体式辅助灯光设计,设计通顶门整体感更好,显层高。
餐厅

餐厅空间位于进厨房门口位置,这样使用更加方便,生活动线流畅。
厨房

厨房空间做了改动,原有北阳台位置做了厨房空间。整体橱柜格局做了U型设计。封闭式移门设计,在保证通风采光的前提下可以兼顾厨房操作时的油盐问题。
卧室

原厨房区域改做成书房,多功能房空间可以兼顾学习和客房的功能。
卫生间


卫生间在原有的一个卫生间的基础上改为了两个卫生间和干湿分离。多改的卫生间功能兼顾马桶和浴室柜的功能。
设计团队:总监设计师相远远老师,喜欢的宝宝可以私信指定这位老师哦~
上海宗前空间设计,更多装修案例请点击“主页访问”来解锁获取哦~