看完他们家34㎡老房改造,我决定把“老破小”列入买房的首选项
甜茶的极简生活
2022-08-19
那些曾被大家看不上的“老破小”,却在装修改造之后完美逆袭成理想家!
“老破小”带给我们的惊喜,远比新房要多得多。
在预算有限的情况下,人们往往需要在郊区的“远大新”和市区的“老破小”之间做抉择。而对于大部分年轻人来说,每天多睡一个小时的懒觉、有繁华商圈和便利交通的围绕,远比住大房子要更舒服。
本期要为大家分享的这对北京夫妻,就做了同样的选择。他们在北京中心地段,买了一套34㎡的老房,改造前的房子真的可以用“不忍直视”四个字来概括。不过夫妻俩很有眼光,他们透过老房的破旧,看到的是一片繁华,并秉承不将就的理念,对房子做了改造。话不多说,赶快来一起参观下他们的新家吧!

▲改造前实拍图
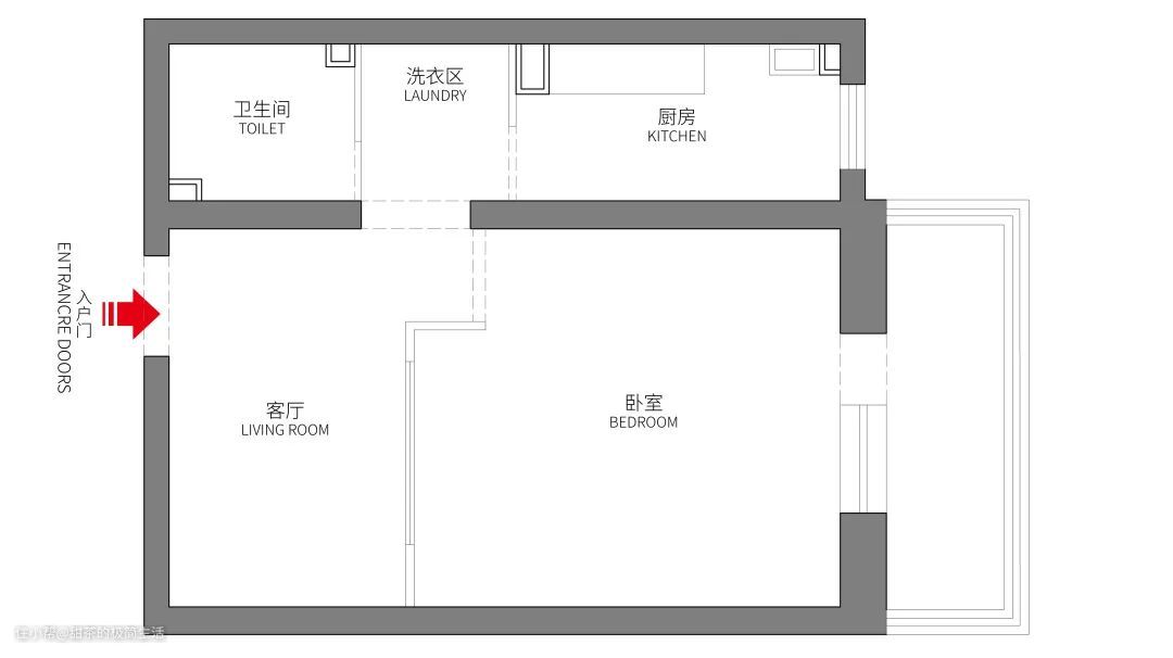
//户型分析//
①整屋套内面积约34㎡,一室一厅,格局方正。
②朝南的户型,有一个南向大阳台,采光不错。
③老房子比较注重居住功能,所以卧室大、客餐厅小,但不太适合现代家庭的生活需求。

▲户型平面图
//设计亮点//
①入户玄关定制满墙收纳柜,地面用六边形小砖做落尘区。
②调整客厅和卧室的空间占比,让客餐厅的面积变得更加合理。
③在阳台设置洗衣区和琴房,将原户型中的洗衣区改为卫生间的干区洗手台。

▲装修平面图
屋内的装修风格比较简约,白色、牛油果绿色和木色贯穿每个房间,再融入拱门元素和玻璃砖,从视觉上消除了拥挤感,让小房子也能有通透敞亮的感觉。

▲装修实拍图
玄关
入户空间有限,做不了独立玄关,为了保证公共区域的收纳需求,屋主在进门后的左手边,定制了一面顶天立地的储物柜。
- 柜子顶部连接着空调的出风口,不仅避免了落灰,视觉感也更加整洁。
- 柜体底部和中间区域做了留空处理,“有藏有露”的布局,让柜子的功能也变得丰富起来;底部悬空的部分可收纳常穿的鞋子,中间留空区则用来放置屋主的钱包、钥匙。

▲玄关实拍图
值得一提的是,玄关柜的侧面,还藏着“小惊喜”——手办展示柜。
柜内整齐摆放着屋主夫妻的手办收藏,玻璃柜门搭配感应灯带,让爱好成为装饰生活的一部分。

▲玄关实拍图
客厅
客厅墙面原本是要全部刷奶油白色乳胶漆,但屋主担心会过于单调,于是便将背景墙替换成了牛油果绿色,效果居然出乎意料的好。
背景墙的中间,是一扇由玻璃砖砌成的室内窗,替换了原来的窗户,不仅颜值更高、更透亮,而且隔音效果也更好。

▲客厅实拍图
虽然改造之后的客厅,面积得到了提升,但整体空间依然不算大。
- 为了不影响空间感,屋主在挑选家具时,尽量做到“量身定制”,像沙发的尺寸就刚刚好与墙面持平,长度不多不少。
- 茶几是“玻璃面板+银色细腿”的造型,梨形桌面设计,视觉感很轻盈,不会压积空间感。

▲客厅实拍图
电视机悬挂在白墙的中间,电线和插座则隐藏在其后,视觉感更加整洁。
复古风电视柜和落地盆栽,为客厅增添了一份自然又浪漫的氛围感。

▲客厅实拍图
关于屋主家细节的设计,也很值得被夸赞:
- 客厅的角落里刚好放下一个转角柜,复古风壁灯点亮了这个区域,可作为一个迷你吧台。
- 姜黄色的沙发搭配云朵抱枕和蘑菇落地灯,效果可可爱爱。
- 装饰画直接落地摆放,不仅有艺术感,而且不会损伤墙面。

▲客厅实拍图
卧室
打开客厅沙发左侧的门,便来到了卧室。
老房子最大的问题,就是隔音做得不够好。为了改善这一点,屋主特意将室内门、窗子都换成了静音款式的,晚上睡觉关门关窗,还是可以拥有一个相对安静的睡眠环境。

▲卧室实拍图
卧室的主色调是奶油白色,相较于客厅会更舒缓一些;室内灯光的色温,则控制在3000k的暖光灯,柔和不刺眼。

▲卧室实拍图
床的对面墙壁,定制了嵌入式大衣柜,搭配白色按压式柜门,效果简洁又大气。

▲卧室实拍图
- 特别喜欢屋主家的床头靠背,造型很像一个长长的饼干,手感软绵绵的,靠在上面非常舒服。
- 屋主很注重生活的仪式感,会根据季节的变换,来更换床品的颜色,让家居时刻充满着新鲜与活力。

▲卧室实拍图
在卧室这个角度去看玻璃砖,晶莹剔透,也太清爽了吧!

▲卧室实拍图
屋主取消了床头柜的配置,腾出空间摆放书桌和五斗柜,功能更加丰富。

▲卧室实拍图
阳台
阳台设置了清洗区和晾晒区,右侧还定制了顶天立地的储物柜,完美安排下了洗衣机和烘干机。
女主爱好音乐,她把心爱的电钢也放在了阳台,平时都是带着耳机练琴,不用担心会扰民哦!

▲阳台实拍图
厨房
在文章开头的图片里,我们也展示了厨房的原貌,不仅装修很破旧,而且墙面上有很多管道,强迫症看了大呼不适。
- 屋主通过橱柜设计,把管道全部“藏”了起来,视觉感整洁又清爽。
- 地面铺白绿相间的小花砖,搭配白色橱柜,干干净净的小厨房用起来就是舒服啊!

▲厨房实拍图
卫生间
卫生间的干区洗手台,挪到了原户型中洗衣区的位置,并用牛油果绿色瓷砖打底,地面铺厨房同款瓷砖,若用两个字概括就是:漂亮!
淋浴区和马桶之间用透明玻璃做隔断,背景墙铺贴了马赛克彩砖,提升了空间的层次感。

▲卫生间实拍图
【本期总结】
对于长辈来说,可能会很不解年轻人为什么钟爱“老破小”。但事实上,正是因为年轻人懂得自己的真正需求,才会百里挑一选中“老破小”。就像本期屋主夫妻这样,收获了一套小巧却心仪的家,即使不出门,也能拥有幸福的时光,这就足够了!如果你也喜欢本期内容,欢迎点赞收藏!
想了解更多精彩内容,快来关注甜茶的极简生活