90㎡高级灰调与拼接设计,舒适又美观
上海禧鑫装饰
2022-08-31
【导语】本案常住三口人,偶尔会接长辈过来小住几天。夫妇俩的儿子已经上大学,所以次卧里做了书桌衣柜一体化设计。他们希望家里简单感觉,有色彩点缀,有较大的储物空间。


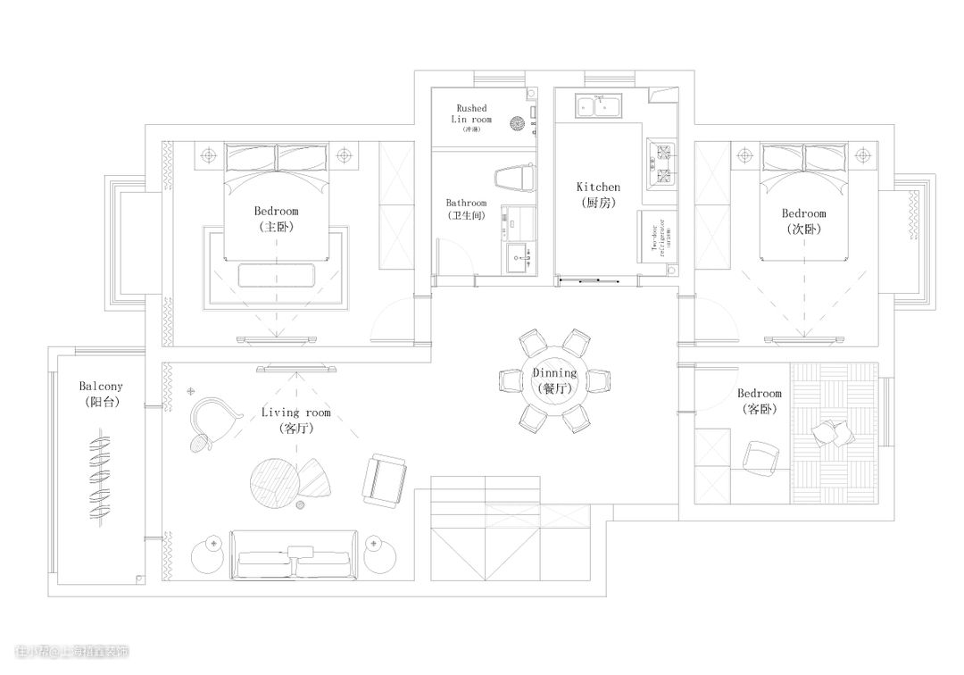
▲平面图

【客厅】窗外的光线透过纱帘涌入客厅,经过灰色的地砖与大理石护墙板的折射后,更显明亮通透。大理石后是格栅,旁边接上了一个开放式储物柜,下方是白色及地收纳柜。黑与白交错,简约感油然而生。

【客厅】微水泥背景墙自然纯粹,以三幅现代挂画点缀,增添艺术气息。灰色与雾霭蓝拼接的地毯上,L形沙发利用了拐角位置,棉麻材质触感柔软,舒适感拉满。

【餐厅】餐厅设置在厨房外,与客厅、厨房的距离都是最短的。金属支架撑起岩板餐桌,能够满足6人同时用餐,餐椅无扶手,更加自在舒适。


【厨房】厨房采用灰色大理石砖铺贴,耐脏且容易清洁。白色岩板料理台设计成L字形,通过合理地布局,能够让下厨者的动线越加流畅。上下的橱柜皆采刷白漆,无把手设计轻简自然。

【主卧】主卧以高级灰为主色调,护墙板拼接半高的栅栏,纵向线条从视觉上拉高了层高。一整面的衣柜采用无把手设计,中间部分做了玻璃柜门,金属边框带来了轻奢的气息。

【次卧】这个次卧是给上大学的孩子准备的,以白色为主,半高的玻璃窗提供极佳的采光和通风。因为空间不是很大,所以采用书桌+衣柜+榻榻米一体化设计,留出足够的活动空间。

【次卧】次卧是给老人居住的,绿色的乳胶漆墙面搭配绿意盎然的挂画,清新又宜人。两侧床头柜上摆放绿植和台灯,方便起夜。飘窗铺上软垫,或坐或躺都很舒适。

【卫生间】卫生间采用经典的白色调,凭借着镜面、玻璃等材质的特性,看让空间更宽敞透亮。镜柜下是洗手台,台下储物和洗衣机并列,洗完澡后就可以将旧衣放到洗衣机清洗。