为什么要找设计师设计户型?
弥高空间设计
2023-02-27
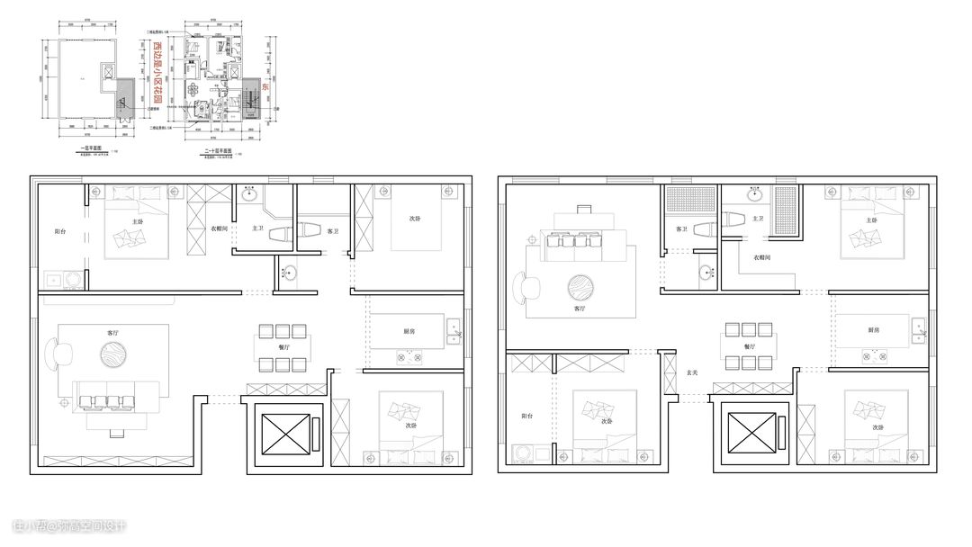
什么是户型图?

户型图就是设计师常说的平面空间布置图,通过户型图,我们可以快速的知道各个空间的使用功能、相应位置、大小朝向、通风采光等信息。它是我们前期买房和后期装修的重要参考。

2. 为什么要找设计师设计户型
首先,平面方案设计是室内设计的第一步,也是空间布局的基础,它直接影响到后期装修时的水电,吊顶走向,以及摆放的家具尺寸和位置。所以请专业的设计师设计是非常必要的。

第二,很多开发商为了卖房时显得空间通透,户型图中的家具比例往往会缩小,不能真实反映空间情况。所以需要专业的设计师去设计,了解我家的卧室放了1.8米床后,衣柜门还能不能打开,还能不能再放个梳妆台。

第三,好的空间布局设计能为家庭节省出很多空间。因为每一个屋主的需求都不一样,所以设计并不是简单的模仿,我们的设计师会根据屋主的真实需求,合理的规划每一寸空间。在房价很高的城市,我们设计师帮助客户节省出3个平方,省出5万多个w,也是很轻松的事。

过往的案例中,35平方设计出2室两厅,45平方设计出28平方储物空间,140平设计出200平的通透感也都是可以实现的。

所以,找专业的设计师设计户型,肯定是省时,省力,又省钱的。

最后,最重要的一点,好的设计肯定不是免费的。
我们也同样拒绝白嫖方案,屋主尊重我们的设计,我们也会不负您每一平方的期待。