75㎡2居室,简约个性,雅致宁静
一米整家丨整家定制馆
2023-06-29
房屋信息
小区地址:中山西小榄龙光玖誉湾
面积:75㎡
居室类型:两室两厅一厨一卫
初始状态:毛坯
装修形式:全包
装修预算:16W
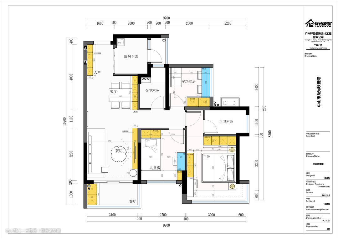
户型图:

装修需求:
1. 喜欢偏现代,带点原木调,白色为主的较简约风格,自家居住装修要实用。
2. 客厅阳台比较大,想要充分利用起来。
3. 生活用品较多,收纳功能要好,达到不同的收纳要求。
4. 卫生间要做干湿分离,贴砖上墙。
设计亮点:
1. 设计以现代简约风为主,白色为主基调,原木色为辅来装修整屋,简约大气的整体环境。
2. 客厅阳台定制了到顶阳台柜,放置洗衣机,还在阳台上晾晒衣物,充分利用阳台空间。
3. 多个空间定做了各种类型的收纳柜满足不同存储需求,收纳性能发挥良好。
4. 卫生间选用钢化玻璃外拉门进行干湿分离,整个卫生间都贴砖上墙,耐脏好清理,环境清爽。
方案解析:
业主是一对90后小夫妻,还有一个非常可爱的孩子,简单温馨的一家。户型比较小,所以装修不喜欢过于华丽,选择了现在比较流行的现代简约风格,大体以白色为主,原木为辅。家居没有选复杂造型的,大都以简单的线条构成。各空间定制了比较多的收纳柜满足日常的存储需求,非常的实用,把空间的功能发挥到最大。卫生间做干湿分离,目的是为了营造舒适美观的居住环境。
玄关:

玄关是一进家门口的第一道风景线。左边做了收纳型玄关柜,中间做开放格,上下做无拉手收纳柜,底部留空20公分左右放日常鞋子,兼顾美观与储物。

白色的主柜体,原木色做点缀,玄关柜一直延伸到餐厅位置,和餐边柜连接到一起,中间做了嵌入式悬挂柜作为连接点。不同于以往的柜子定制,非常有清新感且耐看。
客厅:

放眼望去,回型吊顶加主灯设计,简约耐看不容易过时,视觉上拉高层高,空间更加开阔。全屋大白墙,白色折射光源,显得空间更通透明亮。

客厅家居选用三人位+单座现代简约头层牛皮沙发,高挑的落地脚,轻奢配色,精致的走线,简单利落的设计,不加额外的装饰,保留原始肌理有质感,皆在追求纯粹的舒适轻松。

定制满墙电视柜,收纳力满分,摆脱客厅杂乱无章的烦恼。左边搭配玻璃门,储存能力强又不压抑。为柜式空调预留位置,将空调“藏”起来,客厅更干净整洁。为电视预留位置,尺寸可自由定制,适配各种尺寸的电视。
阳台:

阳台和客厅用断桥铝合金玻璃做推拉门隔断,隔音效果比较好,材料厚实坚固耐用。装上透光性好的帘子,客厅通风采光问题都可以解决,让客厅更加明亮温暖。

阳台定制白色简约太空铝合阳台洗衣柜、洗衣槽加一体阳台收纳柜,材质防晒防水,洗衣收纳两不误,非常的耐用时尚好看。
餐厅:

简单的白墙,墙的拐角处定制合适的尺寸餐桌用做餐厅位置,选用传统的四人桌,餐客无隔断,家人之间互动性加强。

内嵌式餐边柜连接玄关柜为一体,到顶的设计方便清理打扫。玻璃收纳柜和封闭柜坐落有致,让用餐更显格调。开放格可摆放日常用品。

白色现代简约创意飞碟吊灯,不易过时的高颜值,磨砂灯体非常有质感,灯光照射在大理石餐桌上非常明亮,实现更好的用餐体验。
厨房:

厨房呈“U”型布局,拿、备、洗、切、炒动线非常流畅,做饭的幸福感瞬间UP!小射灯加上窗户透进来的光,工作环境更加明亮。

枪灰色奢华简约一体式双槽水槽,分区洗涤,更省空间易打理,非常的厚实耐用。安装悬挂式燃气热水器,节省了厨房空间。

橱柜呈“U”型布局,不浪费每一寸空间,全封闭式柜门让视觉更加纯净。吊柜搭配嵌入式电器,节省空间的同时,也比较美观。
卧室:

主卧家居贴近飘窗摆放,化繁为简,没有做床头柜。奶白色为主基调,花瓣形主灯照射和透过大飘窗洒进来的光线叠加,房间更加的通透明亮宽敞。

到顶的定制衣柜,叠加顶柜搭配,高低分区,更好地利用纵向空间,不浪费,轻松容纳两个人的衣物和配饰。

合理利用大飘窗,连接定制了收纳和梳妆台一体的收纳柜,到顶设计不易落灰。集多种功能一体的飘窗非常美观实用不浪费。
儿童房:

儿童房面积较小,家居贴墙竖直摆放,没有设置床头柜,节省空间且安全系数更高。

利用飘窗角落位置,充分利用空间,书桌柜一体式设计,实现多功能分区,多元素储物科学分区,整洁不凌乱,物品分类归纳,提高学习效率,日常衣物\书籍随手可拿。白色的內帘透光性很好,使得房间明亮但不会刺眼,营造良好舒适的学习环境。

叠加顶柜的衣柜和飘窗“L”型书桌完美连接,感官上的原始简洁感受,形成靓丽的风景线。纯净的白色搭配质朴的木色,时尚简约,与户型匹配度高。
卫生间:

卫生间大砖通铺,地砖和墙砖选用灰色花纹瓷砖,非常耐脏好清理。选用透明钢化玻璃外开门将淋浴区和洗漱区、马桶进行功能分区,减少凌乱感和增加美感,还能将淋浴的水汽隔断在淋浴区内,减少其它区域被打湿的程度,防潮性会更好。

洗手盆做抬高设计,日常使用方便,大理石花纹台面好清理。悬挂镜子设计供日常使用,洗手盆下做了双开门收纳柜,原木质朴的色调更加的柔和,实用且颜值在线。侧边设计嵌入式开放格,方便放置物品。

淋浴区地面做窄长条纹瓷砖,可以防止淋浴打滑,安全性更高。透过玻璃,淋浴空间看起来更开阔,不会觉得这么压抑。