这些事你装修后才明白就太晚了?#装修硬货
设计师方圆
2022-04-11
自己装修还能减肥的?到处跑市场,做重体力劳动,不睡午觉,体重就会快速下降。如果装修问题多心事重重,半夜都会醒过来,饭都吃不下的话,从140瘦到了120。(狗头)
这70条装修建议,当初没有听设计师的,现在好后悔!!
一.设计施工时要长远考虑
一次装修就是为未来几十年的居住舒适性做打算!所以从设计的角度我们装修不应该只考虑眼前,一定要长远考虑到!
1.前期结构改造

并不是所有的户型都是多面采光、坐北朝南、南北通透,还是有很多户型采光通风不是很好,动线也不合理,房屋面宽不合理,厨房区域小,生活阳台区域又偏大。
改造时可以考虑承重墙不动,能打的墙全部打掉,做好采光通风,房屋面宽适度。首先以100平方米以内的两居室为例:起居室的面宽最低在3.8-4米,厅要大于20平方米;主卧要大于12平方米,面宽在3米左右;客卧要大于10平方米,面宽也在3米左右;厨房要大于3平方米;设置一个2平方米左右的储藏间非常有必要。
另外,110平方米以上的三居室的起居室一般面宽要大于4米,面积要大于24平方米。一般来说,客厅面宽与进深比例在3.9∶4.2就比较舒服,三居室可设双卫。
2.水电施工
水电改造是家装中十分重要的一个隐蔽工程,虽然施工的工期不长,但是考虑到以后我们生活的个性化便利和舒适度,就很有必要做好!比如越来越多的家庭电器需要足够的电源设备提供,就需要足够的插口,全屋的插座应尽量处于同一水平位置。还要事先想好水电线路,想好与水有关的设备,比如热水器,饮水机,洗衣机处用水,空调,马桶,洗漱台的位置等诸多细节。
(1)水管有两种布管方式,水管走天和水管走地,它们的优缺点:

水管走天优点:
①方便日后检查和维修。
②如果出现漏水问题不会漏到楼下,避免影响令居,引起纠纷。
水管走天缺点:
①需要多浪费大约三分之一的水管,费用也相应更多。
②为了遮挡这些水管,也需要做一定吊顶处理,同样需要增加部分费用。
③如果水管接头爆了,家里的墙纸、家具很可能都要泡汤。
④PPR管子理论寿命是在地下50年,但是在空气中最多10年。
⑤管子暴露在空气中,不管怎样肯定没有在地上固定得好,而且水压稍微大点,整个管路都会哐当响。
水管走地优点:
①对比水管走天,整体费用相对便宜一点。
②水管走地是在地面埋着,管子四周是夯实的土,对于管子固定有好处,也可以保证管子的使用寿命。
水管走地缺点:
①如果水管出现问题不好维修,需要将地板或地砖撬开。
②如果出问题的地方是在地板下方,地板也很可能要泡汤。
③如果漏水,将渗到楼下邻居家里,可能还需要赔偿一定费用。
“水走天、电走地”最大的优点是便于今后的维修,所以:
a.预算充足的情况下,建议考虑采用“水走天、电走地”的方式,或者是水电全部走顶的方式。
b.北方因为地面有地暖,更适合采用“水走天、电走地”的方式。
c.不论“上天”还是“入地”,都有各自的优缺点,做好规划,减少接头,这才是避免管线处问题的最佳方法。
(2)水电没有做预放线,结果后面还要改水电,多花了冤枉钱不说,还一肚子气。
要根据需求与实际情况预估水电改造费用,预设水电改造线路,让施工人性、透明。
(3)开槽不规范,事后准后悔。记住先弹线再开槽;并且最好用开槽器,开槽深度保持在30~35mm。
(4)水电走线需要弄清横平竖直和点到点区别。
a.横平竖直优点就是整洁美观,后期施工方便,但缺点及时成本开销大。
b.点到点布线优点就是成本开销小,缺点就是不好看,因为布线杂乱无章,后续施工也需要小心别破坏线路。
个人认为预算不够的可以选择点到点,日后施工小心就行;预算足够的当然就可以追求高品质的横平竖直。
(5)水电点位没有布全,日后加装真的很麻烦!!!热水、冷水、排水、网线接口、电视电话接口等等,都必须一一核对。
3.全屋插座布置:
a.玄关鞋柜旁边没加一个插座,烘鞋器啥的以后想用都麻烦。
b.沙发旁边没多装几个插座,台灯、手机都需要充电的时候真的很绝望……空调处预留一个插座(三孔带开关),沙发两侧各预留一个插座,客厅空间可以预留1-2个。
c.电视柜背后插座没多做几个,当机顶盒、电视、投影仪、幕布插座、游戏机,这些同时使用时就emmm……至少需要安装3个。
d.卧室要安装双控开关,床头两边都要安装插座。电视2个,空调一个(三孔带开关),电脑一个(三孔带开关带网线),预留1-2个。
e.厨房没多置备几个插座,家用电器同时使用时就不好办了。厨房吊灯双回路控制一个,玄关灯双控一个,装饰效果灯开关一个,水槽下一个(可装小厨宝等),水台边一个,操作台上2-3个(用于小电器/带开关),微波炉一个(三孔开关),预留1-2个。
f.餐厅电冰箱一个(三孔带开关),餐桌边1-2个,预留1-2个。
g.书房电脑一个(三孔带开关),空调一个(三孔带开关),书桌边一个(台灯),预留1-2个。
h.卫生间洗衣机一个(三孔带开关),吹风机一个(三孔带开关),电热水器一个(三孔带开关),预留1-2个。
i.阳台洗衣机或者一个备用插座。

4.全屋防水:
超重要的一个工程,没有做好以后就偷着哭吧!不只是费钱、还费神费力!!!
卫生间、厨房、阳台防水都要做。除了卫生间防水必须做两层,其余都一层;卫生间防水高度至少180cm(淋浴处花洒高度180cm,往下的部分所以都要做防水),完事儿后闭水试验;回填记得要用碳渣。卫生间外侧需要防水外翻;包管也要做静音处理。

卫生间的防水特别特别重要,在这里再多说点:
a.卫生间地面先做找平。如果要更换卫生间的地砖,在将原有地砖凿去之后,一定要先用水泥砂浆将地面找平,然后再做防水处理。这样可以避免防水涂料因薄厚不均而造成渗漏。
b.接缝处要涂刷到位。卫生间墙地面之间的接缝以及上下水管道与地面的接缝处,是最容易出现问题的地方。在施工中,一定要督促工人处理好这些边边角角的地方,所有防水涂料一定要涂抹“到位”。
c.墙面处理也很重要。在一般的卫生间防水处理中,墙面上也要做大约180厘米高的防水涂料,以防积水洇透墙面。
d.防水实验一定要做。在卫生间施工完毕后,将卫生间的所有下水堵住,并在门口砌一道25厘米高的“坎”,然后在卫生间中灌入20厘米高的水。在48小时后,再检查四周墙面和地面有无渗漏现象。这种48小时的防水实验,是保证卫生间防水工程质量的关键。
e.保持下水通畅。卫生间中所有的下水管道,包括地漏、卫生洁具的下水管等,都要保持通畅。这样才能从根本上避免“水淹七军”惨剧的发生。
5.全屋吊顶:
(1)吊顶用更环保耐用的轻钢龙骨,防火且不容易变形;底部用石膏板,增加吊顶的牢固性。
a.轻钢龙骨吊顶,主挂件间距600—800mm,采用6—8mm吊杆,主龙骨间距小于等于1000mm,主挂件距主龙骨顶端小于等于300mm,次龙骨间距小于等于400mm,加强次龙骨间距小于等于1200mm,封两封墙需石膏板饰面。
b.木龙骨吊顶,沿顶龙骨固定点在小于等于400mm。每1000mm以内用膨胀栓做加固处理,沿墙龙骨固定点在小于等于400mm,龙骨方格小于等于400mmX400mm,木龙骨小于30mmX40mm,造型可采用九厘板或木芯板制。在封板前对木龙骨做防火处理,防火涂料必须在地面涂好。
c.所有龙骨都应固定牢固,做调平处理时按1/200mm起拱,有吊灯的位置需加设吊杆和龙骨框架,吊顶平整,误差2000mm以内小于等于2mm,3000mm以内小于等于3mm,5000mm以内小于等于5mm,水平误差同上。
(2)吊顶转角“L”形,有效防止吊顶开裂。
(3)层高过于矮的房屋不建议做复杂的吊顶,容易增加压抑感!!!
6.全屋贴砖:
贴砖时水泥砂浆的比例为1:1.25-1:1.3之间。整体墙面空鼓率不超过3%。所有阴阳角要用45度角切割碰角铺贴。厨房卫生间阳台这些地方,铺贴坡度为2%左右。
墙砖要湿贴,地砖要干贴,以及涂刷瓷砖胶。如果空鼓,会出现砖体脱落、开裂等问题!判断是否空鼓用空鼓锤,击打听声音判断。


7.各种施工工艺:
a.地面水泥砂浆找平施工工艺:基层清理→弹线→贴灰饼→刷素水泥浆→水泥砂浆找平→养护
b.地面石材铺贴施工工艺:地面清理→试拼→水泥浆结合层→铺贴石材 →养护→晶面处理

c.地面釉面瓷砖铺贴施工工艺:地面清理→瓷砖浸水湿润→水泥砂浆结合层→安装标准块→铺贴地面砖→勾缝→清洁→养护

d.地毯铺设施工工艺:基层处理→地毯剪裁→ 钉倒刺板挂毯条→铺设防潮垫→铺设地毯→细部处理及清理

e.实木地板铺设施工工艺:安装地龙骨→撒防蛀粉→安装防潮多层板→ 铺贴防潮膜→铺实木地板
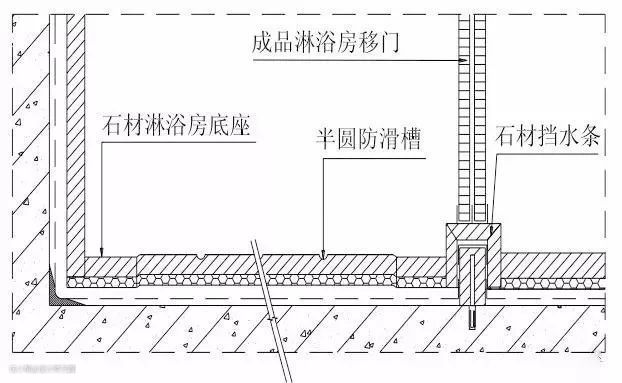
f.沐浴房地面石材施工工艺:地面清理→水泥浆结合层→铺贴石材 →养护→晶面处理

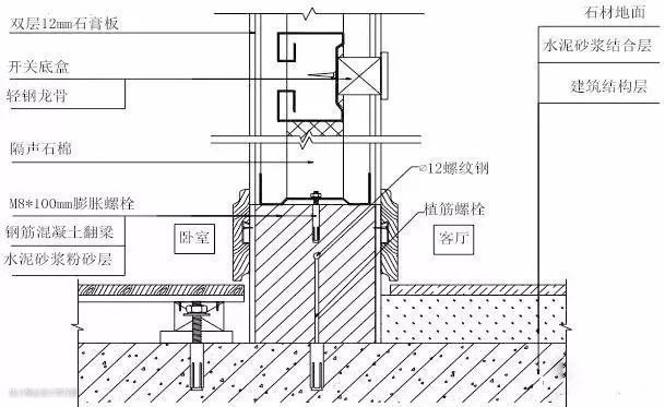
g.轻钢龙骨石膏板隔墙施工工艺:隔墙放线定位→安装天地龙骨→安装竖向龙骨→安装横向龙骨→龙骨内敷设隐藏管线→门洞口、窗台口加固→封一面石膏板→填充隔音棉→进行隐蔽验收→再封加一面石膏板

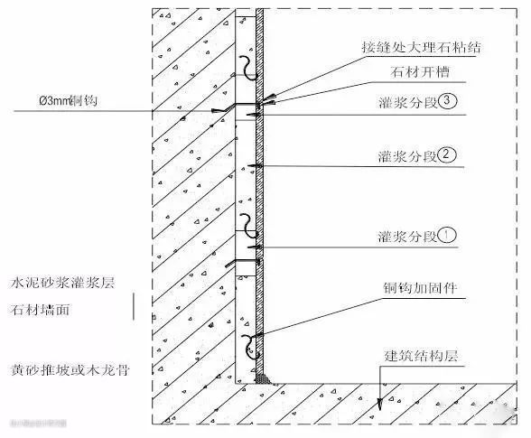
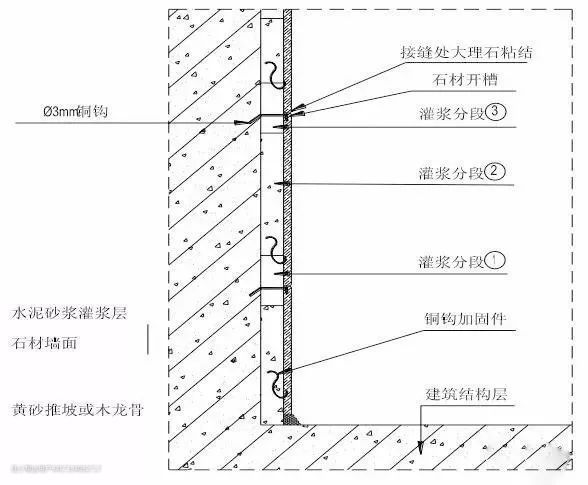
h.石材灌浆施工工艺:石材排板放线→预排石材→板材固定→灌桨→嵌缝

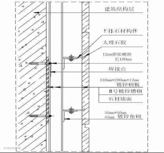
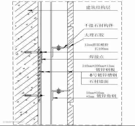
i.墙面石材干挂施工工艺:石材排板放线→安装钢骨架→石材安装→打胶收口

J.墙面瓷砖铺贴施工工艺:处理基层→弹线→瓷砖浸水湿润→摊铺水泥砂浆→安装标准块→铺贴地面砖→勾缝→清洁→养护

k.轻钢龙骨石膏板吊顶施工工艺:弹出天花完成面线→吊杆安装→安装主龙骨→安装沿边龙骨→安装次龙骨→龙骨调平→进行隐蔽验收→安装石膏板

m.金属板吊顶施工工艺:弹线→安装沿边龙骨→安装吊挂杆件→安装次龙骨→安装罩面板→安装压条。

l.空调风口安装工艺:空调回风口、出风口、换气扇等处要求设置木边框,便于风口及设施安装以及防止冷凝水。

o.漆施工工艺:铲除原始涂料→界面剂(墙固)→石膏修复→腻子处理2遍→打磨墙面→底漆处理→免漆处理2遍。
8.装修主材
装修中可以直接使用的成品材料,饰面材料及部分功能材料叫主要材料,包括瓷砖、地板、橱柜、门、窗户、乳胶漆、壁纸、石材、吊顶、电器(灯具,厨房灶具,油烟机,热水器,开关插座等)、家具、洁具(马桶,水龙头,洗脸盆,花洒,毛巾架,拖把池,淋浴房等)等。
主材材质的选择和工艺水平的高低决定了一个房屋装修的使用寿命!
常见五大主材:

①瓷砖
适用于客厅,厨卫,阳台及卧室,如今随着科技发展,瓷砖种类也日益增多,玻化砖,通体砖,全抛釉,微晶石等琳琅满目。
一线品牌推荐:蒙娜丽莎,马可波罗,诺贝尔,欧神诺等。

②地板
适用于客厅,卧室,有强化,实木,实木复合,竹地板等。强化经久耐用,实木质感档次更佳。美观自然、色彩多样、安装简单、安装厚度薄、提高层高。
一线品牌推荐:升达,圣像,大自然,德尔。

③门
适用各个空间分隔,卧室通常用实木门(免漆门,指节木门,原木门)厨卫多用钛合金玻璃门。
一线品牌推荐:TATA,鸿基,千川,美心。
④橱柜
厨房使用,整体定制为主。柜体材质多样,经济适用颗粒板,防水多层板,经久耐用砖夹柜。柜门更是款式多样。
一线品牌推荐:欧派,德贝,志邦,我乐。

⑤洁具
卫生间使用
一线品牌推荐:九牧,箭牌,帝王,toto。

9.收纳规划

一个房屋的收纳空间决定了你未来居住房屋衣物,杂物的储存方式,现代装修的大环境下收纳空间更重视的是适用和美观于一体。
收纳不仅仅是衣柜还有书柜,鞋柜,橱柜,酒柜,餐边柜,定制吊柜等。房间的柜子不是打的越多收纳能力就越强,设计不合理,柜子不少,家里依然会很乱所以还有进行定期整理,无整理不收纳。
10.全屋灯光选择

灯光对我们家的影响很大,入住后发现太亮、太暗、太艳的灯光,都会让家整体感受不温馨不舒适。
灯光对于一个人的情绪影响也是客观存在的,灯光的色温(k)很大程度影响着我们的心情和睡前体验。客厅买的灯具色温建议在4000K,卧室的灯色温建议在2700K-3000K,餐厅灯具的色温建议在3000K-4000K。
如果住宅想要统一色温,整个空间也可以都选择3000K或者4000K,具体情况根据装修风格和使用家具来定。如果家居风格偏浅色就4000k,偏木色或深色就3000k。比如如果全屋大部分是白色板式家具,风格浅色,选择4000K,你就不能用3000K偏暖光,因为暖光会看起来黄,会在家具上附上一层黄,看起来没质感。相反如果全屋使用木地板,实木家具较多,风格木色,就选择3000K,你就不能用4000k偏蓝色光。
11.趣味黑板墙

家里孩子喜欢写写画画,可以留出一块墙面区域做黑板墙,一是可以防止到处乱涂乱画,二是可以提高孩子的动手能力,我们自己也可以把明天需要做的易忘的事写上去。
12.一个必要的“展示”区

与其将手办,奖杯奖状藏在柜子和抽屉里,不妨设计一个开放性的“成绩展示舞台”,也就是所谓的共鸣角落,表面看起来不是很重要,但适时对孩子表达肯定,可以激励孩子,对孩子的成长会有非常大的影响,还能成为会客时的视觉焦点!
二.装修千万不要踩的雷区
关系到入住后健康和舒适性,这些雷区千万别踩,不然事后一定会后悔!
1.装修除甲醛
绿萝、芦荟、常春藤等植物生物吸收效果是微乎其微,化学分解,活性炭等也并没有多大用,根本还是要大力通风除甲醛!买几台工业电风扇放在里面,加速空气流动,开窗通风3个月以上,能清除大部分甲醛,期间也要多开窗,就算存留甲醛,甲醛的含量也特别低,不会对身体健康有影响。

刚装修完的办公室,第二天除甲醛第三天就进去工作了这不是上班,这是人为“吸醛”!
2.选择省钱省心的装修模式。建议选择:自找独立设计+半包+自买主材。
3.别找熟人朋友的装修公司,真的血泪史!出点问题就容易掰扯不清,反而不好追究责任。也别找施工队,如果有什么质量问题和不满意的地方去找他们,就会推三阻四;有些甚至还偷工减料,偷梁换柱;后期出了问题,人都找不到。
4.层高太低,不适合装吊顶,积灰也会更压抑。简单的吊顶比简单的石膏线条会更省一些,但相对花纹复杂、线条较宽的石膏线就会比简单的吊顶会贵(因为复杂的石膏线条都是需要定制,所花费的成本也会更高)
5.建议安装窗帘盒。窗帘盒能隐蔽窗帘帘头,显得空间更加美观。一种是房间有吊顶的,窗帘盒应隐蔽在吊顶内,在做顶部吊顶时就一同完成,起到提高整体装饰效果的作用。另一种是房间未吊顶,窗帘盒固定在墙上,与窗框套成为一个整体。窗帘盒构造比较简单,施工比较容易。
6.选择大品牌,口碑,性能好的主材。安华龙头、方太燃气灶、潜水艇地漏、科勒毛巾杆、友邦集成吊顶、西门子开关插座等等!

7.中央空调或新风系统可以安装,但要预算够,层高也要足够,需求考虑周全。

a.装中央空调,优点:舒适度较好,能快速调节室内温度。缺点:对施工工艺的要求很高,而且后期使用的耗电量大,成本大。

b.装新风系统,优点:能过滤净化空气,提高生活质量。缺点:价格贵,后期维护麻烦,管道需要定期清理,不易保养。
8.卫生间空间小,浴缸不建议安装。

改造前浴缸占地面积大,使用率低,而且没有进行干湿分离,地上积水,容易摔倒。

改造后将浴缸取消,进行干湿分离,还增加了卫生间收纳空间。
9.卧室空间小可以做榻榻米,既可以增加空间储物,又可以当床用。

a.榻榻米优点:
外观美观有创意,榻榻米床体设计线条平整理流畅,给人温馨舒适的感觉,整体设计简单时尚。
充分利用空间,榻榻米床下方可以设计储物柜,可以将一些不常用的东存放在榻榻米里,充分利用储物空间。
多功能作用,榻榻米床有使用灵活,它可以铺上床垫做为床,也可以直接做床用,还可以做为休闲区看书、会客、家里亲子互动区。
还可以在榻榻米上方设计书柜衣柜或者书桌等,榻榻米在房间就能集多功能于一身,在需要的时侯可以作为书房。
b.榻榻米缺点:
榻榻米容易脏,榻榻米储物空间,采用抽屉的设计或者翻盖式,这样榻榻米会形成很多死角。
固定不能移动,家里的榻榻米是固定的不能移动,想重新规划不好规划。
价格较贵,榻榻米是定制,一般市场价至少4000,相对比买一个成品床要贵。
10.家里墙砖、地砖记得要美缝。
11.小户型用对方法收纳,空间利用事半功倍:

a.卧室,入户玄关处建议顶天立地柜。
b.阳台可以加装吊柜。
c.水平空间拥挤的情况下,有壁挂式收纳器,还有各种收纳袋等。
12.隔音措施一定要做好!特别职业是主播,对他人对自己都好:失眠严重,睡眠质量差听到一点声音就睡不着或者个人喜欢音乐弹吉他等!还有临街的卧室窗户,因为临街晚上汽车声音大!做隔音窗户就很有必要,以下几种可作为参考:
a.塑钢门窗:具有良好的密封性,隔音效果好,价格稍贵。
b.中空玻璃门窗:两层或多层玻璃中间有气体存在,从而起到隔热隔音作用,价格便宜。
c.夹层玻璃门窗:两片或多片玻璃中间加上PVB中间膜(降低噪音分贝)。

13.找设计师选择专业的工作室或者找独立的、有过多年工程经验的设计师。
14.多对比几家工作室的设计师,看他们出的设计方案,是否符合你的生活习惯且好看实用。
15.要求设计师重要施工节点都要到场,对施工过程要有监督。
16.购买主材,可以让设计师陪同建议,如果工作没时间,也能让设计师去代买。
17.设计分为硬装设计和软装设计。软装不知道如何搭配可以找专门做软装的工作室。
18.厨房卫生间的地砖尽量不要选白色,真的很容易脏。
19.下水道PVC塑管相较于铸铁管可减少堵塞。
20.装修最好亲力亲为,自己要住的房子工作忙没时间,让爸爸妈妈找的装出来的效果,可能跟你想象的差距有点点大大大大大大。
21.电视背景墙不要太花哨,大白墙可能还更好看。

即使是大白墙也丝毫不单调,一束光打下来,十分美好!
22.小户型卧室想要衣柜又不想占用过多空间,提前规划可以选择嵌入式衣柜!

23.开放式衣柜防尘效果差,需要时间做好清洁保养,有一些私密的衣物也不方便。
24.不建议选择墨菲床,理想是可以充分的利用空间,而现实是墨菲床安装难度大,床位高低难控制,如果频繁使用或用力过猛(疑车无据),会缩短床的使用寿命,价格也要比一张普通的床更高。但对于一些小户型的房子是很不错的选择。
25.安装地板好还是地砖好?根据空间风格和实际需要进行选择!

a.地砖分类有釉面砖、抛光砖、通体砖、仿古砖、手工砖等。
地砖优势:地砖为粘土烧 制而成,无辐射,规格多种,质地坚硬、耐压耐磨,能防潮,选择花色品种多,适合各种风格装饰。
b.地板分类有实木、实木复合、强化、竹地板等。
地板优势:美观自然、色彩多样、安装简单、安装厚度薄、提高层高。
26.卫生间墙排式马桶好还是地排式马桶好?个人推荐墙排式马桶,美观还不占用空间。
a.地排式马桶:优点在于更换马桶方便。缺点在于占地面积大,卫生死角处不便于清理。
b.墙排式马桶:优点在于占地面积小,冲水噪音也更小一些,卫生更便于打理。缺点在于价格要比地排式马桶贵,后期发生问题因为水箱和管道埋在墙里维修不方便,承重力相对地排式马桶也要小很多,体重300斤以上的坐上去可能哈哈...也不会有问题的

三.细节决定成败,装修细节真要注意!
你的不注重细节,可能会夺走好多家的温暖。
1.做了电视背景墙但没有打灯光,打了灯光后会更好看,但也要注意局部重点物品的灯光,辅助整体空间的局部照明。如果装全灯光的背景墙虽然比较吸睛,但在开灯状态下长时间观影将易导致视觉疲惫,且不利资源节约。

做电视背景墙注意事项:(延伸)
①宜简洁明快,忌复杂繁琐。
②色彩选择上,尽量与户型匹配。小户型多用浅色、冷色,大户型多用深色、暖色。
③家中光线较暗,将影响电视背景墙美感,此时可选用增加光线的材料,如玻璃等。
④电视背景墙的大小、设计需要根据自己家里客厅大小和电视尺寸来设计,并非越大越好。
2.空间配色超过3种色彩,显得杂乱不好看且视觉疲劳。一个空间最多3种颜色,但可以加一些这个颜色的邻近色进行搭配。

把对比色放在一起。会给人强烈的排斥感。若混合在一起,会调出浑浊的颜色。
3.想要装智能家居,但没有提前进行综合布线设计,没有将照明、电器、网络、多媒体影音、安防装置等进行整合排布。智能家居要把灯光控制、窗帘控制、信息家电、新风地暖采集、环境温度监测、安防监控等多场景结合在一起,通过网络化综合智能控制和管理,以此来实现智能的居住环境。

智能窗帘,一套完整智能窗帘主要由电机、轨道以及窗帘布3部分组成。现在智能化的窗帘增加了智能芯片,可以跟其他设备联动控制,还可以无线遥控。但要施工注意: a、安装智能窗帘和智能窗户,需要提前预留电源位置。
b、需要注意窗帘盒的宽度,单层窗帘宽度≥150mm,双层窗帘≥200mm。 智能安防,入户门、厨房、卫生间安装安全感应和报警器,室内安装视频监控设备,建议正对大门安装,不要逆光安装。施工时,注意预留电源位置。
4.用石膏文化砖做出高级感,虽然造型多样,粗躁有质感,自带文化韵味,但很容易积灰清洁难度高,适合风格也有限。
5.客厅电视背景墙过短但没做隐形门,显得不整体不美观不大气。隐形门可以分为平开式、推拉式、折叠式、旋转式四种,主要做的较多的是平开式隐形门,市场上价格是4000-5000块,利用成排柜体,从柜门处进入另一空间的(常见从衣柜处进入卫生间)。

考虑做隐形门造型设计最关键,隐形门设计应该考虑对称性,选用好的五金产品也很重要,市面上的隐形门合页大概分为以下几种:暗铰链、液压定位合页、天地轴合页。隐形门五金不好可能会导致门关不严实,严重影响设计隐形门的初衷。所以需要达到的效果就是:正常可以推开,推拉后可以自动闭合。其中最主要的在于合页。

什么情况下需要安装隐形门?(延伸)
①造型墙面过短,或者不对称。常见电视背景墙过短。
②户型缺陷等,常见厕所对厨房,厕所对卧室等。
将卫生间对着卧室,卫生间湿气潮气较大,而卧室是休息的空间,长期下去对健康不利,这种户型缺陷可以考虑安装隐形门。

看着像衣柜,实际可能是卫生间。
③做密室,想有一间不为人知的房间。
④为了空间更干净整体,隐藏操作间,如常凌乱的厨房等。
6.橱柜没有安装感应灯,切菜时背光安全性降低。
7.卧室没有选择遮光窗帘,睡觉不踏实。
8.卫生间没有做干湿分离,房间水汽弥漫和地上溅水。
9.生活空间的插座完全不够用,该有插座的地方却没有,比如卫生间要安装智能马桶,却没有设置插座,很影响生活的便利性。还有插座的设计极其不合理。
插座的设计不合理,能用?
10.定制了未到顶的衣柜和开放式衣柜,未到顶的衣柜顶部积灰严重。开放式衣柜防尘效果差,需要大量时间做好清洁保养,而且对于一些私密的衣物也没有隐私。
11.买了跑步机,买了会在杂货间放很久,缺乏耐心的盆友强烈建议别买,还有管不住嘴,迈不开腿的建议别买。

不想用还占空间极度想要卖掉啊!
12.买了一些小吸盘,不牢固容易掉。哪天如果它掉下来……损坏了挂的物件就心疼了。
13.装了女朋友(男朋友)喜欢的住宅风格,色彩,布局等,分手后想要重新翻新,太折腾了。
14.强弱电交叉没用锡箔纸屏蔽处理。
15.卫生间地砖没有选防滑的,每次洗个澡都小心翼翼的真的怕摔倒。
16.没有安装前置过滤器,泥沙和铁锈等大颗粒杂质进入自家水管,生活用水和饮用水安全性降低。
17.没有及时买烘干机,烘干机在天气状况变化大的地区,还有梅雨季挺有用的。有时急着等衣服穿,一时半会又干不了,随洗随烘干即时就可以穿;可以去除衣物的纤维毛絮;节约时间,免去了晾挂衣服的麻烦;户型小,大城市房价高,解放了阳台区域(阳台上挂满衣物有些不雅)。

18.选择了铸铁地漏,虽然价格便宜,但容易生锈,不美观,生锈后挂粘脏物,不易清理。
19.没有装智能门锁,失去了便捷的智能生活。
20.没有将鞋柜镂空,镂空后可以将常穿的鞋放到柜底,轻轻松松把杂乱藏起来,而且穿鞋再也不用开关柜子。

21.用大理石来装饰墙面,手感较冰冷,价格也高,没有太多实用性。
22.将卧室空调对准床头安装,安装位置尽量远离床头,可以放在床尾的墙角处。
23.选择隐藏式垃圾桶,不符合我们扔垃圾的生活习惯,容易滋生细菌,一点都不卫生。
24.洗漱台装的是地排水,别家是墙排水,不仅更好看,下面还可以放柜子收纳。

25.家里养了宠物,还买皮质沙发,最后被抓的不成样子了。

26.马桶旁没有安装喷枪,喷枪可以冲洗干净马桶内壁;冲洗地面瓷砖缝隙;清洗家居用品比如拖把、地毯等。
27.打了不该打的飘窗,不退装修保证金,物业找上门还要让你强行复原。飘窗台的选材,酌情考虑,有因返潮、浸泡成废材的隐患。
28.空间设计不合理,不符合自身的生活习惯。

29.客厅卧室卫生间固然重要,但也不要忽视玄关的设计,实用价值为更换拖鞋,挂衣放包,放置钥匙雨伞;精神价值是朋友来家做客的第一印象,还作为家的标识。

30.洗漱台的高度要根据居住者的身高设计,如果每次洗漱都要大幅度弯腰,腰真疼...
31.卫生间闭水试验时间不够, 蓄水试验的蓄水深度应不小于20mm,蓄水时间为48小时,水面无明显下降,楼下无渗水痕迹。
32.空调回风口、出风口、换气扇等处要设置木边框,便于风口及设施安装以及防止冷凝水。