寸金寸土的深圳房,这届年轻人改造起来真够极致的
金地新家整装总部
2022-06-16
室内设计,打造你想要的空间,让你所有的天马行空都找到落地方向。
这一次,讲述如何改造户型获得生活确幸的新家。
#1
小户最看采光与配色

摒弃张扬色彩,用以莫兰迪色系,将浓郁艳丽转化为优雅高级的灰色质感,在整体明亮通透,采光优越搭配下,为业主打造梦想之家。
深圳 68㎡▲▼

客厅省略大型中央茶几,换成更具观赏性的小型茶几,适当留白,腾出位置做更多喜欢的事,视觉上显现出原本应有的大气与宽敞。
#2
巧用采光资源

客厅明亮宽敞,全景落地窗设计,让光线自然映射,空间自然柔和,演绎东方美学意境。
深圳 200㎡▲▼

简单的线条感,抛去繁杂的框架,既有中式礼序,又有现代气息。
深圳 175㎡▼

客厅采用传统中式空间布局,中正、大气、开敞。
家具在空间中的放置分合有致,既可众客以聚,亦可围合小叙,椅踏端庄、案几有序、器物风雅,极具大宅之气。
#3
光照入餐厨,做饭吃饭,最重要敞亮
广州 越秀 83㎡ ▼

旧厨房
/新厨房


扩大了厨房的空间,拆除了厨房的墙壁,换成落地玻璃窗,改成了半开放式,增加光线的进入。
#4
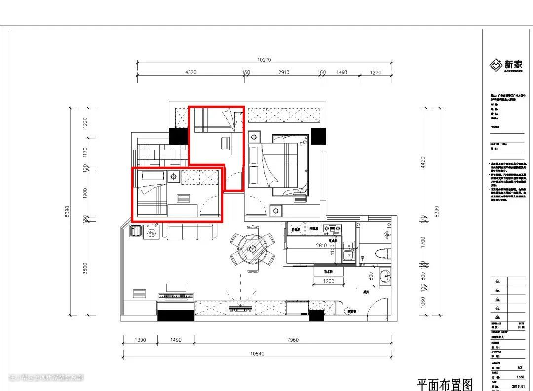
旧房扩出儿童房,给新生宝宝成长空间
广州 83㎡ 户型改造图▼

空间改造前

空间改造后
此案空间格局改动比较大,设计师将原始户型的大房一分为二,增加了一个儿童房。




#5
转角遇见书,开放式书房
两室打通,让客厅与书房链接,重新定义格局,开放式书房令空间更通透大气。
武汉 240㎡▼

告别每个空间独立存在的传统,设计师采用开放式设计,将厨房,餐厅,客厅,书房这些公共区域有机结合,又保证其自在性。

大理石材质散发沉稳的气场,游走这片暗色系的开阔场域,利落线条勾勒空间硬朗的轮廓,通透的玻璃材质则拼叠出视觉的层次感。
背景墙面,深灰色岩板融入少许木质元素,木的温润平衡着石材的硬冷。长虹玻璃的背后,则是属于一家人的私密场所。亲密的情感联系、高质量的生活追求、齐全的空间功能一一丈量,动静相宜。

家里的每个空间都有待发掘,或能增加收纳,或能重现珍藏,不管什么方式,都旨在让平日忙碌的自己回到家有个舒适的位置。