300平京容花园|现代法式,对生活和艺术的礼赞
南京东易日盛
2022-11-18
【设计说明】
在本次设计中,业主想要让家拥有舒适通透的空间,想将现代与法式元素融合。可以想一下:当时尚大气的现代简约撞上浪漫温柔的法式风时,会是一场怎样的邂逅呢?


1、【客厅】
客厅设计从功能出发,减少多余的元素。电视背景用大理石+石膏线结合,不仅保留整洁的外观,还满足收纳功能。


作为家人的共同生活空间,我们寻找自身,汲取生活灵感,现代法式的沿用极大地满足了空间良好的通风和采光。

2、【餐厅】
阳光从窗户洒入餐厅,一丝自然的气息温润人心。设计餐边柜可以增加收纳空间,餐桌上方的半圆形吊灯与地面铺设的灰色地砖搭配金属材质的餐桌和灰色的椅子,简约大气却也不失家的温度。

在餐厅设计上还将中西元素结合,明亮雅致。现代中国风的山水画加上法式浪漫风,既提升空间的品质还增加艺术气息。

3、【厨房】
厨房做开放式设计,金色边框的移门提高空间的色调,无主灯设计使空间高级感满满,台面和地面的大理石与灯光的配合,彰显优雅的艺术气息。

4、【卧室】
女儿房床头背景艺术漆采用高饱和度的米色和粉色进行撞色设计,为空间增添了活力与时尚的元素。严谨与克制在相互对抗中,以协调的艺术语言挖掘冲突的均衡,形成新的秩序美感。

老人房在背景墙与衣柜的设计上统一色彩与线条,丰富了空间场景,也将生活艺术诠释得淋漓尽致。其设计通过胡桃色投射出温润的气质,在花纹和拼色软包的点缀下,宁静简雅的氛围更加浓郁。

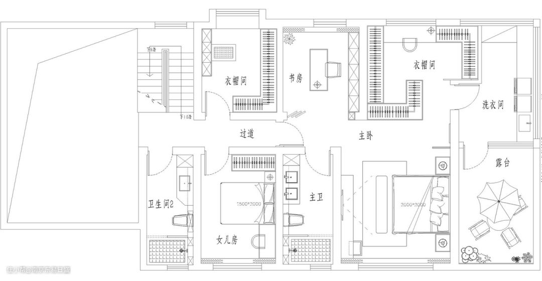
进入主卧,在现代法式风的熏染下,细腻的色调和温柔的灯光点缀出一片舒缓、不受干扰的庇护所,一种放松舒适扑面而来。主卧空间宽阔,有展示功能的衣帽间,自由、文艺、浪漫、典雅与时尚尽在其中。在柔和的氛围中,空间的精致大到格局,小至一盏灯,既有宁静的氛围,也有岁月打磨的印迹,这便是对生活与艺术的礼赞。
