90后夫妻爆改72㎡老房,重整格局打造LDK开放空间!
百安居
2023-10-07
本期案例咱们来看一套婚房装修~屋主是一对90后夫妻,买下了这套老房子,希望能改造成安静舒适、宽敞明亮的婚房。
设计师颠覆原始空间,将南北布局大挪移,客餐厨开放一体化,昏暗客厅化为明亮之家,3.6㎡超小卫生间依然可以干湿三分离,还有超能收纳的玄关储藏室、女主人无比满意的步入式衣帽间!

房屋概况
- 房屋坐标:上海
- 装修类型:老房翻新
- 室内面积:72㎡
- 装修风格:现代极简
业主需求
业主认为,这个家不需要花里胡哨的功能和装饰,只需要满足简单舒适的生活。
- 硬装空间朴素大方,软装元素干净极简,细节上布置整齐;
- 不满意旧房的户型,想要一个明亮的大客厅,厨房要做开放式的;
- 储物空间要多,要有一个衣帽间。
方案设计
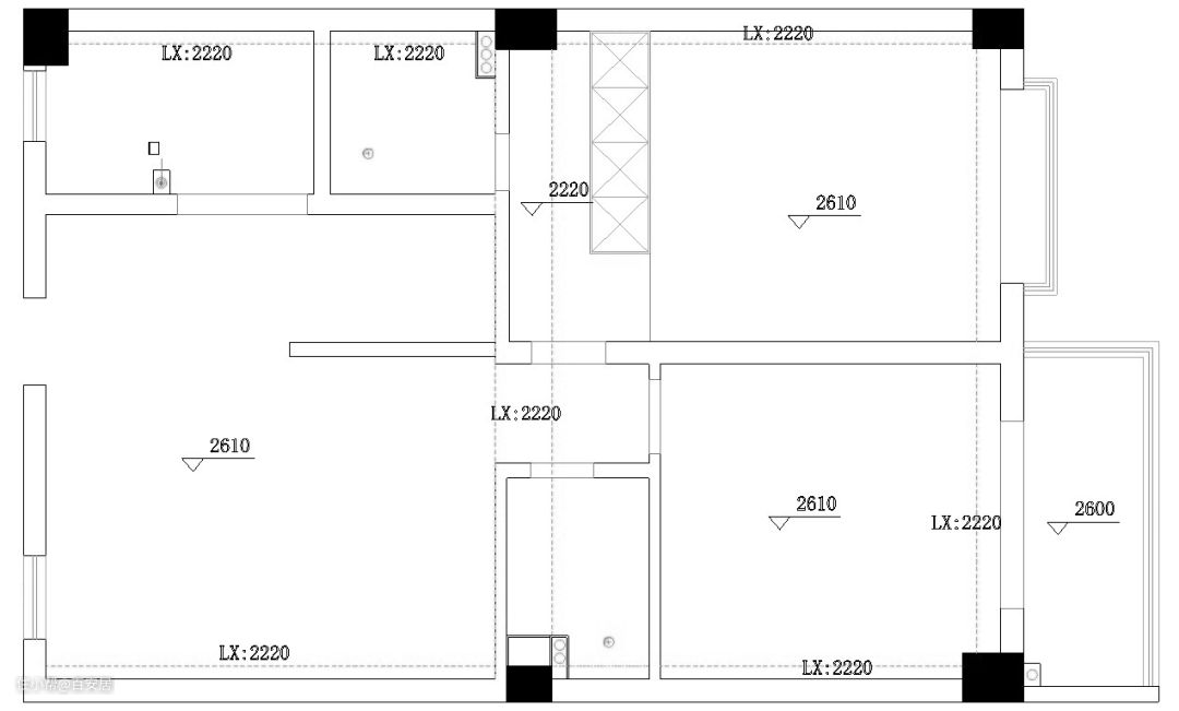
- 原始户型图

原户型格局很差,有各种隔墙阻挡采光,特别是原始客厅,仅有一个小窗,室内光线很差。幸好室内全是非承重墙,为空间格局的重塑提供了很大便利。
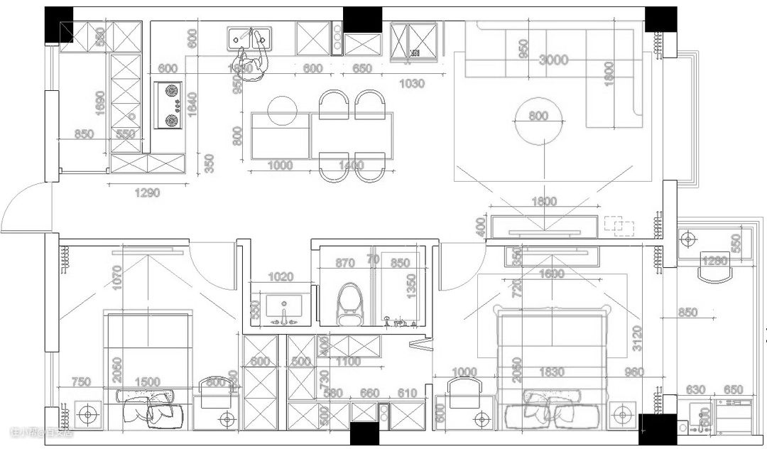
- 平面布置图

- 原始主卧与客厅位置互换,客餐厨三点连成直线动线,打造开放式布局;
- 借一点厨房空间新砌隔墙,打造独立玄关储藏室,将玄关及室内收纳空间集中起来;
- 原本的次卧做了主卧,卫生间后方的空间纳入主卧,打造步入式衣帽间。
餐厨
由玄关进入室内,眼前豁然开朗。厨餐客直线相连的通透开放格局,放大生活空间。

开放式厨房L型布局,操作台面特别采用了高低台的设计,炒菜不抬手,洗菜不弯腰,更符合人体工程学。

油烟机、燃气灶、蒸烤箱、洗碗机、冰箱等大型厨电均严丝合缝嵌入橱柜,节省空间。空气炸锅、微波炉、咖啡机等必备小家电,借助收纳架摆放在橱柜上,空间整齐有序。可移动的轨道式插座,让厨房用电更加灵活。

吊柜下方安装隐形灯带,均匀照亮整个台面。中央空调的风口朝向厨房,夏日做饭时也能给厨房降温。

考虑为家人间增加交流互动,也多一些操作台面与收纳,厨房中央增加了岛台,与餐桌相连,空间自然形成洄游动线。岛台侧边安装轨道式插座,方便电火锅插电、手机充电等,贴心又实用。

橱柜饰面与墙面乳胶漆颜色统一采用暖白色调,放大空间视觉效果。
客厅
极简风格在客厅体现得淋漓尽致。暖白色的色彩基调,咖色、绿色进行空间点缀,营造出一种宁静舒适的氛围。

吊顶做弧线工艺,将空间的高度与宽度都有效拉伸,配合灯光,更增加空间的层次感。
为强调背景墙的整体美感,卧室的门做了无框隐形门,并挑选暖白色的墙布进行整体装饰,让空间简美到极致。

木格栅饰面局部装饰背景墙,竖向拉伸空间高度。吊顶安装背景射灯,照射出漂亮的“小山丘”。
宽大的大象耳朵沙发,外形极简,靠垫像大象耳朵一样耷拉着,靠着睡觉、阅读、冥想、做个美梦,实在是一种舒服的享受。
主卧
生活阳台纳入主卧,增加空间的实用性,洗衣机烘干机叠放,快速洗烘收纳,无需再增加晾晒区域。

主卧的设计,延续了极简温馨的风格。棕色的窗帘、阳台小花砖,温润的木地板,昏黄的氛围灯,拿捏了空间的治愈感。

微水泥床头半墙搭配柔性洗墙灯,显得空间低调又时尚。床头吊灯为阅读补光,小几充当床头柜,轻便美观还实用。

衣帽间采用黑色玻璃移门隔断,反光的玻璃材质增加层次感,让卧室不显逼仄,同时黑色玻璃能阻挡衣帽间的视线,避免衣帽间里的东西被看得太清楚。

衣帽间L型布局,50%的挂衣区+20%叠衣区+20%床品区+10%的抽屉区的收纳分区规划,符合生活习惯,让空间更为实用。
格局混乱的老房,在设计师手中却如脱胎换骨,重焕新生,赋予全新美好生活体验!家有同款老房,长按上图扫码报名,即刻焕新吧!