用阁楼打造儿童秘密基地
绵阳栗舟装饰设计
2021-06-15
今天给大家分享一个来自上海设计师的设计案例
随着中国生育政策的转变,二胎之家成为社会主流,孩子在家中的游戏、学习、生活的空间逐渐扩展。
本项目是叠拼的上叠,两层带一个坡屋顶阁楼户型,业主希望对此进行翻修,为两个孩子和成人创造“灯火”之家。 设计之初,业主说:“家使每个人之间联系更加紧密,这是家人的定义。家人闲坐,灯⽕可亲,是对家最美好的描述。
我们充分利用既有的坡屋顶结构,转化为三个阁楼的空间。 保留原阁楼中部及北部区域,形成独立的顶层阁楼,而原阁楼南侧低矮处则分别切分给下层的儿童房及主卧。
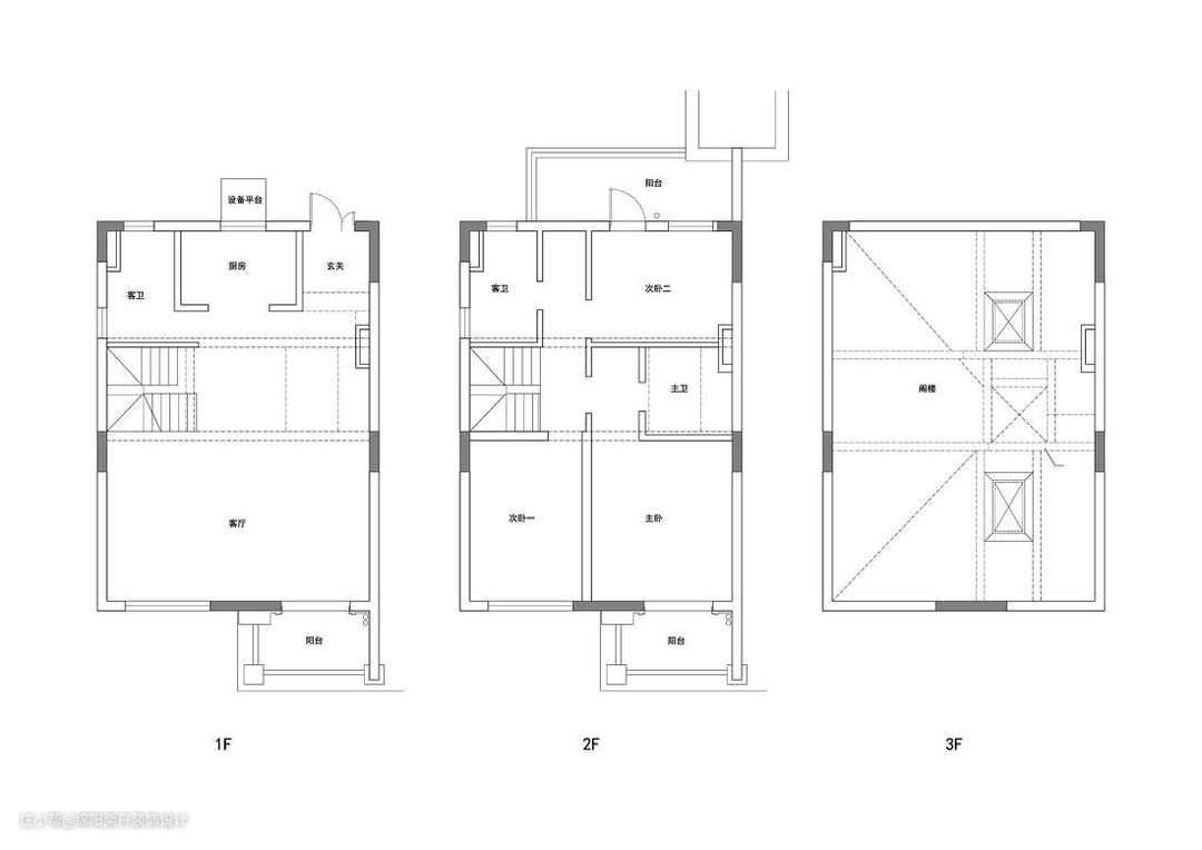
原始户型

改造后布局

- 顶层阁楼

顶部是给哥哥的房间,这里安静私密, 并不设门,独享与共享并存。 空间有着复杂的高度变化,根据人体尺度适宜布置睡觉、游戏、阅读空间。

色调明快简洁,以不规则内嵌的绿色几何图案作为局部装饰,和谐自然,处处透着一股清新感。

对于孩子们来说,这样一间小小阁楼,是他们的秘密基地,也是童年里最美好的记忆。
- 跃层阁楼

二层儿童房垂直向打通后,获得了一个高阔的空间。 置入一个全新的木色阁楼,溶入卧室、衣柜、楼梯、窗洞,既是一个大家具也是游戏之屋。

上下层均可放置小床,阁楼上的“窗洞”外铺上一张安全网,它成为孩子们玩闹的天地。

阁楼的侧边均预留钢框绑上安全网,保证孩子的绝对安全。


阁楼与衣柜、书架、楼梯、书桌连为整体,形成的大家具, 沿空间侧边展开,创造连续的游戏路径,也留出完整的活动空间。

通往孩子们秘密基地的小楼梯。

首层共享客厅是他们的汇聚点。 开阔的大厅一侧为孩子游戏手工区域,另一侧为一家休息、观影区域。

白墙上顶上设置投影幕布,是全家人在一起的娱乐活动。

客厅与阳台打通,简约的漂浮木柜从客厅的一侧延伸连通至阳台,增加了客厅整体纵深感。
今天的阁楼分享就到这啦!希望对你有帮助。